





- 4 bd
- 4.5 ba
- 3,573 sqft
Glenwood Linton Estates plan in Linton Estates by JR Homes
New Homes for Sale Near Newnan, GA 30263
About this Plan
Discover the Glenwood Linton Estates floor plan in Linton Estates, an outstanding community designed by JR Homes in the city of Newnan. This plan uses high-quality materials and finishes to create a luxurious ambiance you'll love coming home to for years.
Located at Newnan, GA 30263 in the prestigious Linton Estates, you'll find a collection of other new construction homes created with various layouts, along with a welcoming community of neighbors and a variety of amenities to enrich your lifestyle.
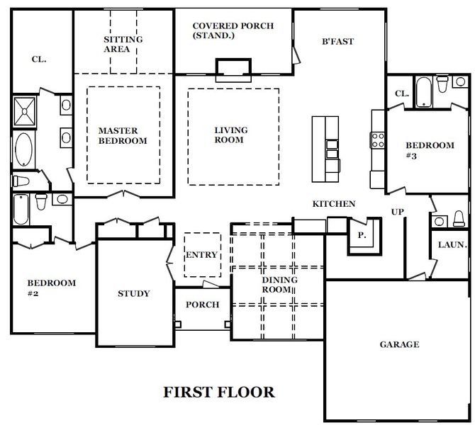
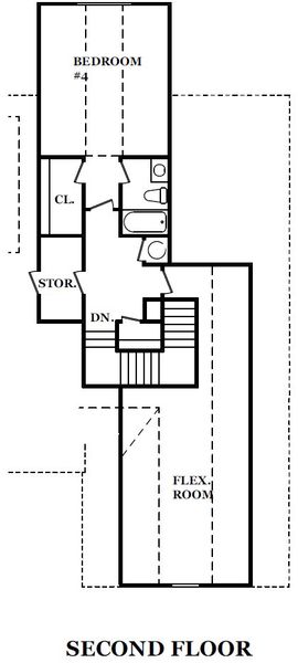
The Glenwood Linton Estates is a beautiful 2-story floor plan with 4 spacious bedrooms, and 4.5 modern bathrooms spread over 3,573 square feet. This plan also includes a garage with 2 spaces for parking vehicles, extra storage, or hobby essentials.
You'll love the convenience of being close to fantastic shopping, top-notch dining options, entertainment, and opportunities for outdoor adventures. Plus, Linton Estates is zoned to the reputable Coweta County School District, providing easy access to the best schools in the area.
Does Glenwood Linton Estates sound like your dream floor plan? Work with Jome to make it a reality. Contact a New Construction Specialist to take the first step towards a lifestyle of convenience and luxury in your future home.
May also be listed on the JR Homes website
Information last verified by Jome: Wednesday at 8:36 PM (August 20, 2025)
Plan details
- Name:
- Glenwood Linton Estates
- Property type:
- Sold
- Community:
- Linton Estates
- Builder:
- JR Homes
- Size:
- 3,573 sqft
- Stories:
- 2
- Beds:
- 4
- Baths:
- 4.5
- Garage spaces:
- 2
Plan features & finishes
- Garage/Parking:
- GarageAttached Garage
- Interior Features:
- Walk-In ClosetFoyerPantryStorage
- Laundry facilities:
- Utility/Laundry Room
- Property amenities:
- PatioPorch
- Rooms:
- Primary Bedroom On MainSitting AreaKitchenPowder RoomOffice/StudyDining RoomFamily RoomBreakfast AreaOpen Concept FloorplanPrimary Bedroom Downstairs
Want to know more about what's around here?
The Glenwood Linton Estates floor plan is part of Linton Estates, a new home community by JR Homes, located in Newnan, GA. Visit the Linton Estates community page for full neighborhood insights, including nearby schools, shopping, walk & bike-scores, commuting, air quality & natural hazards.


















































