



Book your tour. Save an average of $18,473. We'll handle the rest.
We collect exclusive builder offers, book your tours, and support you from start to housewarming.
- Confirmed tours
- Get matched & compare top deals
- Expert help, no pressure
- No added fees
Estimated value based on Jome data, T&C apply
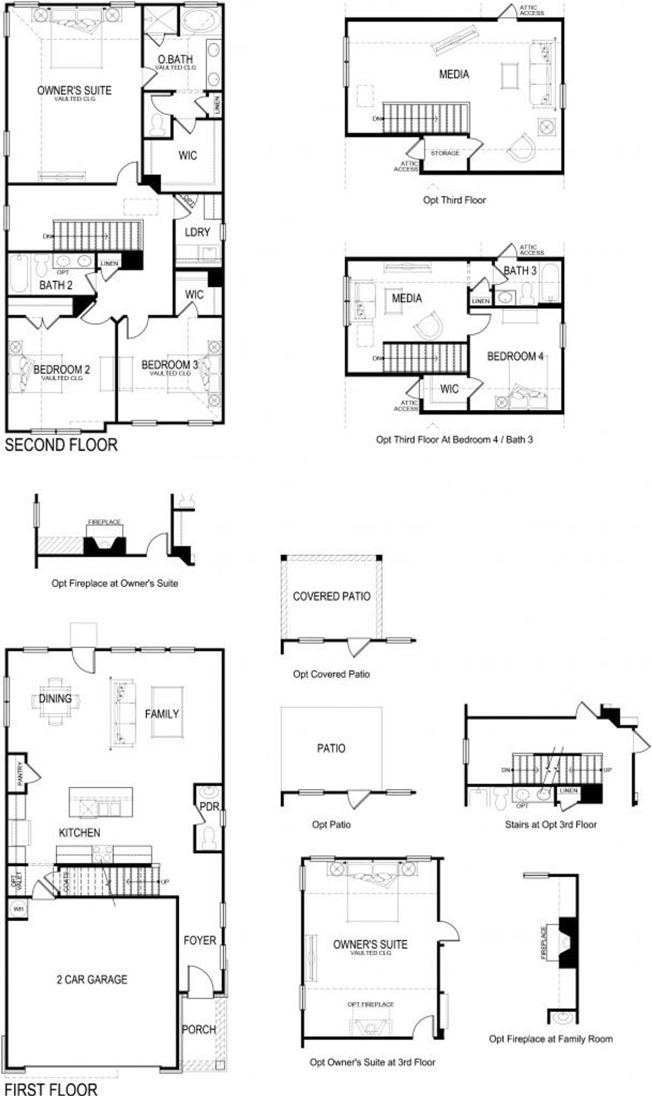
- 3 bd
- 2.5 ba
- 2,093 sqft
Waverly plan in Alcovy Village by Rockhaven Homes
Visit the community to experience this floor plan
Why tour with Jome?
- No pressure toursTour at your own pace with no sales pressure
- Expert guidanceGet insights from our home buying experts
- Exclusive accessSee homes and deals not available elsewhere
Jome is featured in
Plan description
May also be listed on the Rockhaven Homes website
Information last verified by Jome: Sunday at 1:25 PM (February 15, 2026)
Plan highlights
Plan details
- Name:
- Waverly
- Property status:
- Floor plan
- Size:
- 2,093 sqft
- Stories from:
- 2
- Stories to:
- 3
- Beds:
- 3
- Baths:
- 2.5
- Garage spaces:
- 2
Plan features & finishes
- Garage/Parking:
- GarageAttached Garage
- Interior Features:
- Walk-In ClosetFoyerPantryBlinds
- Kitchen:
- Double Oven
- Laundry facilities:
- DryerWasherUtility/Laundry Room
- Property amenities:
- Smart Home SystemPorch
- Rooms:
- KitchenPowder RoomDining RoomFamily RoomOpen Concept FloorplanPrimary Bedroom Upstairs
- Upgrade Options:
- Covered PatioPatioFireplace

Get a consultation with our New Homes Expert
- See how your home builds wealth
- Plan your home-buying roadmap
- Discover hidden gems
See the full plan layout
Download the floor plan PDF with room dimensions and home design details.

Instant download, no cost

Community details
Alcovy Village
by Rockhaven Homes, Lawrenceville, GA
- 5 homes
- 5 plans
- 2,093 - 2,967 sqft
View Alcovy Village details
Want to know more about what's around here?
The Waverly floor plan is part of Alcovy Village, a new home community by Rockhaven Homes, located in Lawrenceville, GA. Visit the Alcovy Village community page for full neighborhood insights, including nearby schools, shopping, walk & bike-scores, commuting, air quality & natural hazards.

Homes built from this plan
Available homes in Alcovy Village
- Home at address 732 Ellis Spring Wy, Lawrenceville, GA 30045

Home
$409,990
- 3 bd
- 2.5 ba
- 2,093 sqft
732 Ellis Spring Wy, Lawrenceville, GA 30045
- Home at address 1089 Georgian Point Dr, Lawrenceville, GA 30045

Home
$475,990
- 5 bd
- 4 ba
- 2,892 sqft
1089 Georgian Point Dr, Lawrenceville, GA 30045
- Home at address 1064 Georgian Point Dr, Lawrenceville, GA 30045

Home
$482,990
- 5 bd
- 4 ba
- 2,892 sqft
1064 Georgian Point Dr, Lawrenceville, GA 30045
- Home at address 1119 Georgian Point Dr, Lawrenceville, GA 30045

Home
$487,990
- 5 bd
- 4 ba
- 2,892 sqft
1119 Georgian Point Dr, Lawrenceville, GA 30045
- Home at address 467 Collier Mills Rd, Lawrenceville, GA 30045

Home
$569,990
- 5 bd
- 4 ba
- 2,892 sqft
467 Collier Mills Rd, Lawrenceville, GA 30045
More floor plans in Alcovy Village

Considering this plan?
Our expert will guide your tour, in-person or virtual
Need more information?
Text or call (888) 488-9243
Financials
Let us help you find your dream home
How many bedrooms are you looking for?
Similar homes nearby
Recently added communities in this area
Nearby communities in Lawrenceville
New homes in nearby cities
More New Homes in Lawrenceville, GA
- Jome
- New homes search
- Georgia
- Atlanta Metropolitan Area
- Gwinnett County
- Lawrenceville
- Alcovy Village
- 1039 Georgian Point Dr, Lawrenceville, GA 30045





























