



Book your tour. Save an average of $18,473. We'll handle the rest.
We collect exclusive builder offers, book your tours, and support you from start to housewarming.
- Confirmed tours
- Get matched & compare top deals
- Expert help, no pressure
- No added fees
Estimated value based on Jome data, T&C apply
- 3 bd
- 3.5 ba
- 2,620 sqft
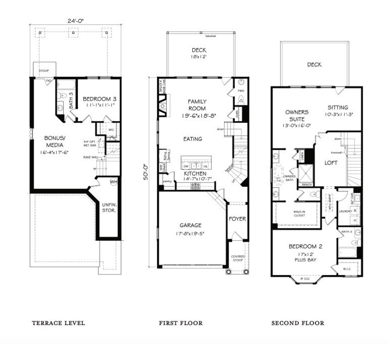
The Camden plan in The Retreat at River Green by JW Collection
Visit the community to experience this floor plan
Why tour with Jome?
- No pressure toursTour at your own pace with no sales pressure
- Expert guidanceGet insights from our home buying experts
- Exclusive accessSee homes and deals not available elsewhere
Jome is featured in
Plan description
May also be listed on the JW Collection website
Information last verified by Jome: Sunday at 1:05 PM (February 15, 2026)
Plan details
- Name:
- The Camden
- Property status:
- Floor plan
- Size:
- 2,620 sqft
- Stories:
- 2
- Beds:
- 3
- Baths:
- 3.5
- Garage spaces:
- 2
Plan features & finishes
- Garage/Parking:
- GarageAttached Garage
- Interior Features:
- Walk-In ClosetFoyerLoft
- Laundry facilities:
- Utility/Laundry Room
- Property amenities:
- Deck
- Rooms:
- Bonus RoomSitting AreaKitchenPowder RoomMedia RoomFamily RoomPrimary Bedroom Upstairs
- Upgrade Options:
- Media Room

Get a consultation with our New Homes Expert
- See how your home builds wealth
- Plan your home-buying roadmap
- Discover hidden gems
See the full plan layout
Download the floor plan PDF with room dimensions and home design details.

Instant download, no cost

Community details
The Retreat at River Green
by JW Collection, Canton, GA
- 2 homes
- 1 plan
- 2,620 - 2,620 sqft
View The Retreat at River Green details
Want to know more about what's around here?
The The Camden floor plan is part of The Retreat at River Green, a new home community by JW Collection, located in Canton, GA. Visit the The Retreat at River Green community page for full neighborhood insights, including nearby schools, shopping, walk & bike-scores, commuting, air quality & natural hazards.

Available homes in The Retreat at River Green
- Home at address 203 Retreat Ln, Canton, GA 30114

Home
$599,900
- 3 bd
- 3.5 ba
- 2,620 sqft
203 Retreat Ln, Canton, GA 30114
- Home at address 201 Retreat Ln, Canton, GA 30114

Home
$599,900
- 3 bd
- 3.5 ba
- 2,620 sqft
201 Retreat Ln, Canton, GA 30114

Considering this plan?
Our expert will guide your tour, in-person or virtual
Need more information?
Text or call (888) 488-9243
Financials
Estimated monthly payment
Let us help you find your dream home
How many bedrooms are you looking for?
Similar homes nearby
Recently added communities in this area
Nearby communities in Canton
New homes in nearby cities
More New Homes in Canton, GA
- Jome
- New homes search
- Georgia
- Atlanta Metropolitan Area
- Cherokee County
- Canton
- The Retreat at River Green
- 200 River Green Ave, Canton, GA 30114



























