



Book your tour. Save an average of $18,473. We'll handle the rest.
We collect exclusive builder offers, book your tours, and support you from start to housewarming.
- Confirmed tours
- Get matched & compare top deals
- Expert help, no pressure
- No added fees
Estimated value based on Jome data, T&C apply

- 4 bd
- 3 ba
- 2,628 sqft
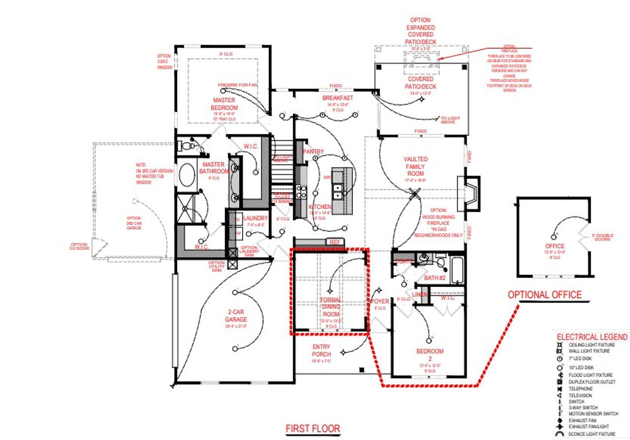
Dansby B D plan in Crestwick by Freedom Home Builders
Visit the community to experience this floor plan
Why tour with Jome?
- No pressure toursTour at your own pace with no sales pressure
- Expert guidanceGet insights from our home buying experts
- Exclusive accessSee homes and deals not available elsewhere
Jome is featured in
Plan description
May also be listed on the Freedom Home Builders website
Information last verified by Jome: Friday at 3:37 AM (April 10, 2026)
Plan details
- Name:
- Dansby B D
- Property type:
- Floor plan
- Community:
- Crestwick
- Builder:
- Freedom Home Builders
- Size:
- 2,628 sqft
- Stories:
- 2
- Beds:
- 4
- Baths:
- 3
- Garage spaces:
- 2
Plan features & finishes
- Garage/Parking:
- GarageAttached Garage
- Interior Features:
- Walk-In Closet
- Laundry facilities:
- Utility/Laundry Room
- Property amenities:
- PatioPorch
- Rooms:
- AtticKitchenDining RoomFamily RoomPrimary Bedroom Downstairs

Get a consultation with our New Homes Expert
- See how your home builds wealth
- Plan your home-buying roadmap
- Discover hidden gems
See the full plan layout
Download the floor plan PDF with room dimensions and home design details.

Instant download, no cost

Community details
Crestwick
by Freedom Home Builders, Griffin, GA
- 10 plans
- 2,052 - 3,072 sqft
View Crestwick details
Want to know more about what's around here?
The Dansby B D floor plan is part of Crestwick, a new home community by Freedom Home Builders, located in Griffin, GA. Visit the Crestwick community page for full neighborhood insights, including nearby schools, shopping, walk & bike-scores, commuting, air quality & natural hazards.

More floor plans in Crestwick

Considering this plan?
Our expert will guide your tour, in-person or virtual
Need more information?
Text or call (888) 545-5198
Financials
Estimated monthly payment
Let us help you find your dream home
How many bedrooms are you looking for?































