



Book your tour. Save an average of $18,473. We'll handle the rest.
We collect exclusive builder offers, book your tours, and support you from start to housewarming.
- Confirmed tours
- Get matched & compare top deals
- Expert help, no pressure
- No added fees
Estimated value based on Jome data, T&C apply
- 4 bd
- 2.5 ba
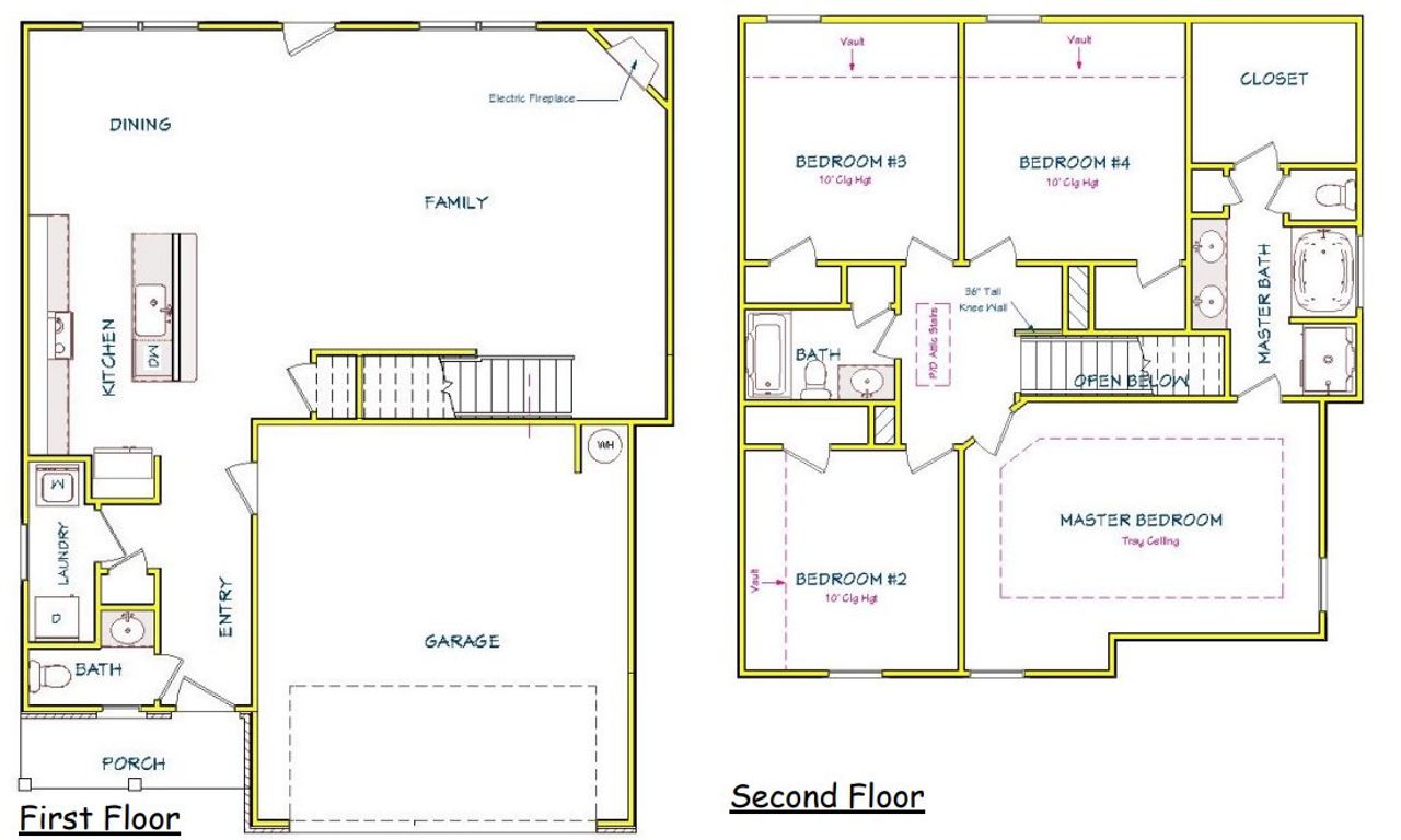
Bermuda plan in Garden Walk by Capshaw
Visit the community to experience this floor plan
Why tour with Jome?
- No pressure toursTour at your own pace with no sales pressure
- Expert guidanceGet insights from our home buying experts
- Exclusive accessSee homes and deals not available elsewhere
Jome is featured in
Plan description
May also be listed on the Capshaw website
Information last verified by Jome: Thursday at 2:44 PM (April 16, 2026)
Plan details
- Name:
- Bermuda
- Property type:
- Floor plan
- Community:
- Garden Walk
- Builder:
- Capshaw
- Stories:
- 2
- Beds:
- 4
- Baths:
- 2.5
- Garage spaces:
- 2
Plan features & finishes
- Garage/Parking:
- GarageAttached Garage
- Interior Features:
- Walk-In ClosetFoyerPantry
- Laundry facilities:
- Utility/Laundry Room
- Property amenities:
- PatioPorch
- Rooms:
- KitchenPowder RoomDining RoomFamily RoomOpen Concept FloorplanPrimary Bedroom DownstairsPrimary Bedroom Upstairs

Get a consultation with our New Homes Expert
- See how your home builds wealth
- Plan your home-buying roadmap
- Discover hidden gems
See the full plan layout
Download the floor plan PDF with room dimensions and home design details.

Instant download, no cost

Community details
Garden Walk
by Capshaw, Jackson, GA
- 1 home
- 9 plans
- 2,030 - 2,030 sqft
View Garden Walk details
Want to know more about what's around here?
The Bermuda floor plan is part of Garden Walk, a new home community by Capshaw, located in Jackson, GA. Visit the Garden Walk community page for full neighborhood insights, including nearby schools, shopping, walk & bike-scores, commuting, air quality & natural hazards.

Homes built from this plan
More floor plans in Garden Walk

Considering this plan?
Our expert will guide your tour, in-person or virtual
Need more information?
Text or call (888) 545-5198
Financials
Let us help you find your dream home
How many bedrooms are you looking for?
Similar homes nearby
Recently added communities in this area
Nearby communities in Jackson
New homes in nearby cities
More New Homes in Jackson, GA
- Jome
- New homes search
- Georgia
- Atlanta Metropolitan Area
- Butts County
- Jackson
- Garden Walk
- 100 Jasmine Dr, Jackson, GA 30233

































