



Book your tour. Save an average of $18,473. We'll handle the rest.
We collect exclusive builder offers, book your tours, and support you from start to housewarming.
- Confirmed tours
- Get matched & compare top deals
- Expert help, no pressure
- No added fees
Estimated value based on Jome data, T&C apply
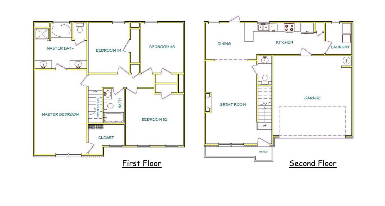
- 4 bd
- 3 ba
- 1,745 sqft
Balsam plan in Fox Crossing by Capshaw
Visit the community to experience this floor plan
Why tour with Jome?
- No pressure toursTour at your own pace with no sales pressure
- Expert guidanceGet insights from our home buying experts
- Exclusive accessSee homes and deals not available elsewhere
Jome is featured in
Plan description
May also be listed on the Capshaw website
Information last verified by Jome: Sunday at 2:36 PM (February 15, 2026)
Plan details
- Name:
- Balsam
- Property status:
- Floor plan
- Size:
- 1,745 sqft
- Stories:
- 2
- Beds:
- 4
- Baths:
- 3
- Garage spaces:
- 2
Plan features & finishes
- Garage/Parking:
- GarageAttached Garage
- Interior Features:
- Walk-In ClosetFoyerPantry
- Laundry facilities:
- Utility/Laundry Room
- Property amenities:
- CabinetsPatioFireplacePorch
- Rooms:
- KitchenPowder RoomDining RoomFamily RoomOpen Concept FloorplanPrimary Bedroom Upstairs

Get a consultation with our New Homes Expert
- See how your home builds wealth
- Plan your home-buying roadmap
- Discover hidden gems
See the full plan layout
Download the floor plan PDF with room dimensions and home design details.

Instant download, no cost

Community details
Fox Crossing
by Capshaw, Griffin, GA
- 2 homes
- 8 plans
- 1,684 - 2,525 sqft
View Fox Crossing details
Want to know more about what's around here?
The Balsam floor plan is part of Fox Crossing, a new home community by Capshaw, located in Griffin, GA. Visit the Fox Crossing community page for full neighborhood insights, including nearby schools, shopping, walk & bike-scores, commuting, air quality & natural hazards.

Available homes in Fox Crossing
- Home at address 87 Hounds Wy, Griffin, GA 30224

Indigo
$344,990
- 4 bd
- 3 ba
- 2,017 sqft
87 Hounds Wy, Griffin, GA 30224
- Home at address 115 Kennelsman Dr, Griffin, GA 30224

Turner
$388,940
- 5 bd
- 3 ba
- 2,525 sqft
115 Kennelsman Dr, Griffin, GA 30224
More floor plans in Fox Crossing

Considering this plan?
Our expert will guide your tour, in-person or virtual
Need more information?
Text or call (888) 488-9243
Financials
Let us help you find your dream home
How many bedrooms are you looking for?
Similar homes nearby
Recently added communities in this area
Nearby communities in Griffin
New homes in nearby cities
More New Homes in Griffin, GA
- Jome
- New homes search
- Georgia
- Atlanta Metropolitan Area
- Lamar County
- Griffin
- Fox Crossing
- 459 Barnesville Rd, Griffin, GA 30224





























