





- 3 bd
- 2.5 ba
- 1,912 sqft
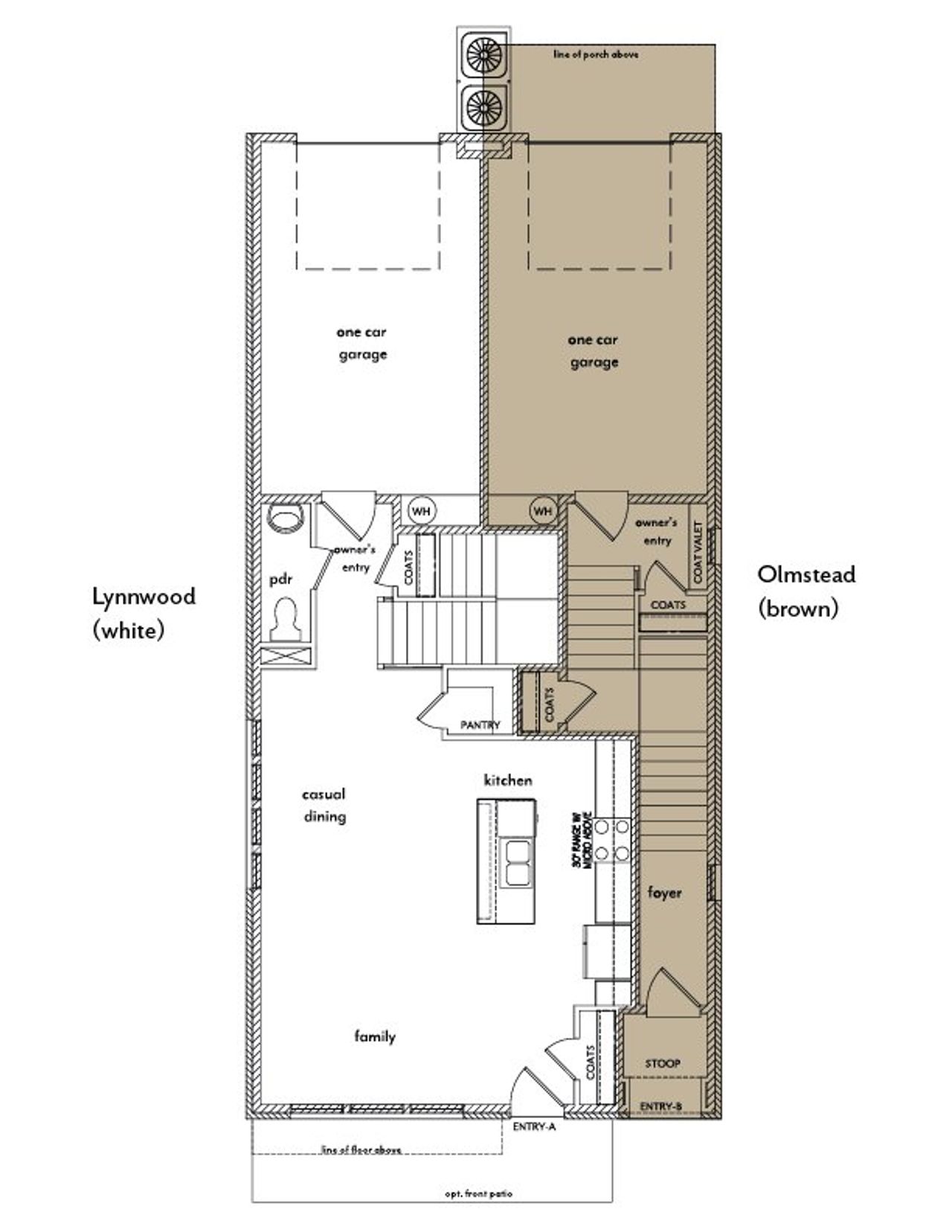
Lynnwood plan in Town Center Overlook by McKinley Homes
New Homes for Sale Near 3700 Medlock Bridge Rd, Norcross, GA 30092
About this Plan
May also be listed on the McKinley Homes website
Information last verified by Jome: Thursday at 12:47 PM (April 16, 2026)
Plan details
- Name:
- Lynnwood
- Property type:
- Sold
- Community:
- Town Center Overlook
- Builder:
- McKinley Homes
- Size:
- 1,912 sqft
- Stories:
- 3+
- Beds:
- 3
- Baths:
- 2.5
- Garage spaces:
- 1
Plan features & finishes
- Garage/Parking:
- GarageAttached Garage
- Interior Features:
- Walk-In ClosetStaircases
- Kitchen:
- Kitchen Island
- Laundry facilities:
- Utility/Laundry Room
- Rooms:
- KitchenPowder RoomDining RoomFamily RoomOpen Concept FloorplanPrimary Bedroom Upstairs
See the full plan layout
Download the floor plan PDF with room dimensions and home design details.

Instant download, no cost

Community details
Town Center Overlook
by McKinley Homes, Norcross, GA
- 3 plans
- 1,919 - 1,978 sqft
View Town Center Overlook details
Want to know more about what's around here?
The Lynnwood floor plan is part of Town Center Overlook, a new home community by McKinley Homes, located in Norcross, GA. Visit the Town Center Overlook community page for full neighborhood insights, including nearby schools, shopping, walk & bike-scores, commuting, air quality & natural hazards.

More floor plans in Town Center Overlook
Financials
Nearby communities in Norcross
Homes in Norcross by McKinley Homes
Recently added communities in this area
Other Builders in Norcross, GA
Nearby sold homes
New homes in nearby cities
More New Homes in Norcross, GA
- Jome
- New homes search
- Georgia
- Atlanta Metropolitan Area
- Gwinnett County
- Norcross
- Town Center Overlook
- 3700 Medlock Bridge Rd, Norcross, GA 30092

























































