



- 3 bd
- 2 ba
- 2,052 sqft
The Dewfield plan in Rowland Springs by Bamford and Company
New Homes for Sale Near 24 Aaron Ln, Cartersville, GA 30121
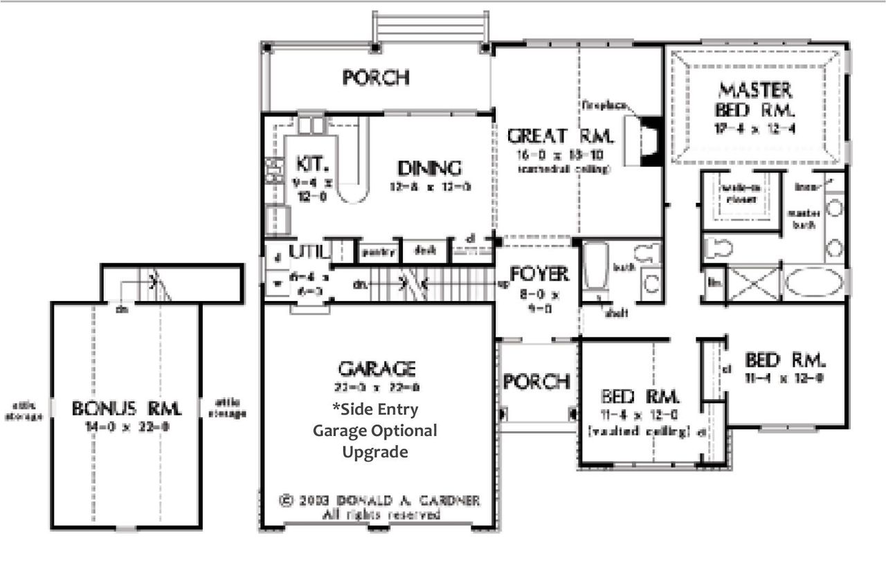
About this Plan
Discover the Dewfield floor plan in Rowland Spring, an outstanding community designed by Bamford and Company in the city of Cartersville. This plan uses high-quality materials and finishes to create a luxurious ambiance you'll love coming home to for years.
Located at Cartersville, GA 30120 in the prestigious Rowland Spring, you'll find a collection of other new construction homes created with various layouts, along with a welcoming community of neighbors and a variety of amenities to enrich your lifestyle.
Does Dewfield sound like your dream floor plan? Work with Jome to make it a reality. Contact a New Construction Specialist to take the first step towards a lifestyle of convenience and luxury in your future home.
May also be listed on the Bamford and Company website
Information last verified by Jome: Tuesday at 11:21 AM (May 13, 2025)
Plan details
- Name:
- The Dewfield
- Property status:
- Sold
- Size:
- 2,052 sqft
- Stories:
- 1
- Beds:
- 3
- Baths:
- 2
- Garage spaces:
- 2
Plan features & finishes
- Garage/Parking:
- GarageAttached Garage
- Interior Features:
- Walk-In ClosetFoyerPantry
- Laundry facilities:
- Utility/Laundry Room
- Property amenities:
- PatioPorch
- Rooms:
- Primary Bedroom On MainKitchenDining RoomFamily RoomOpen Concept FloorplanPrimary Bedroom Downstairs

Community details
Rowland Springs
by Bamford and Company, Cartersville, GA
View Rowland Springs details
Want to know more about what's around here?
The The Dewfield floor plan is part of Rowland Springs, a new home community by Bamford and Company, located in Cartersville, GA. Visit the Rowland Springs community page for full neighborhood insights, including nearby schools, shopping, walk & bike-scores, commuting, air quality & natural hazards.

Financials
Nearby communities in Cartersville
Homes in Cartersville by Bamford and Company
Recently added communities in this area
Other Builders in Cartersville, GA
Nearby sold homes
New homes in nearby cities
More New Homes in Cartersville, GA
- Jome
- New homes search
- Georgia
- Atlanta Metropolitan Area
- Bartow County
- Cartersville
- Rowland Springs
- 24 Aaron Ln, Cartersville, GA 30121
































































