

- 4 bd
- 4.5 ba
- 3,979 sqft
The Walton plan in The Enclave on Lavista by JW Collection
New Homes for Sale Near 4738 Lavista Rd, Tucker, GA 30084
About this Plan
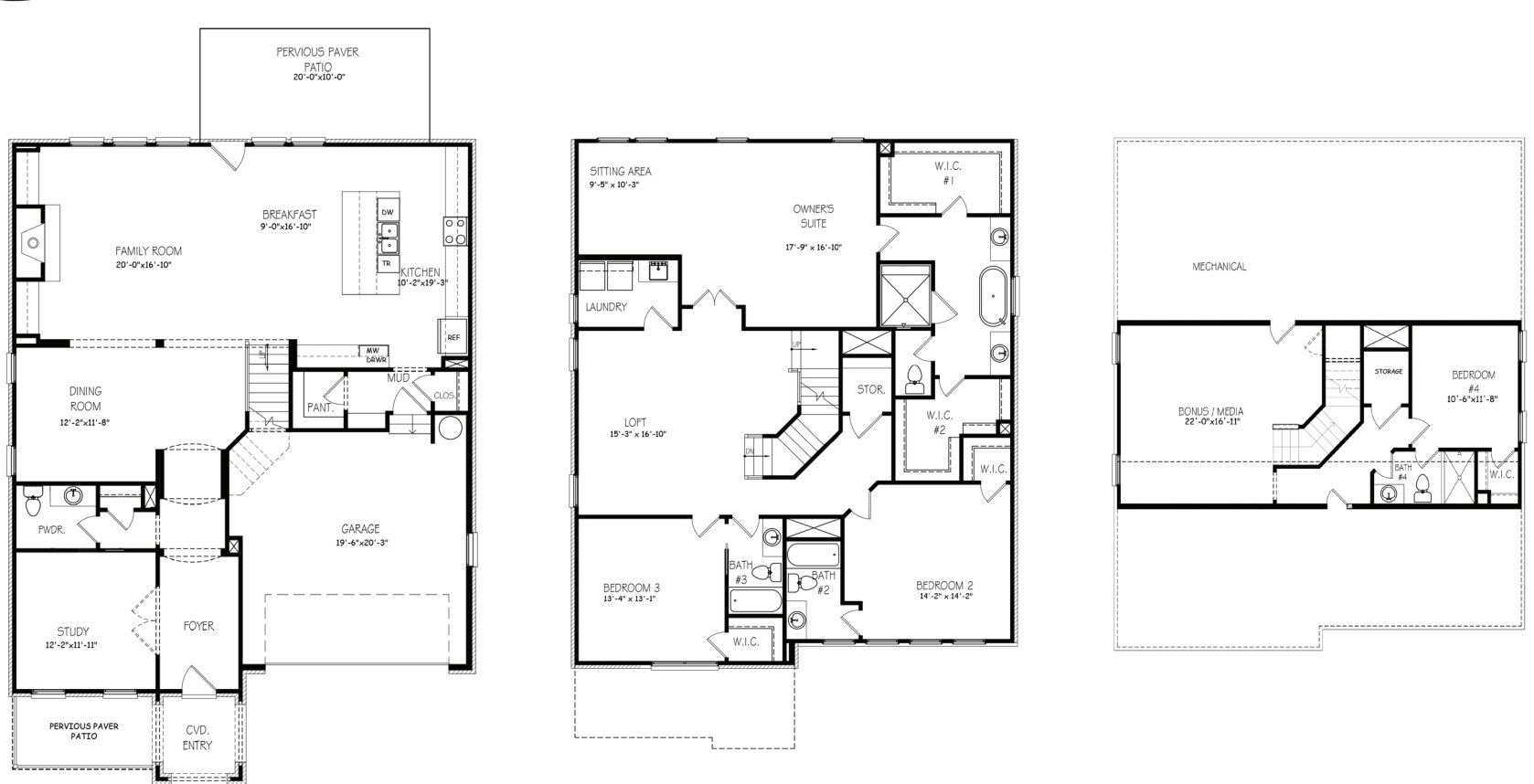
Discover the The Walton floor plan in The Enclave on Lavista, an outstanding community designed by JW Collection in the city of Tucker. This plan uses high-quality materials and finishes to create a luxurious ambiance you'll love coming home to for years.
Located at 4738 Lavista Rd, Tucker, GA 30084 in the prestigious The Enclave on Lavista, you'll find a collection of other new construction homes created with various layouts, along with a welcoming community of neighbors and a variety of amenities to enrich your lifestyle.
The The Walton is a beautiful 3-story floor plan with 4 spacious bedrooms, and 4.5 modern bathrooms spread over 3,979 square feet. This plan also includes a garage with 2 spaces for parking vehicles, extra storage, or hobby essentials.
You'll love the convenience of being close to fantastic shopping, top-notch dining options, entertainment, and opportunities for outdoor adventures. Plus, The Enclave on Lavista is zoned to the reputable DeKalb County School District, providing easy access to the best schools in the area.
Does The Walton sound like your dream floor plan? Work with Jome to make it a reality. Contact a New Construction Specialist to take the first step towards a lifestyle of convenience and luxury in your future home.
May also be listed on the JW Collection website
Information last verified by Jome: Wednesday at 9:28 AM (July 23, 2025)
Plan details
- Name:
- The Walton
- Property type:
- Sold
- Community:
- The Enclave on Lavista
- Builder:
- JW Collection
- Size:
- 3,979 sqft
- Stories:
- 3+
- Beds:
- 4
- Baths:
- 4.5
- Garage spaces:
- 2
Plan features & finishes
- Garage/Parking:
- GarageAttached Garage
- Interior Features:
- Walk-In ClosetFoyerPantryLoft
- Laundry facilities:
- Utility/Laundry Room
- Property amenities:
- PatioPorch
- Rooms:
- Bonus RoomSitting AreaKitchenPowder RoomOffice/StudyMudroomDining RoomFamily RoomBreakfast AreaOpen Concept FloorplanPrimary Bedroom Upstairs

Community details
The Enclave on Lavista
by JW Collection, Tucker, GA
View The Enclave on Lavista details
Want to know more about what's around here?
The The Walton floor plan is part of The Enclave on Lavista, a new home community by JW Collection, located in Tucker, GA. Visit the The Enclave on Lavista community page for full neighborhood insights, including nearby schools, shopping, walk & bike-scores, commuting, air quality & natural hazards.

Financials
Nearby communities in Tucker
Recently added communities in this area
Other Builders in Tucker, GA
Nearby sold homes
New homes in nearby cities
More New Homes in Tucker, GA
- Jome
- New homes search
- Georgia
- Atlanta Metropolitan Area
- Dekalb County
- Tucker
- The Enclave on Lavista
- 4738 Lavista Rd, Tucker, GA 30084
















































