








Book your tour. Save an average of $18,473. We'll handle the rest.
We collect exclusive builder offers, book your tours, and support you from start to housewarming.
- Confirmed tours
- Get matched & compare top deals
- Expert help, no pressure
- No added fees
Estimated value based on Jome data, T&C apply



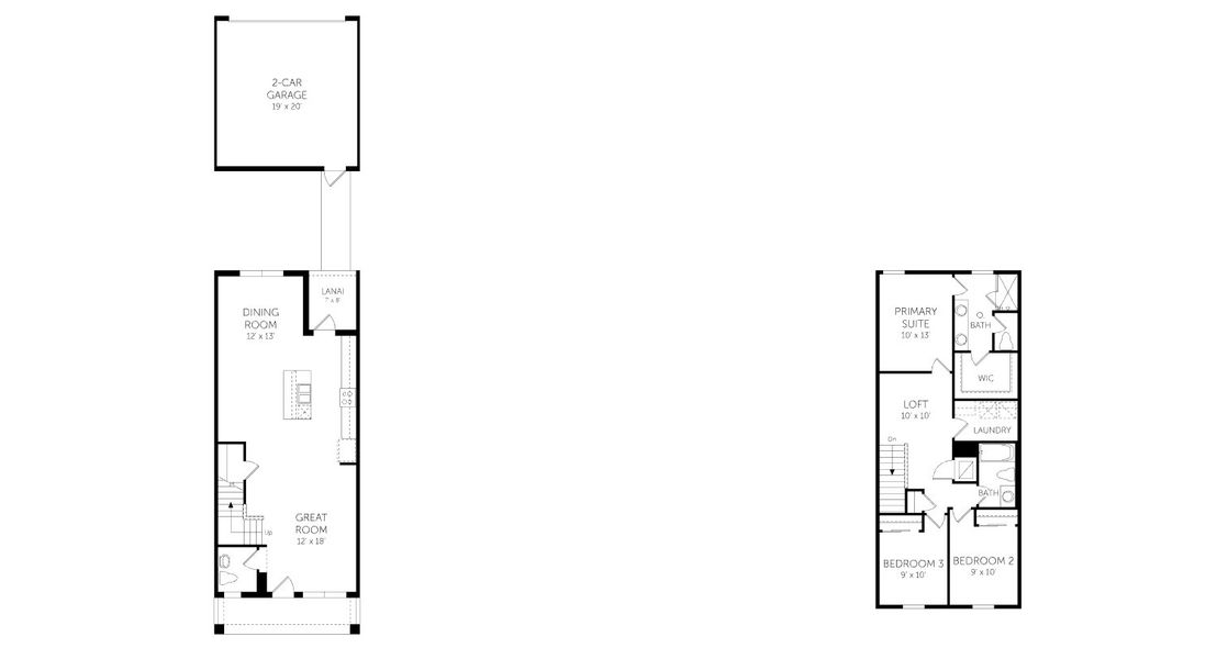
- 3 bd
- 2.5 ba
- 1,729 sqft
Sage - Townhomes plan in Hamlin Meadows by Dream Finders Homes
Visit the community to experience this floor plan
Why tour with Jome?
- No pressure toursTour at your own pace with no sales pressure
- Expert guidanceGet insights from our home buying experts
- Exclusive accessSee homes and deals not available elsewhere
Jome is featured in
Plan description
May also be listed on the Dream Finders Homes website
Information last verified by Jome: Today at 5:12 AM (May 5, 2026)
Plan details
- Name:
- Sage - Townhomes
- Property type:
- Floor plan
- Community:
- Hamlin Meadows
- Builder:
- Dream Finders Homes
- Collection:
- Hamlin Meadows Townhomes
- Size:
- 1,729 sqft
- Stories:
- 2
- Beds:
- 3
- Baths:
- 2
- Half baths:
- 1
- Garage spaces:
- 2
Plan features & finishes
- Garage/Parking:
- Garage
- Interior Features:
- Walk-In ClosetPantryLoft
- Kitchen:
- Kitchen Island
- Laundry facilities:
- Utility/Laundry Room
- Property amenities:
- Lanai
- Rooms:
- KitchenPowder RoomDining RoomFamily RoomOpen Concept FloorplanPrimary Bedroom Upstairs
- Upgrade Options:
- Shower

Get a consultation with our New Homes Expert
- See how your home builds wealth
- Plan your home-buying roadmap
- Discover hidden gems
See the full plan layout
Download the floor plan PDF with room dimensions and home design details.

Instant download, no cost

Community details
Hamlin Meadows
by Dream Finders Homes, Winter Garden, FL
- 23 homes
- 17 plans
- 1,644 - 3,550 sqft
View Hamlin Meadows details
Want to know more about what's around here?
The Sage - Townhomes floor plan is part of Hamlin Meadows, a new home community by Dream Finders Homes, located in Winter Garden, FL. Visit the Hamlin Meadows community page for full neighborhood insights, including nearby schools, shopping, walk & bike-scores, commuting, air quality & natural hazards.

Available homes in Hamlin Meadows
- Home at address 7312 Windy Willow Strret Winter Gdn, Winter Garden, FL 34787

Porter
SavingsHamlin Meadows Townhomes
$477,876
- 3 bd
- 3 ba
- 1,715 sqft
7312 Windy Willow Strret Winter Gdn, Winter Garden, FL 34787
- Home at address 7276 Windy Willow Strret Winter Gdn, Winter Garden, FL 34787

Porter
SavingsHamlin Meadows Townhomes
$478,213
- 3 bd
- 3 ba
- 1,715 sqft
7276 Windy Willow Strret Winter Gdn, Winter Garden, FL 34787
- Home at address 7308 Windy Willow Strret Winter Gdn, Winter Garden, FL 34787

Porter
SavingsHamlin Meadows Townhomes
$478,466
- 3 bd
- 3 ba
- 1,715 sqft
7308 Windy Willow Strret Winter Gdn, Winter Garden, FL 34787
- Home at address 7284 Windy Willow Strret Winter Gdn, Winter Garden, FL 34787

Porter
SavingsHamlin Meadows Townhomes
$478,962
- 3 bd
- 3 ba
- 1,715 sqft
7284 Windy Willow Strret Winter Gdn, Winter Garden, FL 34787
- Home at address 17728 Porter Rd, Winter Garden, FL 34787

Porter
SavingsHamlin Meadows Townhomes
$480,198
- 3 bd
- 3 ba
- 1,715 sqft
17728 Porter Rd, Winter Garden, FL 34787
- Home at address 17001 Haggerty Hollow Dr, Winter Garden, FL 34787

Harbor
SavingsHamlin Meadows Townhomes
$480,704
- 3 bd
- 2.5 ba
- 1,644 sqft
17001 Haggerty Hollow Dr, Winter Garden, FL 34787
More floor plans in Hamlin Meadows
- View details for Harbor - Townhomes

Harbor - Townhomes
SavingsHamlin Meadows Townhomes
$429,990+- 3 bd
- 2.5 ba
- 1,644 sqft
- View details for Porter - Townhomes

Porter - Townhomes
SavingsHamlin Meadows Townhomes
$444,990+- 3 bd
- 3 ba
- 1,715 sqft

Considering this plan?
Our expert will guide your tour, in-person or virtual
Need more information?
Text or call (888) 545-5198
Financials
Estimated monthly payment
Let us help you find your dream home
How many bedrooms are you looking for?





























