













Book your tour. Save an average of $18,473. We'll handle the rest.
- Confirmed tours
- Get matched & compare top deals
- Expert help, no pressure
- No added fees
Estimated value based on Jome data, T&C apply
























- 4 bd
- 2 ba
- 1,819 sqft
Raychel plan in Myrtlebrook Preserve by Highland Homes of Florida
Visit the community to experience this floor plan
Why tour with Jome?
- No pressure toursTour at your own pace with no sales pressure
- Expert guidanceGet insights from our home buying experts
- Exclusive accessSee homes and deals not available elsewhere
Jome is featured in
Plan description
May also be listed on the Highland Homes of Florida website
Information last verified by Jome: Today at 7:17 AM (December 5, 2025)
Plan highlights
Plan details
- Name:
- Raychel
- Property status:
- Floor plan
- Size:
- 1,819 sqft
- Stories:
- 1
- Beds:
- 4
- Baths:
- 2
- Garage spaces:
- 2
Plan features & finishes
- Garage/Parking:
- GarageAttached Garage
- Interior Features:
- Walk-In ClosetFoyerPantryTray Ceiling
- Kitchen:
- Stainless Steel AppliancesQuartz countertopKitchen Island
- Laundry facilities:
- Utility/Laundry Room
- Property amenities:
- LanaiPorch
- Rooms:
- Primary Bedroom On MainKitchenFamily RoomBreakfast AreaOpen Concept FloorplanPrimary Bedroom Downstairs
- Upgrade Options:
- Extended GarageSliding Glass DoorsAlternate Primary BathFrench Door
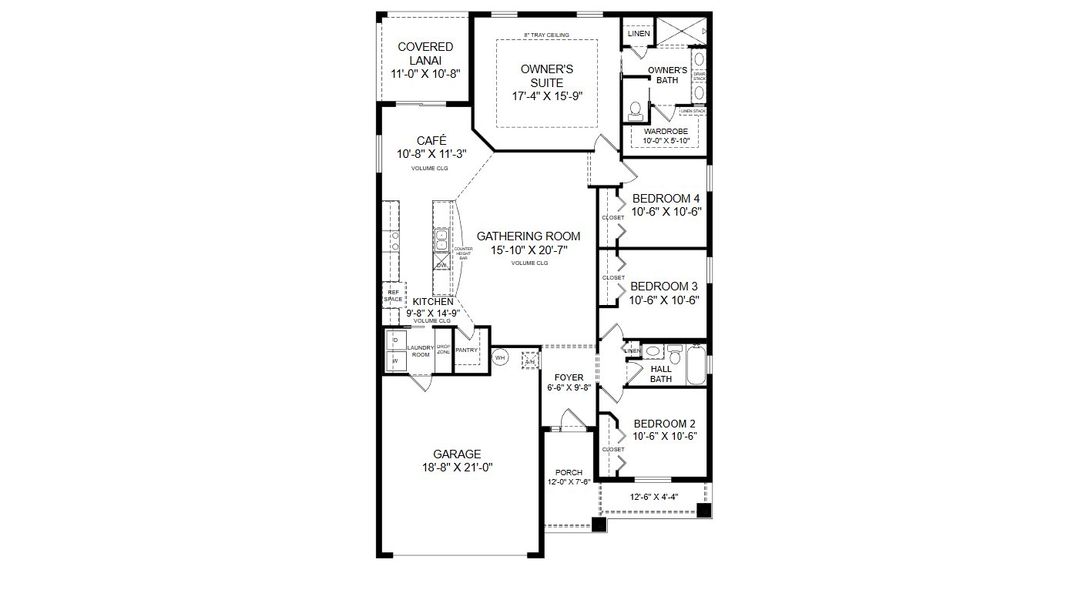
See the full plan layout
Download the floor plan PDF with room dimensions and home design details.

Instant download, no cost

Community details
Myrtlebrook Preserve
by Highland Homes of Florida, Lakeland, FL
- 9 homes
- 10 plans
- 1,358 - 3,162 sqft
View Myrtlebrook Preserve details
Want to know more about what's around here?
The Raychel floor plan is part of Myrtlebrook Preserve, a new home community by Highland Homes of Florida, located in Lakeland, FL. Visit the Myrtlebrook Preserve community page for full neighborhood insights, including nearby schools, shopping, walk & bike-scores, commuting, air quality & natural hazards.

Homes built from this plan
Available homes in Myrtlebrook Preserve
More floor plans in Myrtlebrook Preserve

Considering this plan?
Our expert will guide your tour, in-person or virtual
Need more information?
Text or call (888) 486-2818
Financials
Estimated monthly payment
Similar homes nearby
Recently added communities in this area
Nearby communities in Lakeland
New homes in nearby cities
More New Homes in Lakeland, FL
- Home
- New homes
- Florida
- Greater Orlando Area
- Polk County
- Lakeland
- Myrtlebrook Preserve
- 6413 Evergreen Meadows Dr, Lakeland, FL 33810



































