






Book your tour. Save an average of $18,473. We'll handle the rest.
We collect exclusive builder offers, book your tours, and support you from start to housewarming.
- Confirmed tours
- Get matched & compare top deals
- Expert help, no pressure
- No added fees
Estimated value based on Jome data, T&C apply



- 4 bd
- 3 ba
- 3,155 sqft
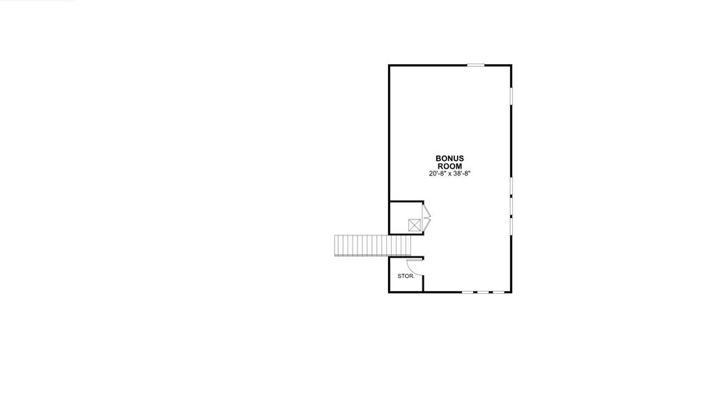
Liberty Bonus plan in Fox Branch by M/I Homes
Visit the community to experience this floor plan
Why tour with Jome?
- No pressure toursTour at your own pace with no sales pressure
- Expert guidanceGet insights from our home buying experts
- Exclusive accessSee homes and deals not available elsewhere
Jome is featured in
Plan description
May also be listed on the M/I Homes website
Information last verified by Jome: Today at 8:37 AM (April 21, 2026)
Plan details
- Name:
- Liberty Bonus
- Property type:
- Floor plan
- Community:
- Fox Branch
- Builder:
- M/I Homes
- Size:
- 3,155 sqft
- Stories from:
- 1
- Stories to:
- 2
- Beds:
- 4
- Baths:
- 3
- Garage spaces:
- 3
Plan features & finishes
- Garage/Parking:
- GarageAttached Garage
- Interior Features:
- Walk-In ClosetFoyerPantryStorage
- Kitchen:
- Kitchen Island
- Laundry facilities:
- Utility/Laundry Room
- Property amenities:
- Porch
- Rooms:
- Bonus RoomPrimary Bedroom On MainKitchenDining RoomFamily RoomBreakfast AreaOpen Concept FloorplanPrimary Bedroom Downstairs
- Upgrade Options:
- Extra BathroomDual SinksExtra BedroomShower

Get a consultation with our New Homes Expert
- See how your home builds wealth
- Plan your home-buying roadmap
- Discover hidden gems
See the full plan layout
Download the floor plan PDF with room dimensions and home design details.

Instant download, no cost

Community details
Fox Branch
by M/I Homes, Lakeland, FL
- 25 homes
- 12 plans
- 1,519 - 3,761 sqft
View Fox Branch details
Want to know more about what's around here?
The Liberty Bonus floor plan is part of Fox Branch, a new home community by M/I Homes, located in Lakeland, FL. Visit the Fox Branch community page for full neighborhood insights, including nearby schools, shopping, walk & bike-scores, commuting, air quality & natural hazards.

Homes built from this plan
Available homes in Fox Branch
- Home at address 4525 Lake Fox Dr, Lakeland, FL 33810

Elmhurst
Savings$404,060
- 4 bd
- 3 ba
- 2,223 sqft
4525 Lake Fox Dr, Lakeland, FL 33810
- Home at address 8425 Fox Den Cv, Lakeland, FL 33810

Liberty
Savings$425,000
- 4 bd
- 3 ba
- 2,313 sqft
8425 Fox Den Cv, Lakeland, FL 33810
- Home at address 8413 Fox Den Cv, Lakeland, FL 33810

Liberty
Savings$429,200
- 4 bd
- 3 ba
- 2,313 sqft
8413 Fox Den Cv, Lakeland, FL 33810
- Home at address 8419 Fox Den Cv, Lakeland, FL 33810

Liberty
Savings$439,640
- 4 bd
- 3 ba
- 2,313 sqft
8419 Fox Den Cv, Lakeland, FL 33810
- Home at address 8437 Fox Den Cv, Lakeland, FL 33810

Liberty
Savings$445,200
- 4 bd
- 3 ba
- 2,313 sqft
8437 Fox Den Cv, Lakeland, FL 33810
- Home at address 8473 Fox Den Cv, Lakeland, FL 33810

Haven
Savings$447,070
- 4 bd
- 3 ba
- 2,546 sqft
8473 Fox Den Cv, Lakeland, FL 33810
More floor plans in Fox Branch

Considering this plan?
Our expert will guide your tour, in-person or virtual
Need more information?
Text or call (888) 545-5198
Financials
Estimated monthly payment
Let us help you find your dream home
How many bedrooms are you looking for?
Similar homes nearby
Recently added communities in this area
Nearby communities in Lakeland
New homes in nearby cities
More New Homes in Lakeland, FL
- Jome
- New homes search
- Florida
- Greater Orlando Area
- Polk County
- Lakeland
- Fox Branch
- 8424 Kathleen Rd, Lakeland, FL 33810
































