






Book your tour. Save an average of $18,473. We'll handle the rest.
We collect exclusive builder offers, book your tours, and support you from start to housewarming.
- Confirmed tours
- Get matched & compare top deals
- Expert help, no pressure
- No added fees
Estimated value based on Jome data, T&C apply



- 3 bd
- 2.5 ba
- 2,081 sqft
Blue Spring plan in Summerlit by Mattamy Homes
Visit the community to experience this floor plan
Why tour with Jome?
- No pressure toursTour at your own pace with no sales pressure
- Expert guidanceGet insights from our home buying experts
- Exclusive accessSee homes and deals not available elsewhere
Jome is featured in
Plan description
May also be listed on the Mattamy Homes website
Information last verified by Jome: Today at 5:37 AM (April 21, 2026)
Plan details
- Name:
- Blue Spring
- Property type:
- Floor plan
- Community:
- Summerlit
- Builder:
- Mattamy Homes
- Size:
- 2,081 sqft
- Stories:
- 2
- Beds:
- 3
- Baths:
- 2
- Half baths:
- 1
- Garage spaces:
- 2
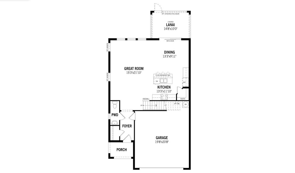
Plan features & finishes
- Garage/Parking:
- GarageAttached Garage
- Interior Features:
- Walk-In ClosetFoyerPantryLoft
- Kitchen:
- Kitchen Island
- Laundry facilities:
- Utility/Laundry Room
- Property amenities:
- LanaiPorch
- Rooms:
- Great RoomKitchenPowder RoomDining RoomOpen Concept FloorplanPrimary Bedroom Upstairs
- Upgrade Options:
- Sliding Glass DoorsExtra BedroomShowerExtended Lanai

Get a consultation with our New Homes Expert
- See how your home builds wealth
- Plan your home-buying roadmap
- Discover hidden gems
See the full plan layout
Download the floor plan PDF with room dimensions and home design details.

Instant download, no cost

Community details
Summerlit
by Mattamy Homes, Naples, FL
- 6 homes
- 15 plans
- 1,544 - 2,582 sqft
View Summerlit details
Want to know more about what's around here?
The Blue Spring floor plan is part of Summerlit, a new home community by Mattamy Homes, located in Naples, FL. Visit the Summerlit community page for full neighborhood insights, including nearby schools, shopping, walk & bike-scores, commuting, air quality & natural hazards.

Available homes in Summerlit
- Home at address 1846 Summerlit Ave, Naples, FL 34114

Terra Rosa II
Savings$738,033
- 3 bd
- 3 ba
- 2,516 sqft
1846 Summerlit Ave, Naples, FL 34114
More floor plans in Summerlit

Considering this plan?
Our expert will guide your tour, in-person or virtual
Need more information?
Text or call (888) 545-5198
Financials
Estimated monthly payment
Let us help you find your dream home
How many bedrooms are you looking for?
Similar homes nearby
Recently added communities in this area
Nearby communities in Naples
New homes in nearby cities
More New Homes in Naples, FL
- Jome
- New homes search
- Florida
- Collier County
- Naples
- Summerlit
- Naples, FL 34114






























