












Book your tour. Save an average of $18,473. We'll handle the rest.
We collect exclusive builder offers, book your tours, and support you from start to housewarming.
- Confirmed tours
- Get matched & compare top deals
- Expert help, no pressure
- No added fees
Estimated value based on Jome data, T&C apply













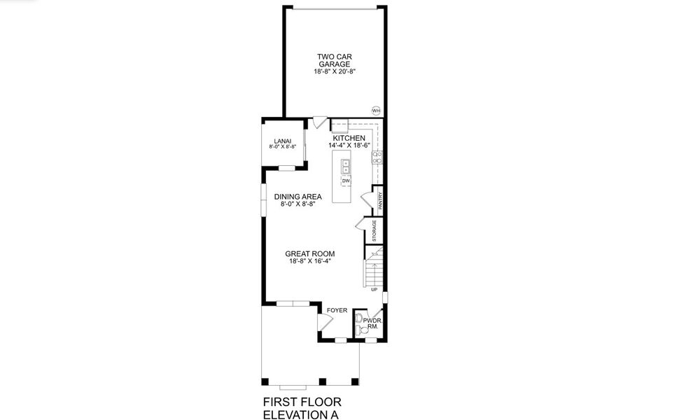
- 3 bd
- 2.5 ba
- 1,880 sqft
Dawson plan in Lake Mattie Preserve by Ryan Homes
Visit the community to experience this floor plan
Why tour with Jome?
- No pressure toursTour at your own pace with no sales pressure
- Expert guidanceGet insights from our home buying experts
- Exclusive accessSee homes and deals not available elsewhere
Jome is featured in
Plan description
May also be listed on the Ryan Homes website
Information last verified by Jome: Today at 1:33 AM (March 9, 2026)
Plan details
- Name:
- Dawson
- Property type:
- Floor plan
- Community:
- Lake Mattie Preserve
- Builder:
- Ryan Homes
- Collection:
- Lake Mattie Preserve Single-Family
- Size:
- 1,880 sqft
- Stories:
- 2
- Beds:
- 3
- Baths:
- 2
- Half baths:
- 1
- Garage spaces:
- 2
Plan features & finishes
- Garage/Parking:
- GarageAttached Garage
- Interior Features:
- Walk-In ClosetFoyerPantryStorageLoft
- Kitchen:
- Kitchen Island
- Laundry facilities:
- Utility/Laundry Room
- Property amenities:
- Lanai
- Rooms:
- KitchenPowder RoomDining RoomFamily RoomOpen Concept FloorplanPrimary Bedroom Upstairs
- Upgrade Options:
- Laundry Sink

Get a consultation with our New Homes Expert
- See how your home builds wealth
- Plan your home-buying roadmap
- Discover hidden gems
See the full plan layout
Download the floor plan PDF with room dimensions and home design details.

Instant download, no cost

Community details
Lake Mattie Preserve
by Ryan Homes, Auburndale, FL
- 8 homes
- 9 plans
- 1,687 - 3,029 sqft
View Lake Mattie Preserve details
Want to know more about what's around here?
The Dawson floor plan is part of Lake Mattie Preserve, a new home community by Ryan Homes, located in Auburndale, FL. Visit the Lake Mattie Preserve community page for full neighborhood insights, including nearby schools, shopping, walk & bike-scores, commuting, air quality & natural hazards.

Homes built from this plan
Available homes in Lake Mattie Preserve
- Home at address 3284 Mourning Dove Dr, Auburndale, FL 33823

Home
Lake Mattie Preserve Townhomes
$258,990
- 3 bd
- 2.5 ba
- 1,687 sqft
3284 Mourning Dove Dr, Auburndale, FL 33823
- Home at address 3300 Mourning Dove Dr, Auburndale, FL 33823

Home
Lake Mattie Preserve Townhomes
$259,990
- 3 bd
- 2.5 ba
- 1,687 sqft
3300 Mourning Dove Dr, Auburndale, FL 33823
- Home at address 3312 Mourning Dove Dr, Auburndale, FL 33823

Home
Lake Mattie Preserve Townhomes
$268,485
- 3 bd
- 2.5 ba
- 1,687 sqft
3312 Mourning Dove Dr, Auburndale, FL 33823
- Home at address 2134 Blue Heron Cir, Auburndale, FL 33823

Home
Lake Mattie Preserve Estates
$365,990
- 4 bd
- 2 ba
- 1,835 sqft
2134 Blue Heron Cir, Auburndale, FL 33823
- Home at address 2190 Blue Heron Cir, Auburndale, FL 33823

Home
Lake Mattie Preserve Estates
$389,990
- 4 bd
- 2.5 ba
- 2,081 sqft
2190 Blue Heron Cir, Auburndale, FL 33823
- Home at address 2218 Blue Heron Cir, Auburndale, FL 33823

Home
Lake Mattie Preserve Estates
$425,990
- 4 bd
- 3 ba
- 2,551 sqft
2218 Blue Heron Cir, Auburndale, FL 33823
More floor plans in Lake Mattie Preserve
- View details for Allegro Exterior Home

Allegro Exterior Home
Lake Mattie Preserve Townhomes
$269,990+- 3 bd
- 2.5 ba
- 1,687 sqft

Considering this plan?
Our expert will guide your tour, in-person or virtual
Need more information?
Text or call (888) 488-9243
Financials
Estimated monthly payment
Let us help you find your dream home
How many bedrooms are you looking for?
Similar homes nearby
Recently added communities in this area
Nearby communities in Auburndale
New homes in nearby cities
More New Homes in Auburndale, FL
- Jome
- New homes search
- Florida
- Tampa Bay Area
- Polk County
- Auburndale
- Lake Mattie Preserve
- Lake Mattie Preserve Single-Family
- 603 Bentley N Dr, Auburndale, FL 33823





























