









Book your tour. Save an average of $18,473. We'll handle the rest.
We collect exclusive builder offers, book your tours, and support you from start to housewarming.
- Confirmed tours
- Get matched & compare top deals
- Expert help, no pressure
- No added fees
Estimated value based on Jome data, T&C apply












- 5 bd
- 3 ba
- 2,434 sqft
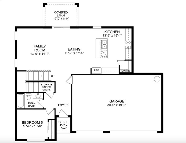
The Linden plan in Wynnstone by Stanley Martin Homes
Visit the community to experience this floor plan
Why tour with Jome?
- No pressure toursTour at your own pace with no sales pressure
- Expert guidanceGet insights from our home buying experts
- Exclusive accessSee homes and deals not available elsewhere
Jome is featured in
Plan description
May also be listed on the Stanley Martin Homes website
Information last verified by Jome: Yesterday at 8:15 AM (April 14, 2026)
Plan details
- Name:
- The Linden
- Property type:
- Floor plan
- Community:
- Wynnstone
- Builder:
- Stanley Martin Homes
- Size:
- 2,434 sqft
- Stories:
- 2
- Beds:
- 5
- Baths:
- 3
- Garage spaces:
- 2
Plan features & finishes
- Garage/Parking:
- GarageAttached Garage
- Interior Features:
- Walk-In ClosetFoyerPantryStorageLoft
- Laundry facilities:
- Utility/Laundry Room
- Property amenities:
- LanaiPorch
- Rooms:
- Flex RoomKitchenPowder RoomDining RoomFamily RoomPrimary Bedroom Upstairs
- Upgrade Options:
- Covered Lanai

Get a consultation with our New Homes Expert
- See how your home builds wealth
- Plan your home-buying roadmap
- Discover hidden gems
See the full plan layout
Download the floor plan PDF with room dimensions and home design details.

Instant download, no cost

Community details
Wynnstone
by Stanley Martin Homes, Davenport, FL
- 10 homes
- 11 plans
- 1,426 - 2,856 sqft
View Wynnstone details
Want to know more about what's around here?
The The Linden floor plan is part of Wynnstone, a new home community by Stanley Martin Homes, located in Davenport, FL. Visit the Wynnstone community page for full neighborhood insights, including nearby schools, shopping, walk & bike-scores, commuting, air quality & natural hazards.

Homes built from this plan
Available homes in Wynnstone
- Home at address 5484 Meadow Walk Dr, Davenport, FL 33837

Lewiston
$329,210
- 3 bd
- 2 ba
- 1,640 sqft
5484 Meadow Walk Dr, Davenport, FL 33837
- Home at address 4470 River Beacon Blvd, Davenport, FL 33837

Home
$341,490
- 3 bd
- 2 ba
- 1,604 sqft
4470 River Beacon Blvd, Davenport, FL 33837
- Home at address 3912 Altitude Run, Davenport, FL 33837

The Portland
$349,990
- 3 bd
- 2 ba
- 1,589 sqft
3912 Altitude Run, Davenport, FL 33837
- Home at address 3831 Rising Trl, Davenport, FL 33837

Home
$350,490
- 3 bd
- 2 ba
- 1,589 sqft
3831 Rising Trl, Davenport, FL 33837
- Home at address 5491 Meadow Walk Dr, Davenport, FL 33837

Lewiston
$350,710
- 3 bd
- 2 ba
- 1,604 sqft
5491 Meadow Walk Dr, Davenport, FL 33837
- Home at address 3848 Rising Trl, Davenport, FL 33837

Home
$356,415
- 3 bd
- 2 ba
- 1,589 sqft
3848 Rising Trl, Davenport, FL 33837
More floor plans in Wynnstone

Considering this plan?
Our expert will guide your tour, in-person or virtual
Need more information?
Text or call (888) 545-5198
Financials
Let us help you find your dream home
How many bedrooms are you looking for?
Similar homes nearby
Recently added communities in this area
Nearby communities in Davenport
New homes in nearby cities
More New Homes in Davenport, FL
- Jome
- New homes search
- Florida
- Greater Orlando Area
- Polk County
- Davenport
- Wynnstone
- 4632 Hikers Dr, Davenport, FL 33837




























