



Book your tour. Save an average of $18,473. We'll handle the rest.
We collect exclusive builder offers, book your tours, and support you from start to housewarming.
- Confirmed tours
- Get matched & compare top deals
- Expert help, no pressure
- No added fees
Estimated value based on Jome data, T&C apply
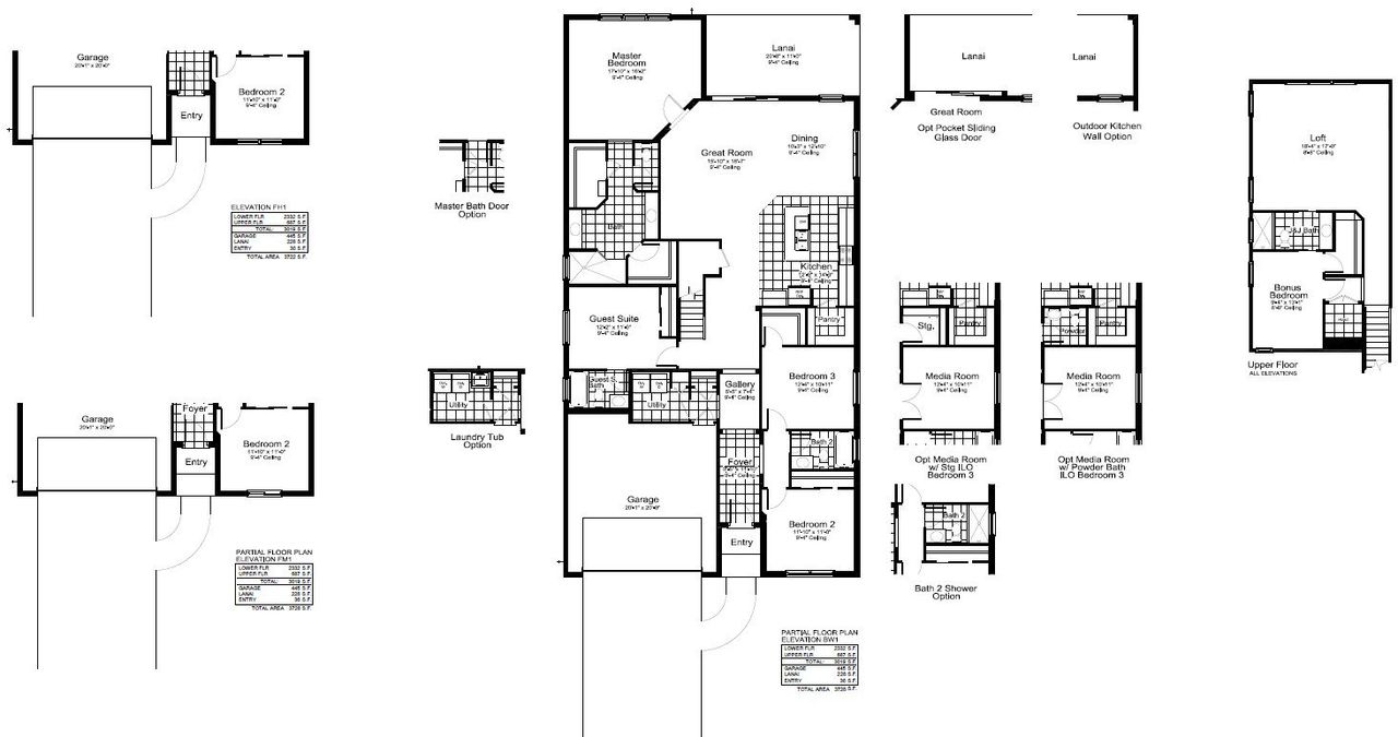
- 5 bd
- 3 ba
- 3,019 sqft
Summit plan in Windward by Neal Communities
Visit the community to experience this floor plan
Why tour with Jome?
- No pressure toursTour at your own pace with no sales pressure
- Expert guidanceGet insights from our home buying experts
- Exclusive accessSee homes and deals not available elsewhere
Jome is featured in
Plan description
May also be listed on the Neal Communities website
Information last verified by Jome: Sunday at 3:38 PM (February 15, 2026)
Plan details
- Name:
- Summit
- Property status:
- Floor plan
- Size:
- 3,019 sqft
- Stories:
- 1
- Beds:
- 5
- Baths:
- 3
- Garage spaces:
- 2
Plan features & finishes
- Garage/Parking:
- GarageAttached Garage
- Interior Features:
- Walk-In ClosetPantryLoft
- Laundry facilities:
- Utility/Laundry Room
- Property amenities:
- Lanai
- Rooms:
- Bonus RoomPrimary Bedroom On MainKitchenDining RoomFamily RoomPrimary Bedroom Downstairs

Get a consultation with our New Homes Expert
- See how your home builds wealth
- Plan your home-buying roadmap
- Discover hidden gems
See the full plan layout
Download the floor plan PDF with room dimensions and home design details.

Instant download, no cost

Community details
Windward at Lakewood Ranch
by Neal Communities, Sarasota, FL
- 2 homes
- 23 plans
- 1,433 - 3,677 sqft
View Windward details
Community amenities
- Guest Suites
Want to know more about what's around here?
The Summit floor plan is part of Windward, a new home community by Neal Communities, located in Sarasota, FL. Visit the Windward community page for full neighborhood insights, including nearby schools, shopping, walk & bike-scores, commuting, air quality & natural hazards.

Homes built from this plan
Available homes in Windward
- Home at address 2537 Star Apple Wy, Sarasota, FL 34240

Home
$693,990
- 4 bd
- 2.5 ba
- 2,429 sqft
2537 Star Apple Wy, Sarasota, FL 34240
- Home at address 2444 Star Apple Wy, Sarasota, FL 34240

Laurel 2
$745,990
- 3 bd
- 3.5 ba
- 3,244 sqft
2444 Star Apple Wy, Sarasota, FL 34240
More floor plans in Windward

Considering this plan?
Our expert will guide your tour, in-person or virtual
Need more information?
Text or call (888) 488-9243
Financials
Estimated monthly payment
Let us help you find your dream home
How many bedrooms are you looking for?
Similar homes nearby
Recently added communities in this area
Nearby communities in Sarasota
New homes in nearby cities
More New Homes in Sarasota, FL
- Jome
- New homes search
- Florida
- Tampa Bay Area
- Sarasota County
- Sarasota
- Windward
- 2618 Paradise Plum Dr, Sarasota, FL 34240




























