









Book your tour. Save an average of $18,473. We'll handle the rest.
- Confirmed tours
- Get matched & compare top deals
- Expert help, no pressure
- No added fees
Estimated value based on Jome data, T&C apply
- 4 bd
- 4.5 ba
- 4,761 sqft
Lake Star plan in Solace at Corner Lake by M/I Homes
Visit the community to experience this floor plan
Why tour with Jome?
- No pressure toursTour at your own pace with no sales pressure
- Expert guidanceGet insights from our home buying experts
- Exclusive accessSee homes and deals not available elsewhere
Jome is featured in
Plan description
May also be listed on the M/I Homes website
Information last verified by Jome: Today at 7:32 AM (December 6, 2025)
Plan highlights
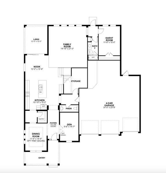
Plan details
- Name:
- Lake Star
- Property status:
- Floor plan
- Size from:
- 4,761 sqft
- Size to:
- 5,024 sqft
- Stories:
- 2
- Beds from:
- 4
- Beds to:
- 5
- Baths from:
- 4
- Baths to:
- 5
- Half baths:
- 1
- Garage spaces:
- 3
Plan features & finishes
- Garage/Parking:
- GarageAttached Garage
- Interior Features:
- Walk-In ClosetFoyerStorageLoft
- Laundry facilities:
- Utility/Laundry Room
- Property amenities:
- Lanai
- Rooms:
- KitchenDen RoomNookPowder RoomGuest RoomDining RoomFamily RoomPrimary Bedroom Upstairs
- Upgrade Options:
- BalconySitting Room
See the full plan layout
Download the floor plan PDF with room dimensions and home design details.

Instant download, no cost

Community details
Solace at Corner Lake
by M/I Homes, Orlando, FL
- 6 homes
- 8 plans
- 2,763 - 4,937 sqft
View Solace at Corner Lake details
Want to know more about what's around here?
The Lake Star floor plan is part of Solace at Corner Lake, a new home community by M/I Homes, located in Orlando, FL. Visit the Solace at Corner Lake community page for full neighborhood insights, including nearby schools, shopping, walk & bike-scores, commuting, air quality & natural hazards.

Available homes in Solace at Corner Lake
More floor plans in Solace at Corner Lake

Considering this plan?
Our expert will guide your tour, in-person or virtual
Need more information?
Text or call (888) 486-2818
































