









Book your tour. Save an average of $18,473. We'll handle the rest.
- Confirmed tours
- Get matched & compare top deals
- Expert help, no pressure
- No added fees
Estimated value based on Jome data, T&C apply





























- 6 bd
- 3 ba
- 2,580 sqft
Concord plan in New Port Corners: The Manors by Lennar
Visit the community to experience this floor plan
Why tour with Jome?
- No pressure toursTour at your own pace with no sales pressure
- Expert guidanceGet insights from our home buying experts
- Exclusive accessSee homes and deals not available elsewhere
Jome is featured in
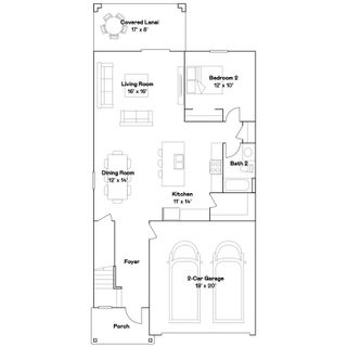
Plan description
May also be listed on the Lennar website
Information last verified by Jome: Yesterday at 10:16 AM (December 26, 2025)
Plan highlights
Plan details
- Name:
- Concord
- Property status:
- Floor plan
- Size:
- 2,580 sqft
- Stories:
- 2
- Beds:
- 6
- Baths:
- 3
- Garage spaces:
- 2
Plan features & finishes
- Garage/Parking:
- GarageAttached Garage
- Interior Features:
- Walk-In ClosetFoyerPantryLoft
- Kitchen:
- Kitchen Island
- Laundry facilities:
- Utility/Laundry Room
- Property amenities:
- LanaiPorch
- Rooms:
- KitchenDining RoomFamily RoomOpen Concept FloorplanPrimary Bedroom Upstairs
See the full plan layout
Download the floor plan PDF with room dimensions and home design details.

Instant download, no cost

Community details
New Port Corners: The Manors
by Lennar, New Port Richey, FL
- 7 homes
- 4 plans
- 1,870 - 2,580 sqft
View New Port Corners: The Manors details
Want to know more about what's around here?
The Concord floor plan is part of New Port Corners: The Manors, a new home community by Lennar, located in New Port Richey, FL. Visit the New Port Corners: The Manors community page for full neighborhood insights, including nearby schools, shopping, walk & bike-scores, commuting, air quality & natural hazards.

Homes built from this plan
Available homes in New Port Corners: The Manors
More floor plans in New Port Corners: The Manors

Considering this plan?
Our expert will guide your tour, in-person or virtual
Need more information?
Text or call (888) 486-2818
Financials
Estimated monthly payment
Similar homes nearby
Recently added communities in this area
Nearby communities in New Port Richey
New homes in nearby cities
More New Homes in New Port Richey, FL
- Jome
- New homes search
- Florida
- Tampa Bay Area
- Pasco County
- New Port Richey
- New Port Corners: The Manors
- 6530 Top Hill Dr, New Port Richey, FL 34655



































