

Book your tour. Save an average of $18,473. We'll handle the rest.
- Confirmed tours
- Get matched & compare top deals
- Expert help, no pressure
- No added fees
Estimated value based on Jome data, T&C apply
- 4 bd
- 2.5 ba
- 2,130 sqft
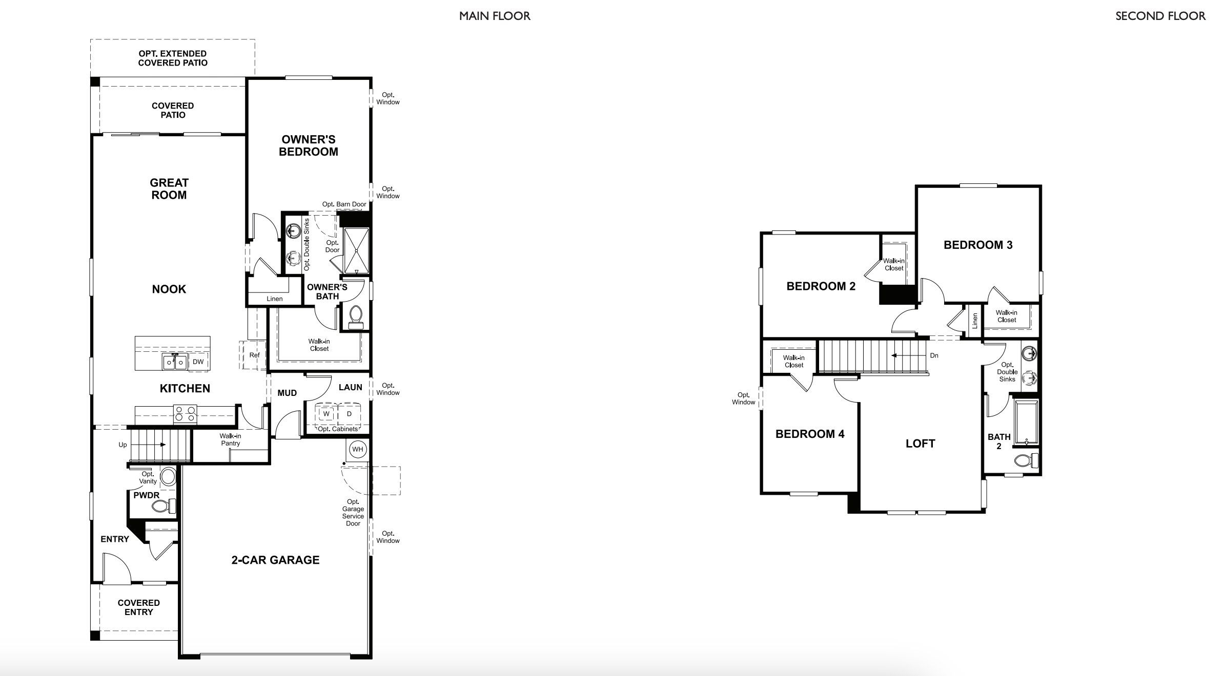
Lynwood plan in Waterset by Richmond American Homes
Visit the community to experience this floor plan
Why tour with Jome?
- No pressure toursTour at your own pace with no sales pressure
- Expert guidanceGet insights from our home buying experts
- Exclusive accessSee homes and deals not available elsewhere
Jome is featured in
Plan description
May also be listed on the Richmond American Homes website
Information last verified by Jome: Today at 5:01 AM (December 6, 2025)
Plan highlights
Plan details
- Name:
- Lynwood
- Property status:
- Floor plan
- Size:
- 2,130 sqft
- Stories:
- 2
- Beds:
- 4
- Baths:
- 2
- Half baths:
- 1
- Garage spaces:
- 2
Plan features & finishes
- Garage/Parking:
- GarageAttached Garage
- Interior Features:
- Walk-In ClosetFoyerPantryLoft
- Laundry facilities:
- Utility/Laundry Room
- Property amenities:
- Patio
- Rooms:
- KitchenDining RoomFamily RoomOpen Concept FloorplanPrimary Bedroom Downstairs
See the full plan layout
Download the floor plan PDF with room dimensions and home design details.

Instant download, no cost

Community details
Waterset at Waterset
by Richmond American Homes, Ruskin, FL
- 4 plans
- 1,578 - 2,353 sqft
View Waterset details
Want to know more about what's around here?
The Lynwood floor plan is part of Waterset, a new home community by Richmond American Homes, located in Apollo Beach, FL. Visit the Waterset community page for full neighborhood insights, including nearby schools, shopping, walk & bike-scores, commuting, air quality & natural hazards.


Considering this plan?
Our expert will guide your tour, in-person or virtual
Need more information?
Text or call (888) 486-2818
Financials
Estimated monthly payment
Similar homes nearby
Recently added communities in this area
Nearby communities in Apollo Beach
New homes in nearby cities
More New Homes in Apollo Beach, FL
- Home
- New homes
- Florida
- Tampa Bay Area
- Hillsborough County
- Apollo Beach
- Waterset
- 5357 Wolf Creek Dr, Apollo Beach, FL 33572

























