



Book your tour. Save an average of $18,473. We'll handle the rest.
We collect exclusive builder offers, book your tours, and support you from start to housewarming.
- Confirmed tours
- Get matched & compare top deals
- Expert help, no pressure
- No added fees
Estimated value based on Jome data, T&C apply


- 4 bd
- 2.5 ba
- 1,884 sqft
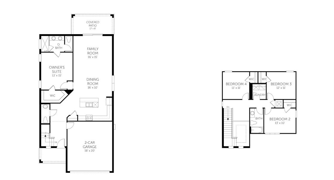
Elm - 19235 plan in Hills of Minneola by Dream Finders Homes
Visit the community to experience this floor plan
Why tour with Jome?
- No pressure toursTour at your own pace with no sales pressure
- Expert guidanceGet insights from our home buying experts
- Exclusive accessSee homes and deals not available elsewhere
Jome is featured in
Plan description
May also be listed on the Dream Finders Homes website
Information last verified by Jome: Yesterday at 5:25 AM (May 24, 2026)
Plan details
- Name:
- Elm - 19235
- Property type:
- Floor plan
- Community:
- Hills of Minneola
- Builder:
- Dream Finders Homes
- Collection:
- HIlls of Minneola 40'
- Lot width (feet):
- 40
- Size:
- 1,884 sqft
- Stories:
- 2
- Beds:
- 4
- Baths:
- 2
- Half baths:
- 1
- Garage spaces:
- 2
Plan features & finishes
- Garage/Parking:
- GarageAttached Garage
- Interior Features:
- Walk-In ClosetFoyerPantry
- Kitchen:
- Kitchen Island
- Laundry facilities:
- Laundry Facilities On Upper LevelUtility/Laundry Room
- Property amenities:
- Patio
- Rooms:
- Primary Bedroom On MainKitchenPowder RoomDining RoomFamily RoomOpen Concept FloorplanPrimary Bedroom Downstairs
- Upgrade Options:
- Gourmet KitchenSliding Glass DoorsExtended Patio

Get a consultation with our New Homes Expert
- See how your home builds wealth
- Plan your home-buying roadmap
- Discover hidden gems
See the full plan layout
Download the floor plan PDF with room dimensions and home design details.

Instant download, no cost

Community details
Hills of Minneola at Hills of Minneola
by Dream Finders Homes, Minneola, FL
- 20 homes
- 15 plans
- 1,654 - 4,443 sqft
View Hills of Minneola details
Want to know more about what's around here?
The Elm - 19235 floor plan is part of Hills of Minneola, a new home community by Dream Finders Homes, located in Minneola, FL. Visit the Hills of Minneola community page for full neighborhood insights, including nearby schools, shopping, walk & bike-scores, commuting, air quality & natural hazards.

Homes built from this plan
Available homes in Hills of Minneola
- Home at address 2245 Juniper Berry Dr, Minneola, FL 34756

Aspen
SavingsHIlls of Minneola 40'
$449,990
- 4 bd
- 2 ba
- 1,654 sqft
2245 Juniper Berry Dr, Minneola, FL 34756
- Home at address 2213 Juniper Berry Ave, Minneola, FL 34715

Home
Savings$494,990
- 4 bd
- 2.5 ba
- 1,884 sqft
2213 Juniper Berry Ave, Minneola, FL 34715
- Home at address 2241 Juniper Berry Dr, Minneola, FL 34715

Home
Savings$504,990
- 4 bd
- 2.5 ba
- 1,884 sqft
2241 Juniper Berry Dr, Minneola, FL 34715
- Home at address 1952 Sunshine Peak Dr, Minneola, FL 34715

Home
Savings$535,000
- 4 bd
- 2.5 ba
- 2,100 sqft
1952 Sunshine Peak Dr, Minneola, FL 34715
- Home at address 2112 Keystone Pass, Minneola, FL 34715

Home
Savings$535,000
- 4 bd
- 2.5 ba
- 2,235 sqft
2112 Keystone Pass, Minneola, FL 34715
- Home at address 1956 Sunshine Peak Dr, Minneola, FL 34715

Home
Savings$540,000
- 4 bd
- 2.5 ba
- 2,100 sqft
1956 Sunshine Peak Dr, Minneola, FL 34715
More floor plans in Hills of Minneola
- View details for Magnolia - 19235

Magnolia - 19235
SavingsHIlls of Minneola 40'
$486,990+- 4 bd
- 2.5 ba
- 2,100 sqft

Considering this plan?
Our expert will guide your tour, in-person or virtual
Need more information?
Text or call (888) 545-5198
Financials
Estimated monthly payment
Let us help you find your dream home
How many bedrooms are you looking for?
Similar homes nearby
Recently added communities in this area
Nearby communities in Minneola
New homes in nearby cities
More New Homes in Minneola, FL
- Jome
- New homes search
- Florida
- Greater Orlando Area
- Lake County
- Minneola
- Hills of Minneola
- HIlls of Minneola 40'
- 2067 Keystone Pass Blvd, Minneola, FL 34715



































