














Book your tour. Save an average of $18,473. We'll handle the rest.
- Confirmed tours
- Get matched & compare top deals
- Expert help, no pressure
- No added fees
Estimated value based on Jome data, T&C apply





























Why tour with Jome?
- No pressure toursTour at your own pace with no sales pressure
- Expert guidanceGet insights from our home buying experts
- Exclusive accessSee homes and deals not available elsewhere
Jome is featured in
- Single-Family
- Quick move-in
- $136.51/sqft
- $125/quarterly HOA
Home description
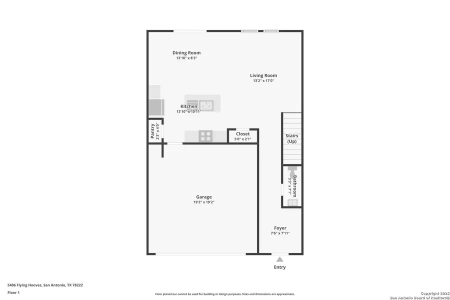
2023 Constructed Home - Move-In Ready! 3 bedroom, 2.5 bath home offers 1,824 sqft of modern living. Smartly designed with an open floor plan, the home integrates living, dining, and kitchen spaces-perfect for hosting. The kitchen impresses with elegant granite countertops, stainless steel appliances, and a functional island for prep and casual dining. The spacious upstairs loft is perfect for a second living area, home office, or playroom, with the laundry room conveniently located nearby for easy access. Property comes equipped with exterior video security system.
Real Broker, LLC, MLS 1891728
May also be listed on the Starlight Homes website
Information last verified by Jome: Today at 2:05 AM (January 19, 2026)
Book your tour. Save an average of $18,473. We'll handle the rest.
We collect exclusive builder offers, book your tours, and support you from start to housewarming.
- Confirmed tours
- Get matched & compare top deals
- Expert help, no pressure
- No added fees
Estimated value based on Jome data, T&C apply
Home details
- Property status:
- Move-in ready
- Lot size (acres):
- 0.10
- Size:
- 1,824 sqft
- Stories:
- 2
- Beds:
- 3
- Baths:
- 2.5
- Garage spaces:
- 2
- Fence:
- Privacy Fence, Fenced Yard
Construction details
- Builder Name:
- Starlight Homes
- Roof:
- Composition Roofing
Home features & finishes
- Appliances:
- Sprinkler System
- Cooling:
- Central Air
- Flooring:
- Vinyl FlooringCarpet Flooring
- Foundation Details:
- Slab
- Garage/Parking:
- GarageAttached Garage
- Home amenities:
- Green Construction
- Interior Features:
- Ceiling-HighBlindsLoft
- Property amenities:
- SodPatio
Room details
Master Bedroom
Kitchen
Dining Room

Get a consultation with our New Homes Expert
- See how your home builds wealth
- Plan your home-buying roadmap
- Discover hidden gems
Utility information
- Heating:
- Electric Heating, Central Heating, Central Heat
- Utilities:
- City Water System

Community details
Sutton Farms
by Starlight Homes, San Antonio, TX
- 8 homes
- 14 plans
- 968 - 2,609 sqft
View Sutton Farms details
More homes in Sutton Farms
- Home at address 4615 Flying Hooves, San Antonio, TX 78222

Selene
$209,990
- 3 bd
- 2.5 ba
- 1,287 sqft
4615 Flying Hooves, San Antonio, TX 78222
- Home at address 4623 Flying Hooves, San Antonio, TX 78222

Mare
$227,990
- 3 bd
- 2.5 ba
- 1,530 sqft
4623 Flying Hooves, San Antonio, TX 78222
- Home at address 4619 Flying Hooves, San Antonio, TX 78222

Highland
$242,990
- 4 bd
- 3 ba
- 1,799 sqft
4619 Flying Hooves, San Antonio, TX 78222
- Home at address 3102 Dreamweaver, San Antonio, TX 78222

Compass
$246,990
- 3 bd
- 2.5 ba
- 1,485 sqft
3102 Dreamweaver, San Antonio, TX 78222
- Home at address 5203 Thistle Pl, San Antonio, TX 78222

Barnard
$257,990
- 3 bd
- 2.5 ba
- 1,804 sqft
5203 Thistle Pl, San Antonio, TX 78222
- Home at address 3219 Cattail Holw, San Antonio, TX 78222

Voyager
$267,990
- 3 bd
- 2.5 ba
- 1,826 sqft
3219 Cattail Holw, San Antonio, TX 78222
Floor plans in Sutton Farms
About the builder - Starlight Homes
Neighborhood
Home address
- City:
- San Antonio
- County:
- Bexar
- Zip Code:
- 78222
Schools in East Central Independent School District
GreatSchools’ Summary Rating calculation is based on 4 of the school’s themed ratings, including test scores, student/academic progress, college readiness, and equity. This information should only be used as a reference. Jome is not affiliated with GreatSchools and does not endorse or guarantee this information. Please reach out to schools directly to verify all information and enrollment eligibility. Data provided by GreatSchools.org © 2025
Places of interest
Getting around
2 nearby routes: 2 bus, 0 rail, 0 otherAir quality
Noise level
A Soundscore™ rating is a number between 50 (very loud) and 100 (very quiet) that tells you how loud a location is due to environmental noise.

Considering this home?
Our expert will guide your tour, in-person or virtual
Need more information?
Text or call (888) 486-2818
Financials
Estimated monthly payment
Let us help you find your dream home
How many bedrooms are you looking for?
Similar homes nearby
Recently added communities in this area
Nearby communities in San Antonio
New homes in nearby cities
More New Homes in San Antonio, TX
Real Broker, LLC, MLS 1891728
IDX information is provided exclusively for personal, non-commercial use, and may not be used for any purpose other than to identify prospective properties consumers may be interested in purchasing. Information is deemed reliable but not guaranteed.
Read moreLast checked Jan 19, 7:00 am
- Jome
- New homes search
- Texas
- Greater San Antonio
- Bexar County
- San Antonio
- Sutton Farms
- 5406 Flying Hooves, San Antonio, TX 78222





































