








Book your tour. Save an average of $18,473. We'll handle the rest.
We collect exclusive builder offers, book your tours, and support you from start to housewarming.
- Confirmed tours
- Get matched & compare top deals
- Expert help, no pressure
- No added fees
Estimated value based on Jome data, T&C apply





























Why tour with Jome?
- No pressure toursTour at your own pace with no sales pressure
- Expert guidanceGet insights from our home buying experts
- Exclusive accessSee homes and deals not available elsewhere
Jome is featured in
- Single-Family
- Quick move-in
- $257.52/sqft
- $45/quarterly HOA
Home description
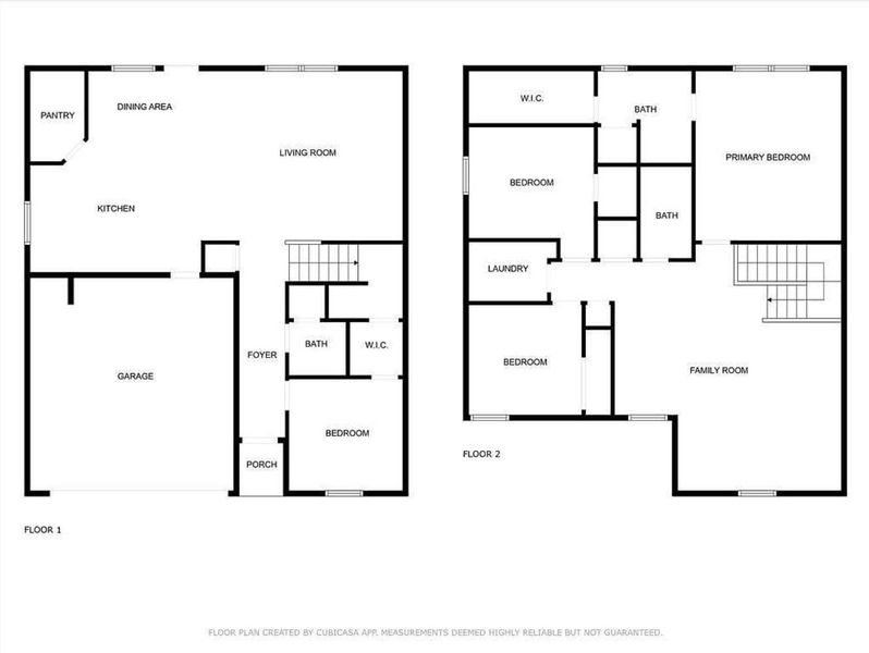
Located in the vibrant community of East Parke, 5513 Durango Pass is a modern, thoughtfully designed home built by Pulte Homes, offering a blend of style, comfort, and functionality. This four-bedroom, three-bathroom residence provides 2,081 sq ft of living space on a 0.13 acre lot, creating plentiful room inside and outside. Upon entering, you are welcomed by a bright, open layout which flows seamlessly from the entryway into the living and dining areas. The chef-inspired kitchen features quartz countertops, a large island, stainless steel appliances, a gas range, and abundant storage, making it a central gathering space for meals and conversation. A main-level bedroom with a full bath including a standing shower provides flexibility for guests, a home office, or multigenerational living. Upstairs, you are met by a spacious, versatile second living room with a tray ceiling, offering room for a media area, play area, or lounge. The primary suite serves as a private retreat with a tray ceiling, large walk-in closet, and dual-vanity ensuite bathroom, while two additional bedrooms, a second full bath, and a conveniently located laundry room complete the upper floor. The thoughtful details throughout the home elevate its design and function. The covered patio and bountiful backyard provide a private retreat, perfect for relaxing evenings, weekend gatherings, or gardening. Durable brick and HardiePlank siding, along with a two-car, front-facing garage, ensuring curb appeal and practicality. East Parke offers the best of Austin living with quick access to Highway 183, providing easy commutes to Downtown Austin, The Domain, UT, Mueller, and top-rated schools, including LASA and Kealing. The neighborhood is welcoming, with green spaces and modern suburban charm that complement the home’s contemporary design. This move-in ready home combines elegance, flexible living, and a prime location, delivering excellent opportunities for families in East Austin.
All City Real Estate Ltd. Co, MLS 6455545
May also be listed on the Pulte Homes website
Information last verified by Jome: Yesterday at 10:32 AM (March 18, 2026)
Home highlights
UT Austin pulses with music, research, and burnt orange spirit at the heart of the city.
Book your tour. Save an average of $18,473. We'll handle the rest.
We collect exclusive builder offers, book your tours, and support you from start to housewarming.
- Confirmed tours
- Get matched & compare top deals
- Expert help, no pressure
- No added fees
Estimated value based on Jome data, T&C apply
Home details
- Property status:
- Move-in ready
- Lot size (acres):
- 0.13
- Size:
- 2,081 sqft
- Stories:
- 2
- Beds:
- 4
- Baths:
- 3
- Garage spaces:
- 2
- Fence:
- Wood Fence, Privacy Fence, Partial Fence, Wrought Iron Fence
- Facing direction:
- Northeast
Construction details
- Builder Name:
- Pulte Homes
- Roof:
- Roof Gutter, Composition Roofing, Shingle Roofing
Home features & finishes
- Appliances:
- Exhaust Fan
- Construction Materials:
- Brick
- Cooling:
- Central Air
- Flooring:
- Vinyl FlooringCarpet FlooringTile Flooring
- Foundation Details:
- Slab
- Garage/Parking:
- Car CarportDoor OpenerGarageFront Entry Garage/ParkingAttached Garage
- Interior Features:
- Walk-In ClosetCrown MoldingPantryBlindsStorageTray CeilingDouble Vanity
- Kitchen:
- DishwasherMicrowave OvenOvenDisposalStainless Steel AppliancesGas CooktopBuilt-In OvenQuartz countertopKitchen IslandCooktopGas OvenKitchen Range
- Laundry facilities:
- DryerWasher
- Lighting:
- Exterior LightingLighting
- Property amenities:
- BackyardPatioFireplaceYardPorch
- Rooms:
- KitchenLiving RoomOpen Concept Floorplan
- Security system:
- Fire Alarm SystemSecurity SystemSmoke Detector

Get a consultation with our New Homes Expert
- See how your home builds wealth
- Plan your home-buying roadmap
- Discover hidden gems
Utility information
- Heating:
- Water Heater, Central Heating, Gas Heating
- Utilities:
- Electricity Available, Electricity on Property, Natural Gas Available, Underground Utilities, Internet Cable, Phone Available, Cable Available, Sewer Available, Water Available, High Speed Internet Access

Community details
East Parke
by Pulte Homes, Austin, TX
- 1 home
- 2,081 - 2,081 sqft
View East Parke details
Community amenities
- City View
- Cluster Mailbox
- Sidewalks Available
- Community Patio
About the builder - Pulte Homes

- 275communities on Jome
- 1,554homes on Jome
Neighborhood
Home address
Schools in Austin Independent School District
GreatSchools’ Summary Rating calculation is based on 4 of the school’s themed ratings, including test scores, student/academic progress, college readiness, and equity. This information should only be used as a reference. Jome is not affiliated with GreatSchools and does not endorse or guarantee this information. Please reach out to schools directly to verify all information and enrollment eligibility. Data provided by GreatSchools.org © 2025
Places of interest
Getting around
4 nearby routes: 4 bus, 0 rail, 0 otherAir quality
Noise level
A Soundscore™ rating is a number between 50 (very loud) and 100 (very quiet) that tells you how loud a location is due to environmental noise.

Considering this home?
Our expert will guide your tour, in-person or virtual
Need more information?
Text or call (888) 545-5198
Financials
Estimated monthly payment
Let us help you find your dream home
How many bedrooms are you looking for?
Similar homes nearby
Recently added communities in this area
Nearby communities in Austin
New homes in nearby cities
More New Homes in Austin, TX
All City Real Estate Ltd. Co, MLS 6455545
Based on information from the Austin Board of REALTORS® (alternatively, from ACTRIS) for the period through 08/13/2024. Neither the Board nor ACTRIS guarantees or is in any way responsible for its accuracy. All data is provided “AS IS” and with all faults. Data maintained by the Board or ACTRIS may not reflect all real estate activity in the market. Information being provided is for consumers’ personal, non-commercial use and may not be used for any purpose other than to identify prospective properties consumers may be interested in purchasing. The Digital Millennium Copyright Act of 1998, 17 U.S.C. § 512 (the “DMCA”) provides recourse for copyright owners who believe that material appearing on the Internet infringes their rights under U.S. copyright law. If you believe in good faith that any content or material made available in connection with our website or services infringes your copyright, you (or your agent) may send us a notice requesting that the content or material be removed, or access to it blocked. Notices must be sent in writing by email to DMCAnotice@MLSGrid.com. The DMCA requires that your notice of alleged copyright infringement include the following information: (1) description of the copyrighted work that is the subject of claimed infringement; (2) description of the alleged infringing content and information sufficient to permit us to locate the content; (3) contact information for you, including your address, telephone number and email address; (4) a statement by you that you have a good faith belief that the content in the manner complained of is not authorized by the copyright owner, or its agent, or by the operation of any law; (5) a statement by you, signed under penalty of perjury, that the information in the notification is accurate and that you have the authority to enforce the copyrights that are claimed to be infringed; and (6) a physical or electronic signature of the copyright owner or a person authorized to act on the copyright owner’s behalf. Failure to include all of the above information may result in the delay of the processing of your complaint.
Read moreLast checked Mar 19, 12:40 am
- Jome
- New homes search
- Texas
- Greater Austin Area
- Travis County
- Austin
- East Parke
- 5513 Durango Pass, Austin, TX 78724



























