



Book your tour. Save an average of $18,473. We'll handle the rest.
We collect exclusive builder offers, book your tours, and support you from start to housewarming.
- Confirmed tours
- Get matched & compare top deals
- Expert help, no pressure
- No added fees
Estimated value based on Jome data, T&C apply

Why tour with Jome?
- No pressure toursTour at your own pace with no sales pressure
- Expert guidanceGet insights from our home buying experts
- Exclusive accessSee homes and deals not available elsewhere
Jome is featured in
- Single-Family
- Quick move-in
- $72.02/sqft
- $54/monthly HOA
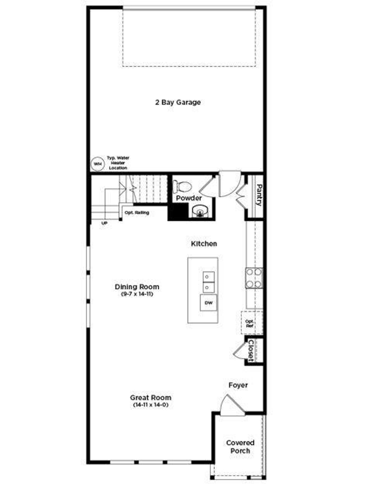
Home description
The Only Premier Builder offering the most included features within 5 miles of Samsung. This thoughtfully designed home showcases numerous upgrades throughout, including enhanced flooring with upgraded LVP and plush carpet, stylish upgraded tile, and elevated hardware finishes that add a touch of sophistication to every space.
Enjoy the convenience of a pre-plumbed water softener loop and the rare advantage of being the only new build in Taylor offering natural gas—great for cooking enthusiasts and energy efficiency. With quality craftsmanship and high-end features included, this home stands out as a must-see opportunity in a rapidly growing area.
Brightland Homes Brokerage, MLS 5507879
May also be listed on the DRB Homes website
Information last verified by Jome: Today at 6:16 AM (May 28, 2026)
Book your tour. Save an average of $18,473. We'll handle the rest.
We collect exclusive builder offers, book your tours, and support you from start to housewarming.
- Confirmed tours
- Get matched & compare top deals
- Expert help, no pressure
- No added fees
Estimated value based on Jome data, T&C apply
Home details
- Property status:
- Move-in ready
- Lot size (acres):
- 0.09
- Size:
- 3,749 sqft
- Stories:
- 2
- Beds:
- 3
- Baths:
- 2
- Half baths:
- 1
- Garage spaces:
- 2
- Fence:
- Privacy Fence
- Facing direction:
- West
Construction details
- Builder Name:
- DRB Homes
- Year Built:
- 2026
- Roof:
- Roof Gutter, Shingle Roofing
Home features & finishes
- Cooling:
- Central Air
- Foundation Details:
- Slab
- Garage/Parking:
- Door OpenerGarage
- Home amenities:
- ENERGY STAR Certified
- Interior Features:
- Pantry
- Kitchen:
- DishwasherMicrowave OvenDisposalSelf Cleaning OvenGas Oven
- Property amenities:
- Yard
- Rooms:
- Primary Bedroom On MainOpen Concept FloorplanPrimary Bedroom Downstairs

Get a consultation with our New Homes Expert
- See how your home builds wealth
- Plan your home-buying roadmap
- Discover hidden gems
Utility information
- Heating:
- Gas Heating
- Sewer:
- Public Sewer
- Utilities:
- Electricity Available, Natural Gas Available, Underground Utilities, Internet Cable, Cable Available, Sewer Available, Water Available
- Water source:
- Public

Community details
Spring Creek
by DRB Homes, Taylor, TX
- 12 homes
- 11 plans
- 1,640 - 3,749 sqft
View Spring Creek details
More homes in Spring Creek
- Home at address 136 Greinert Dr, Taylor, TX 76574

Barton
$249,990
- 3 bd
- 2.5 ba
- 1,640 sqft
136 Greinert Dr, Taylor, TX 76574
- Home at address 136 Hartson Dr, Taylor, TX 76574

Home
$264,990
- 3 bd
- 2.5 ba
- 1,640 sqft
136 Hartson Dr, Taylor, TX 76574
- Home at address 112 Harston Dr, Taylor, TX 76574

Guadalupe
$269,990
- 3 bd
- 2.5 ba
- 1,880 sqft
112 Harston Dr, Taylor, TX 76574
- Home at address 140 Greinert Dr, Taylor, TX 76574

Home
$269,990
- 3 bd
- 2.5 ba
- 1,780 sqft
140 Greinert Dr, Taylor, TX 76574
- Home at address 124 Hartson Dr, Taylor, TX 76574

Guadalupe
$284,990
- 3 bd
- 2.5 ba
- 1,880 sqft
124 Hartson Dr, Taylor, TX 76574
- Home at address 219 Tribute Blvd, Taylor, TX 76574

White Rock
$314,990
- 4 bd
- 2.5 ba
- 2,220 sqft
219 Tribute Blvd, Taylor, TX 76574
Floor plans in Spring Creek
About the builder - DRB Homes
Neighborhood
Home address
- City:
- Taylor
- County:
- Williamson
- Zip Code:
- 76574
Schools in Taylor Independent School District
GreatSchools’ Summary Rating calculation is based on 4 of the school’s themed ratings, including test scores, student/academic progress, college readiness, and equity. This information should only be used as a reference. Jome is not affiliated with GreatSchools and does not endorse or guarantee this information. Please reach out to schools directly to verify all information and enrollment eligibility. Data provided by GreatSchools.org © 2025
Places of interest
Getting around
Air quality

Considering this home?
Our expert will guide your tour, in-person or virtual
Need more information?
Text or call (888) 545-5198
Financials
Estimated monthly payment
Let us help you find your dream home
How many bedrooms are you looking for?
Similar homes nearby
Recently added communities in this area
Nearby communities in Taylor
New homes in nearby cities
More New Homes in Taylor, TX
Brightland Homes Brokerage, MLS 5507879
Based on information from the Austin Board of REALTORS® (alternatively, from ACTRIS) for the period through 08/13/2024. Neither the Board nor ACTRIS guarantees or is in any way responsible for its accuracy. All data is provided “AS IS” and with all faults. Data maintained by the Board or ACTRIS may not reflect all real estate activity in the market. Information being provided is for consumers’ personal, non-commercial use and may not be used for any purpose other than to identify prospective properties consumers may be interested in purchasing. The Digital Millennium Copyright Act of 1998, 17 U.S.C. § 512 (the “DMCA”) provides recourse for copyright owners who believe that material appearing on the Internet infringes their rights under U.S. copyright law. If you believe in good faith that any content or material made available in connection with our website or services infringes your copyright, you (or your agent) may send us a notice requesting that the content or material be removed, or access to it blocked. Notices must be sent in writing by email to DMCAnotice@MLSGrid.com. The DMCA requires that your notice of alleged copyright infringement include the following information: (1) description of the copyrighted work that is the subject of claimed infringement; (2) description of the alleged infringing content and information sufficient to permit us to locate the content; (3) contact information for you, including your address, telephone number and email address; (4) a statement by you that you have a good faith belief that the content in the manner complained of is not authorized by the copyright owner, or its agent, or by the operation of any law; (5) a statement by you, signed under penalty of perjury, that the information in the notification is accurate and that you have the authority to enforce the copyrights that are claimed to be infringed; and (6) a physical or electronic signature of the copyright owner or a person authorized to act on the copyright owner’s behalf. Failure to include all of the above information may result in the delay of the processing of your complaint.
Read moreLast checked May 28, 6:15 am
- Jome
- New homes search
- Texas
- Greater Austin Area
- Williamson County
- Taylor
- Spring Creek
- 112 Hartson Dr, Taylor, TX 76574






























