






Book your tour. Save an average of $18,473. We'll handle the rest.
We collect exclusive builder offers, book your tours, and support you from start to housewarming.
- Confirmed tours
- Get matched & compare top deals
- Expert help, no pressure
- No added fees
Estimated value based on Jome data, T&C apply



Why tour with Jome?
- No pressure toursTour at your own pace with no sales pressure
- Expert guidanceGet insights from our home buying experts
- Exclusive accessSee homes and deals not available elsewhere
Jome is featured in
- Single-Family
- Quick move-in
- $179.58/sqft
- $1,400/annual HOA
Home description
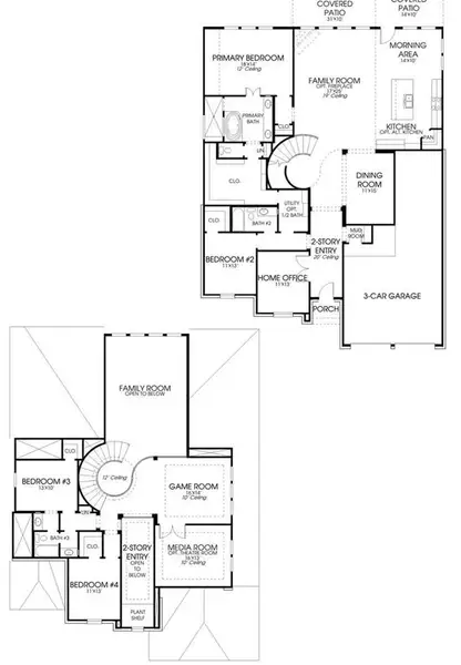
READY FOR MOVE-IN! Home office with French doors set at two-story entry. Formal dining room opens to curved staircase. Kitchen and morning area open to two-story family room. Kitchen features generous island with built-in seating space and 5-burner gas cooktop. Family room features a wood mantel fireplace and wall of windows. Primary bedroom features 12-foot ceiling. Primary bath includes dual vanity, freestanding tub, separate glass-enclosed shower and oversized walk-in closet with access to utility room. A second bedroom is downstairs. A game room, media room and secondary bedrooms are upstairs. Extended covered backyard patio and 7-zone sprinkler system. Mud room off three-car garage.
Perry Homes Realty, LLC, MLS 63721507
May also be listed on the Perry Homes website
Information last verified by Jome: Today at 2:38 AM (May 16, 2026)
Book your tour. Save an average of $18,473. We'll handle the rest.
We collect exclusive builder offers, book your tours, and support you from start to housewarming.
- Confirmed tours
- Get matched & compare top deals
- Expert help, no pressure
- No added fees
Estimated value based on Jome data, T&C apply
Home details
- Property status:
- Move-in ready
- Collection:
- Austin Point 60'
- Lot size (acres):
- 0.17
- Size:
- 3,619 sqft
- Stories:
- 2
- Beds:
- 5
- Baths:
- 4
- Half baths:
- 1
- Garage spaces:
- 3
- Facing direction:
- East
Construction details
- Builder Name:
- Perry Homes
- Completion Date:
- July, 2026
- Year Built:
- 2025
- Roof:
- Composition Roofing
Home features & finishes
- Appliances:
- Sprinkler System
- Construction Materials:
- BrickStone
- Cooling:
- Ceiling Fan(s)
- Flooring:
- Carpet FlooringTile Flooring
- Foundation Details:
- Slab
- Garage/Parking:
- GarageAttached GarageTandem Parking
- Home amenities:
- ENERGY STAR CertifiedGreen Construction
- Interior Features:
- Wired For SecurityWalk-In ClosetFoyerPantryStorage
- Kitchen:
- DishwasherMicrowave OvenOvenDisposalGas CooktopKitchen Island
- Laundry facilities:
- DryerUtility/Laundry Room
- Property amenities:
- BackyardPatioFireplacePorch
- Rooms:
- KitchenPowder RoomGame RoomMedia RoomMudroomDining RoomFamily RoomPrimary Bedroom Downstairs

Get a consultation with our New Homes Expert
- See how your home builds wealth
- Plan your home-buying roadmap
- Discover hidden gems
Utility information
- Heating:
- Gas Heating
- Sewer:
- Public Sewer
- Water source:
- Public

Community details
Austin Point at Austin Point
by Perry Homes, Richmond, TX
- 16 homes
- 35 plans
- 1,500 - 4,016 sqft
View Austin Point details
Community amenities
- Office/Study
More homes in Austin Point
- Home at address 10706 Ursa St, Richmond, TX 77469

Home
Austin Point 40'
$497,000
- 5 bd
- 4 ba
- 2,585 sqft
10706 Ursa St, Richmond, TX 77469
- Home at address 4826 Ara Dr, Richmond, TX 77469

3394W
Austin Point 60'
$624,900
- 5 bd
- 4.5 ba
- 3,394 sqft
4826 Ara Dr, Richmond, TX 77469
- Home at address 4906 Ara Dr, Richmond, TX 77469

3593W
Austin Point 60'
$699,900
- 5 bd
- 4.5 ba
- 3,794 sqft
4906 Ara Dr, Richmond, TX 77469
Floor plans in Austin Point
About the builder - Perry Homes

- 389communities on Jome
- 1,642homes on Jome
Neighborhood
Home address
Schools in Lamar Consolidated Independent School District
- Grades M-MPublicsteenbergen middle3.5 mi4113 fm 2977 rdna
- Grades PK-05Publicadriane mathews gray elementary4.1 mi5055 sunrise meadow lnna
GreatSchools’ Summary Rating calculation is based on 4 of the school’s themed ratings, including test scores, student/academic progress, college readiness, and equity. This information should only be used as a reference. Jome is not affiliated with GreatSchools and does not endorse or guarantee this information. Please reach out to schools directly to verify all information and enrollment eligibility. Data provided by GreatSchools.org © 2025
Places of interest
Getting around
Air quality

Considering this home?
Our expert will guide your tour, in-person or virtual
Need more information?
Text or call (888) 545-5198
Financials
Estimated monthly payment
Let us help you find your dream home
How many bedrooms are you looking for?
Similar homes nearby
Recently added communities in this area
Nearby communities in Richmond
New homes in nearby cities
More New Homes in Richmond, TX
Perry Homes Realty, LLC, MLS 63721507
Copyright © 2025, Houston Realtors Information Service, Inc. The information provided is exclusively for consumers’ personal, non-commercial use, and may not be used for any purpose other than to identify prospective properties consumers may be interested in purchasing. Information is deemed reliable but not guaranteed. All information provided should be independently verified.
Read moreLast checked May 16, 8:50 pm
- Jome
- New homes search
- Texas
- Greater Houston Area
- Fort Bend County
- Richmond
- Austin Point
- Austin Point 60'
- 10914 Pioneer Pt, Richmond, TX 77469





























