








Book your tour. Save an average of $18,473. We'll handle the rest.
We collect exclusive builder offers, book your tours, and support you from start to housewarming.
- Confirmed tours
- Get matched & compare top deals
- Expert help, no pressure
- No added fees
Estimated value based on Jome data, T&C apply







































Why tour with Jome?
- No pressure toursTour at your own pace with no sales pressure
- Expert guidanceGet insights from our home buying experts
- Exclusive accessSee homes and deals not available elsewhere
Jome is featured in
- Single-Family
- Quick move-in
- $146.69/sqft
- $1,350/annual HOA
Home description
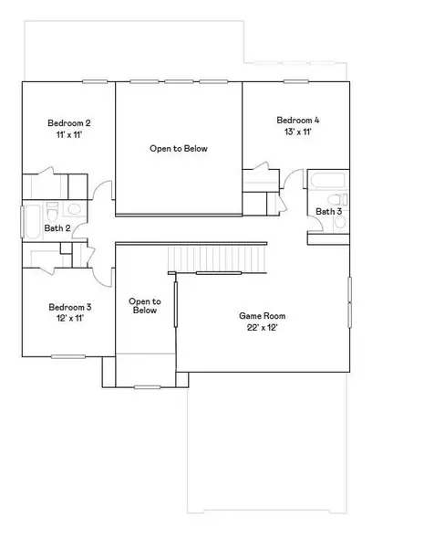
Lennar Fairway Collection "Wakefield" Plan with Elevation "C"! The first level of this two-story home is host to a generous open floorplan shared between the family room, kitchen and dining area, with access to a covered patio. A versatile study is situated at the front of the home off the foyer. The owner’s suite can be found at the back of the home, which is made up of a restful bedroom, en-suite bathroom and generous walk-in closet. Three secondary bedrooms surround a game room on the home’s second floor.
Prices, dimensions and features may vary and are subject to change. Photos are for illustrative purposes only.
Lennar Homes Village Builders, LLC, MLS 19651451
May also be listed on the Lennar website
Information last verified by Jome: Today at 2:51 PM (March 27, 2026)
Book your tour. Save an average of $18,473. We'll handle the rest.
We collect exclusive builder offers, book your tours, and support you from start to housewarming.
- Confirmed tours
- Get matched & compare top deals
- Expert help, no pressure
- No added fees
Estimated value based on Jome data, T&C apply
Home details
- Property status:
- Move-in ready
- Size:
- 2,795 sqft
- Stories:
- 2
- Beds:
- 4
- Baths:
- 3
- Half baths:
- 1
- Garage spaces:
- 2
Construction details
- Builder Name:
- Lennar
- Year Built:
- 2025
- Roof:
- Composition Roofing
Home features & finishes
- Construction Materials:
- CementBrickStone
- Foundation Details:
- Slab
- Garage/Parking:
- GarageAttached Garage

Get a consultation with our New Homes Expert
- See how your home builds wealth
- Plan your home-buying roadmap
- Discover hidden gems
Utility information
- Heating:
- Gas Heating

Community details
The Preserve at Rosenberg
by Lennar, Rosenberg, TX
- 18 homes
- 28 plans
- 1,830 - 3,671 sqft
View The Preserve at Rosenberg details
More homes in The Preserve at Rosenberg
- Home at address 2612 Pine Bluff Dr, Rosenberg, TX 77469

Somerset
SavingsThe Preserve at Rosenberg: Fairway
$335,000
- 4 bd
- 3.5 ba
- 2,666 sqft
2612 Pine Bluff Dr, Rosenberg, TX 77469
- Home at address 2723 Grove Crest Dr, Rosenberg, TX 77469

Copperfield
SavingsThe Preserve at Rosenberg: Richmond
$336,640
- 4 bd
- 2 ba
- 1,941 sqft
2723 Grove Crest Dr, Rosenberg, TX 77469
- Home at address 2623 Pine Bluff Dr, Rosenberg, TX 77469

Cantaron II
The Preserve at Rosenberg: Fairway
$355,990
- 4 bd
- 3.5 ba
- 2,548 sqft
2623 Pine Bluff Dr, Rosenberg, TX 77469
- Home at address 4315 Eagle Pass Dr, Rosenberg, TX 77469

Lakewood
SavingsThe Preserve at Rosenberg: Richmond
$369,790
- 4 bd
- 3 ba
- 2,393 sqft
4315 Eagle Pass Dr, Rosenberg, TX 77469
- Home at address 4403 Eagle Pass Dr, Rosenberg, TX 77469

Memorial
SavingsThe Preserve at Rosenberg: Richmond
$369,940
- 5 bd
- 3.5 ba
- 2,726 sqft
4403 Eagle Pass Dr, Rosenberg, TX 77469
- Home at address 2611 Pine Bluff Dr, Rosenberg, TX 77469

Cantaron II
SavingsThe Preserve at Rosenberg: Fairway
$369,990
- 4 bd
- 3.5 ba
- 2,548 sqft
2611 Pine Bluff Dr, Rosenberg, TX 77469
Floor plans in The Preserve at Rosenberg
About the builder - Lennar

- 1,806communities on Jome
- 6,688homes on Jome
Neighborhood
Home address
Schools in Lamar Consolidated Independent School District
- Grades PK-05Publicadriane mathews gray elementary2.0 mi5055 sunrise meadow lnna
GreatSchools’ Summary Rating calculation is based on 4 of the school’s themed ratings, including test scores, student/academic progress, college readiness, and equity. This information should only be used as a reference. Jome is not affiliated with GreatSchools and does not endorse or guarantee this information. Please reach out to schools directly to verify all information and enrollment eligibility. Data provided by GreatSchools.org © 2025
Places of interest
Getting around
Air quality
Noise level
A Soundscore™ rating is a number between 50 (very loud) and 100 (very quiet) that tells you how loud a location is due to environmental noise.

Considering this home?
Our expert will guide your tour, in-person or virtual
Need more information?
Text or call (888) 545-5198
Financials
Estimated monthly payment
Let us help you find your dream home
How many bedrooms are you looking for?
Similar homes nearby
Recently added communities in this area
Nearby communities in Rosenberg
New homes in nearby cities
More New Homes in Rosenberg, TX
Lennar Homes Village Builders, LLC, MLS 19651451
Copyright © 2025, Houston Realtors Information Service, Inc. The information provided is exclusively for consumers’ personal, non-commercial use, and may not be used for any purpose other than to identify prospective properties consumers may be interested in purchasing. Information is deemed reliable but not guaranteed. All information provided should be independently verified.
Read moreLast checked Mar 27, 2:50 pm
- Jome
- New homes search
- Texas
- Greater Houston Area
- Fort Bend County
- Rosenberg
- The Preserve at Rosenberg
- 2616 Pine Bluff Dr, Rosenberg, TX 77469























