






Book your tour. Save an average of $18,473. We'll handle the rest.
We collect exclusive builder offers, book your tours, and support you from start to housewarming.
- Confirmed tours
- Get matched & compare top deals
- Expert help, no pressure
- No added fees
Estimated value based on Jome data, T&C apply



- 4 bd
- 3.5 ba
- 2,682 sqft
1636 Cornwall Ave, Fort Worth, TX 76052
Why tour with Jome?
- No pressure toursTour at your own pace with no sales pressure
- Expert guidanceGet insights from our home buying experts
- Exclusive accessSee homes and deals not available elsewhere
Jome is featured in
- Single-Family
- Ready by July 2026
- $178.97/sqft
- $885/annual HOA
Home description
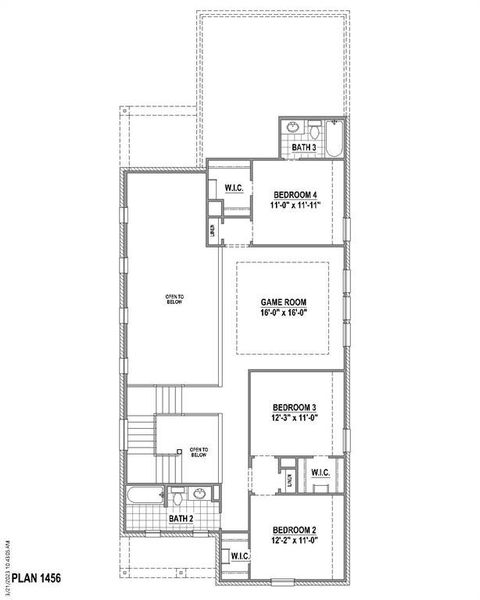
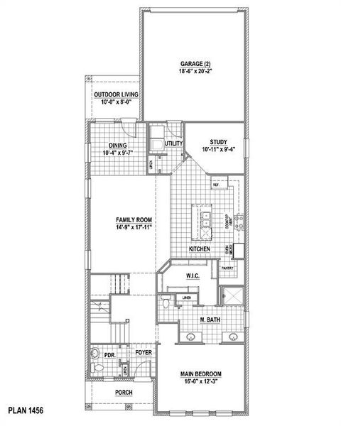
This charming Craftsman-style home, located in the Wellington subdivision, sits on a gorgeous home site! This two-story home features four spacious bedrooms and three bathrooms plus a powder room on the first floor providing convenience for guests. The home includes a large primary suite with dual vanities, luxurious shower and a generous walk-in closet. The open floor plan seamlessly connects the family room to the kitchen and dining area, creating an ideal space for entertaining. The family room also opens up to a back patio perfect for indoor-outdoor living. Additional highlights include an upgraded kitchen including premier appliances and hardwood flooring. Additionally, there is an expansive game room for family fun times and a study for remote work. Residents of the Wellington subdivision enjoy access to two pools, walking trails, parks, playgrounds and pavilions with grilling areas. The location is convenient to DFW Airport, shopping, dining and the highly rated Northwest ISD schools. American Legend personnel are available seven days a week to discuss this home with you and all the options we provide. This home truly combines beauty, comfort and convenience.
American Legend Homes, MLS 21207860
May also be listed on the American Legend Homes website
Information last verified by Jome: Today at 4:01 AM (April 29, 2026)
Home highlights
Book your tour. Save an average of $18,473. We'll handle the rest.
We collect exclusive builder offers, book your tours, and support you from start to housewarming.
- Confirmed tours
- Get matched & compare top deals
- Expert help, no pressure
- No added fees
Estimated value based on Jome data, T&C apply
Home details
- Property status:
- Under construction
- Collection:
- Wellington 40s
- Lot size (acres):
- 0.10
- Lot width (feet):
- 40
- Size:
- 2,682 sqft
- Stories:
- 2
- Beds:
- 4
- Baths:
- 3
- Half baths:
- 1
- Garage spaces:
- 2
- Fence:
- Wood Fence
Construction details
- Builder Name:
- American Legend Homes
- Completion Date:
- July, 2026
- Year Built:
- 2026
- Roof:
- Roof Gutter, Composition Roofing
Home features & finishes
- Appliances:
- Exhaust FanSprinkler System
- Construction Materials:
- Brick
- Cooling:
- Ceiling Fan(s)Central Air
- Flooring:
- Ceramic FlooringCarpet FlooringTile FlooringHardwood Flooring
- Foundation Details:
- Slab
- Garage/Parking:
- Door OpenerGarageFront Entry Garage/ParkingAttached Garage
- Home amenities:
- Green Construction
- Interior Features:
- Ceiling-VaultedWalk-In ClosetFoyerPantryFlat Screen Wiring
- Kitchen:
- DishwasherMicrowave OvenDisposalGas CooktopKitchen IslandElectric Oven
- Laundry facilities:
- Utility/Laundry Room
- Lighting:
- Decorative/Designer Lighting
- Property amenities:
- SidewalkLandscapingOutdoor LivingPatioPorch
- Rooms:
- KitchenPowder RoomGame RoomOffice/StudyDining RoomFamily RoomOpen Concept FloorplanPrimary Bedroom Downstairs
- Security system:
- Smoke DetectorCarbon Monoxide Detector

Get a consultation with our New Homes Expert
- See how your home builds wealth
- Plan your home-buying roadmap
- Discover hidden gems
Utility information
- Heating:
- Zoned Heating, Water Heater, Central Heating, Tankless water heater
- Utilities:
- Underground Utilities, HVAC, City Water System, Cable Available, High Speed Internet Access, Curbs

Community details
Wellington at Wellington
by American Legend Homes, Fort Worth, TX
- 13 homes
- 34 plans
- 1,619 - 3,713 sqft
View Wellington details
Community amenities
- Playground
- Lake Access
- Community Pool
- Park Nearby
- Greenbelt View
- Walking, Jogging, Hike Or Bike Trails
More homes in Wellington
- Home at address 1704 Truro Ln, Fort Worth, TX 76052

1454
Wellington 40s
$467,490
- 4 bd
- 3.5 ba
- 2,653 sqft
1704 Truro Ln, Fort Worth, TX 76052
- Home at address 1728 Truro Ln, Fort Worth, TX 76052

1458
Wellington 40s
$475,000
- 4 bd
- 3.5 ba
- 2,683 sqft
1728 Truro Ln, Fort Worth, TX 76052
- Home at address 1737 Cornwall Ave, Fort Worth, TX 76052

1456
Wellington 40s
$486,395
- 4 bd
- 3.5 ba
- 2,682 sqft
1737 Cornwall Ave, Fort Worth, TX 76052
- Home at address 1644 Cornwall Ave, Fort Worth, TX 76052

1455
Wellington 40s
$492,106
- 4 bd
- 2.5 ba
- 2,712 sqft
1644 Cornwall Ave, Fort Worth, TX 76052
- Home at address 11404 Jackloe St, Fort Worth, TX 76052

1688
Wellington 60s
$570,000
- 4 bd
- 3 ba
- 2,704 sqft
11404 Jackloe St, Fort Worth, TX 76052
- Home at address 11329 Bratton Blvd, Fort Worth, TX 76052

1527
Wellington 50s
$575,000
- 4 bd
- 4 ba
- 2,960 sqft
11329 Bratton Blvd, Fort Worth, TX 76052
Floor plans in Wellington
About the builder - American Legend Homes
Neighborhood
Home address
- City:
- Fort Worth
- County:
- Tarrant
- Zip Code:
- 76052
Schools in Northwest Independent School District
GreatSchools’ Summary Rating calculation is based on 4 of the school’s themed ratings, including test scores, student/academic progress, college readiness, and equity. This information should only be used as a reference. Jome is not affiliated with GreatSchools and does not endorse or guarantee this information. Please reach out to schools directly to verify all information and enrollment eligibility. Data provided by GreatSchools.org © 2025
Places of interest
Getting around
Air quality
Noise level
A Soundscore™ rating is a number between 50 (very loud) and 100 (very quiet) that tells you how loud a location is due to environmental noise.

Considering this home?
Our expert will guide your tour, in-person or virtual
Need more information?
Text or call (888) 545-5198
Financials
Estimated monthly payment
Let us help you find your dream home
How many bedrooms are you looking for?
Similar homes nearby
Recently added communities in this area
Nearby communities in Fort Worth
New homes in nearby cities
More New Homes in Fort Worth, TX
American Legend Homes, MLS 21207860
IDX information is provided exclusively for personal, non-commercial use, and may not be used for any purpose other than to identify prospective properties consumers may be interested in purchasing. You may not reproduce or redistribute this data, it is for viewing purposes only. This data is deemed reliable, but is not guaranteed accurate by the MLS or NTREIS.
Read moreLast checked Apr 29, 4:00 am
- Jome
- New homes search
- Texas
- Dallas-Fort Worth Area
- Tarrant County
- Fort Worth
- Wellington
- Wellington 40s
- 1636 Cornwall Ave, Fort Worth, TX 76052
































