




Book your tour. Save an average of $18,473. We'll handle the rest.
We collect exclusive builder offers, book your tours, and support you from start to housewarming.
- Confirmed tours
- Get matched & compare top deals
- Expert help, no pressure
- No added fees
Estimated value based on Jome data, T&C apply
- 3 bd
- 2.5 ba
- 2,532 sqft
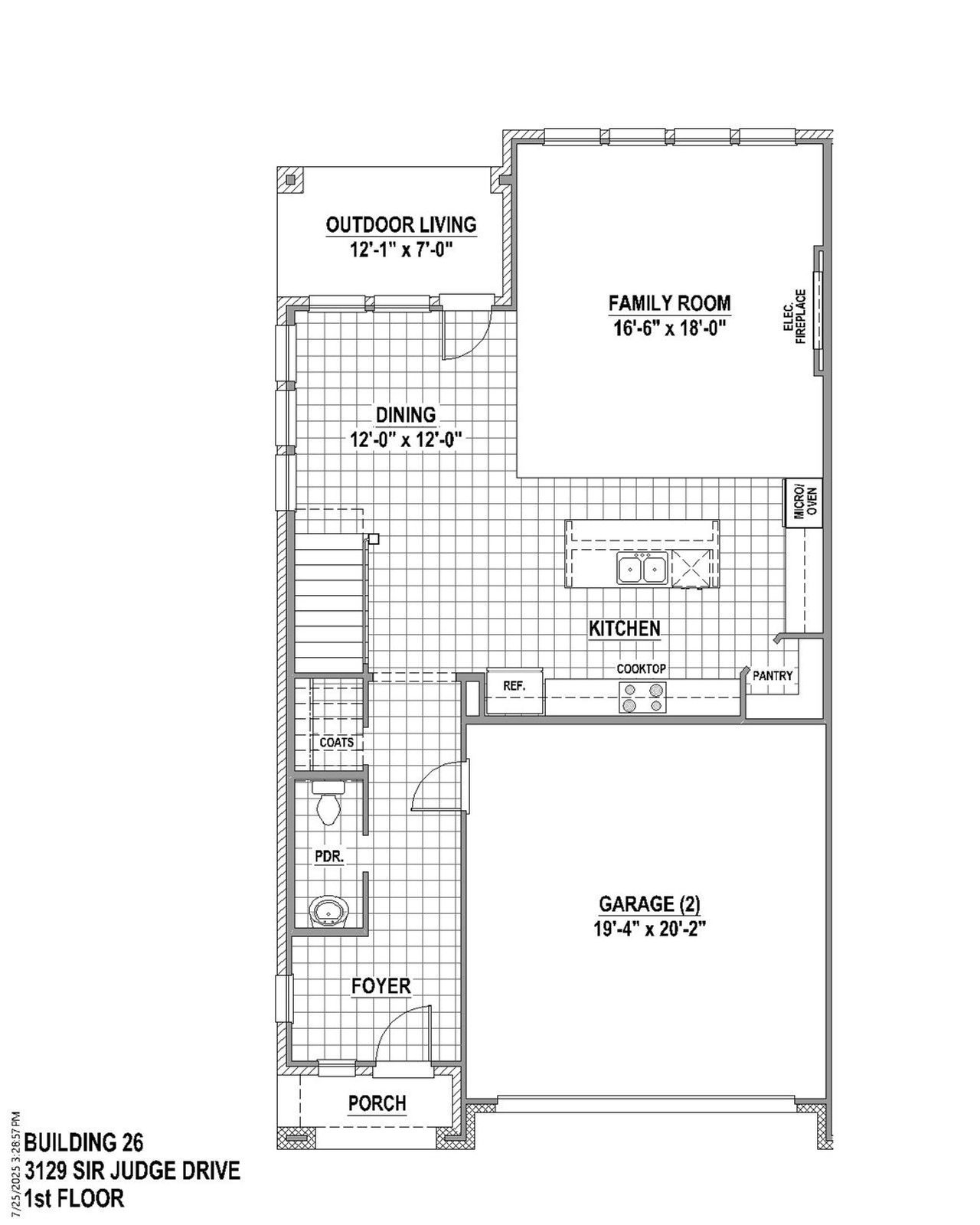
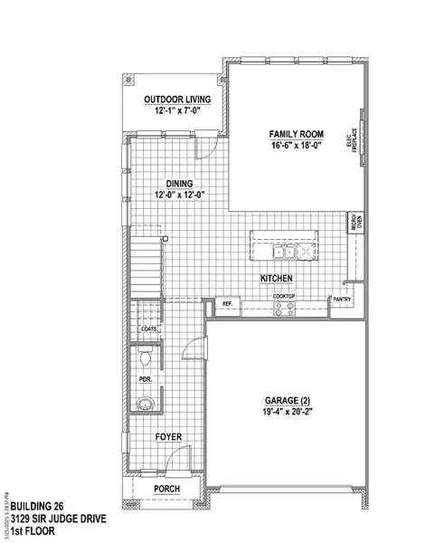
3129 Sir Judge Dr, Lewisville, TX 75056
Why tour with Jome?
- No pressure toursTour at your own pace with no sales pressure
- Expert guidanceGet insights from our home buying experts
- Exclusive accessSee homes and deals not available elsewhere
Jome is featured in
- Single-Family
- Ready by July 2026
- $266.61/sqft
- $1,360/annual HOA
Home description
This beautifully designed American Legend Homes Townhome in the Castle Hills master-planned community offers low-maintenance, luxury living with a smart and functional layout. The open concept main level features natural light from large floor-to-ceiling windows, creating a bright and airy feel the moment you walk in. A contemporary, state-of-the-art kitchen anchors the space with sleek finishes showcasing sleek quartz or stone countertops, which are also carried into the bathrooms for a cohesive upscale look. Other finishes include the rich hardwood flooring throughout the downstairs living areas adding warmth and elegance. The open concept layout seamlessly connects the living, dining and private outdoor living, making everyday living and entertaining effortless, whether you are hosting friends or enjoying a quiet evening at home. This 2-story home has 3 bedrooms upstairs, 2.5 baths, 2-car garage and a versatile loft that provides the perfect flex space for a home office, media room or additional lounge area, allowing you to live the way you want. Outside your door, Castle Hills offers resort-style amenities including parks, pools, tennis, basketball, ball fields, trails and nearby shopping and dining, giving you a vibrant, connected lifestyle in the heart of DFW metroplex.
May also be listed on the American Legend Homes website
Information last verified by Jome: Today at 11:53 AM (March 11, 2026)
Book your tour. Save an average of $18,473. We'll handle the rest.
We collect exclusive builder offers, book your tours, and support you from start to housewarming.
- Confirmed tours
- Get matched & compare top deals
- Expert help, no pressure
- No added fees
Estimated value based on Jome data, T&C apply
Home details
- Property status:
- Under construction
- Size:
- 2,532 sqft
- Stories:
- 2
- Beds:
- 3
- Baths:
- 2
- Half baths:
- 1
- Garage spaces:
- 2
Construction details
- Builder Name:
- American Legend Homes
- Completion Date:
- July, 2026
Home features & finishes
- Garage/Parking:
- Garage

Get a consultation with our New Homes Expert
- See how your home builds wealth
- Plan your home-buying roadmap
- Discover hidden gems

Community details
Castle Hills Northpointe - Townhomes at Castle Hills
by American Legend Homes, Lewisville, TX
- 20 homes
- 2,316 - 2,614 sqft
View Castle Hills Northpointe - Townhomes details
More homes in Castle Hills Northpointe - Townhomes
- Home at address 3533 Kings Ct, Lewisville, TX 75056

Building 25C Unit 3
$598,000
- 3 bd
- 2.5 ba
- 2,316 sqft
3533 Kings Ct, Lewisville, TX 75056
- Home at address 3121 Sir Judge Dr, Carrollton, TX 75010

Building 25 Unit 2
$643,000
- 3 bd
- 2.5 ba
- 2,601 sqft
3121 Sir Judge Dr, Carrollton, TX 75010
- Home at address 3113 Sir Judge Dr, Lewisville, TX 75056

Building W24 Unit 2
$645,000
- 3 bd
- 2.5 ba
- 2,614 sqft
3113 Sir Judge Dr, Lewisville, TX 75056
- Home at address 613 Damsel June St, Lewisville, TX 75056

TH Building 9 Unit 2 W
$646,000
- 3 bd
- 2.5 ba
- 2,533 sqft
613 Damsel June St, Lewisville, TX 75056
- Home at address 613 Damsel June St, Lewisville, TX 75056

Home
$646,000
- 3 bd
- 2.5 ba
- 2,533 sqft
613 Damsel June St, Lewisville, TX 75056
- Home at address 609 Damsel June St, Lewisville, TX 75056

Home
$647,585
- 3 bd
- 2.5 ba
- 2,424 sqft
609 Damsel June St, Lewisville, TX 75056
About the builder - American Legend Homes
Neighborhood
Home address
- City:
- Lewisville
- County:
- Denton
- Zip Code:
- 75056
Schools in Lewisville Independent School District
GreatSchools’ Summary Rating calculation is based on 4 of the school’s themed ratings, including test scores, student/academic progress, college readiness, and equity. This information should only be used as a reference. Jome is not affiliated with GreatSchools and does not endorse or guarantee this information. Please reach out to schools directly to verify all information and enrollment eligibility. Data provided by GreatSchools.org © 2025
Places of interest
Getting around
Air quality
Noise level
A Soundscore™ rating is a number between 50 (very loud) and 100 (very quiet) that tells you how loud a location is due to environmental noise.

Considering this home?
Our expert will guide your tour, in-person or virtual
Need more information?
Text or call (888) 488-9243
Financials
Estimated monthly payment
Let us help you find your dream home
How many bedrooms are you looking for?
Similar homes nearby
Recently added communities in this area
Nearby communities in Lewisville
New homes in nearby cities
More New Homes in Lewisville, TX
- Jome
- New homes search
- Texas
- Dallas-Fort Worth Area
- Denton County
- Lewisville
- Castle Hills Northpointe - Townhomes
- 3129 Sir Judge Dr, Lewisville, TX 75056


























