



Book your tour. Save an average of $18,473. We'll handle the rest.
We collect exclusive builder offers, book your tours, and support you from start to housewarming.
- Confirmed tours
- Get matched & compare top deals
- Expert help, no pressure
- No added fees
Estimated value based on Jome data, T&C apply
Why tour with Jome?
- No pressure toursTour at your own pace with no sales pressure
- Expert guidanceGet insights from our home buying experts
- Exclusive accessSee homes and deals not available elsewhere
Jome is featured in
- Single-Family
- Ready by September 2026
- $216.96/sqft
- $80/monthly HOA
Builder deals available
Conventional 30 Year Fixed
$172,230 est. value- Fixed rate from 4.99% with 5.07% APR, 20% down payment, and 780 credit score
Deals may change and are not guaranteed. Some deals apply to specific homes or plans. Not a financing offer. Eligibility varies by lender. Please verify details.
Home description
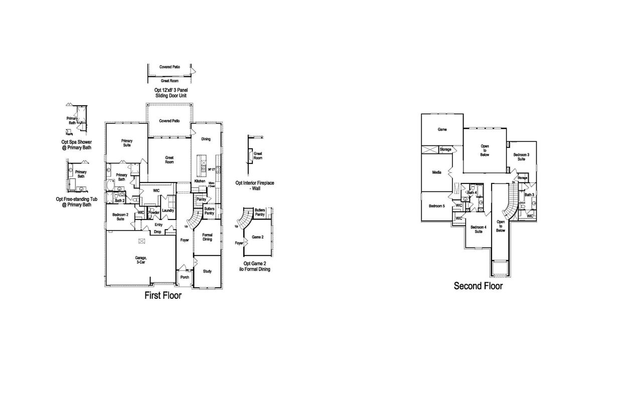
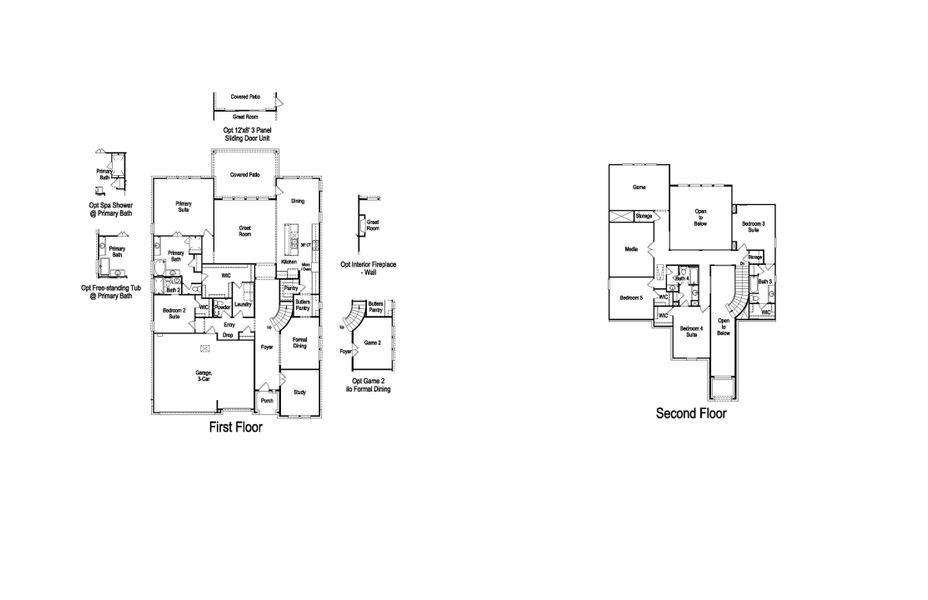
Welcome to the Travis at 5137 Colombo View in Travisso! This stunning new home opens with a grand foyer featuring a curved stairway, a dedicated study, and a formal dining room that connects to the kitchen through a butler’s pantry on one side. On the opposite side, you’ll find a secondary bedroom with its own en‑suite bath and walk‑in closet, along with the laundry room, powder room, and garage entry. At the heart of the home, the great room offers a cozy fireplace and soaring ceiling that flow into the gourmet kitchen and dining area. The main level primary suite feels luxurious with a spacious sitting room, spa‑like en‑suite bath with a slide‑in tub, spa shower, and an expansive walk‑in closet. A covered patio extends the living space outdoors. Upstairs features three additional bedrooms with walk‑in closets, including one with its own en‑suite bath, another full bathroom, a media room, and a game room. Our luxury amenities are designed to help you unwind, stay active, and connect. The 9‑acre Palazzo Clubhouse features a resort-style pool, fitness center, tennis courts, and year‑round gathering spaces. The Forum adds even more indoor and outdoor recreation, while an onsite Lifestyle Director brings the community together with events for all ages. Additional Highlights Include: Spa shower at primary bath, sliding door at great room, and standard railing at half wall.
May also be listed on the Taylor Morrison website
Information last verified by Jome: Today at 12:42 AM (April 24, 2026)
Book your tour. Save an average of $18,473. We'll handle the rest.
We collect exclusive builder offers, book your tours, and support you from start to housewarming.
- Confirmed tours
- Get matched & compare top deals
- Expert help, no pressure
- No added fees
Estimated value based on Jome data, T&C apply
Home details
- Property status:
- Under construction
- Collection:
- Travisso Siena
- Size:
- 4,139 sqft
- Stories:
- 2
- Beds:
- 5
- Baths:
- 4.5
- Garage spaces:
- 3
- Facing direction:
- Southwest
Construction details
- Builder Name:
- Taylor Morrison
- Completion Date:
- September, 2026
Home features & finishes
- Garage/Parking:
- Garage
- Rooms:
- Game RoomMedia RoomOffice/StudyGuest RoomDining Room

Get a consultation with our New Homes Expert
- See how your home builds wealth
- Plan your home-buying roadmap
- Discover hidden gems

Community details
Travisso at Travisso
by Taylor Morrison, Leander, TX
- 11 homes
- 33 plans
- 2,564 - 5,436 sqft
View Travisso details
More homes in Travisso
- Home at address 1524 Novara Trl, Leander, TX 78641

Calypso
Travisso Naples
$980,000
- 5 bd
- 4.5 ba
- 4,206 sqft
1524 Novara Trl, Leander, TX 78641
- Home at address 1644 Alasio Dr, Leander, TX 78641

Concerto
Travisso Naples
$998,000
- 5 bd
- 5.5 ba
- 4,684 sqft
1644 Alasio Dr, Leander, TX 78641
- Home at address 1640 Alasio Dr, Leander, TX 78641

Arabella
Travisso Naples
$1,036,855
- 5 bd
- 4.5 ba
- 4,300 sqft
1640 Alasio Dr, Leander, TX 78641
- Home at address 1505 Novara Trl, Leander, TX 78641

Larimar
Travisso Naples
$1,059,240
- 5 bd
- 4.5 ba
- 4,111 sqft
1505 Novara Trl, Leander, TX 78641
- Home at address 1617 Caracalla Cv, Leander, TX 78641

Arabella
Travisso Florence
$1,099,105
- 5 bd
- 4.5 ba
- 4,300 sqft
1617 Caracalla Cv, Leander, TX 78641
- Home at address 2420 Novara Trl, Leander, TX 78641

Home
$1,499,000
- 5 bd
- 5.5 ba
- 5,436 sqft
2420 Novara Trl, Leander, TX 78641
Floor plans in Travisso
About the builder - Taylor Morrison

- 315communities on Jome
- 1,348homes on Jome
Neighborhood
Home address
Schools in Leander Independent School District
- Grades PK-KGPrivateprimrose school of crystal falls3.6 mi1781 osage drna
GreatSchools’ Summary Rating calculation is based on 4 of the school’s themed ratings, including test scores, student/academic progress, college readiness, and equity. This information should only be used as a reference. Jome is not affiliated with GreatSchools and does not endorse or guarantee this information. Please reach out to schools directly to verify all information and enrollment eligibility. Data provided by GreatSchools.org © 2025
Places of interest
Getting around
Air quality

Considering this home?
Our expert will guide your tour, in-person or virtual
Need more information?
Text or call (888) 545-5198
Financials
Estimated monthly payment
Let us help you find your dream home
How many bedrooms are you looking for?
Similar homes nearby
Recently added communities in this area
Nearby communities in Leander
New homes in nearby cities
More New Homes in Leander, TX
- Jome
- New homes search
- Texas
- Greater Austin Area
- Travis County
- Leander
- Travisso
- Travisso Siena
- 5137 Colombo Vw, Leander, TX 78641
































