









Book your tour. Save an average of $18,473. We'll handle the rest.
We collect exclusive builder offers, book your tours, and support you from start to housewarming.
- Confirmed tours
- Get matched & compare top deals
- Expert help, no pressure
- No added fees
Estimated value based on Jome data, T&C apply









Why tour with Jome?
- No pressure toursTour at your own pace with no sales pressure
- Expert guidanceGet insights from our home buying experts
- Exclusive accessSee homes and deals not available elsewhere
Jome is featured in
- Single-Family
- Ready by September 2026
- $189.24/sqft
- $80/monthly HOA
Home description
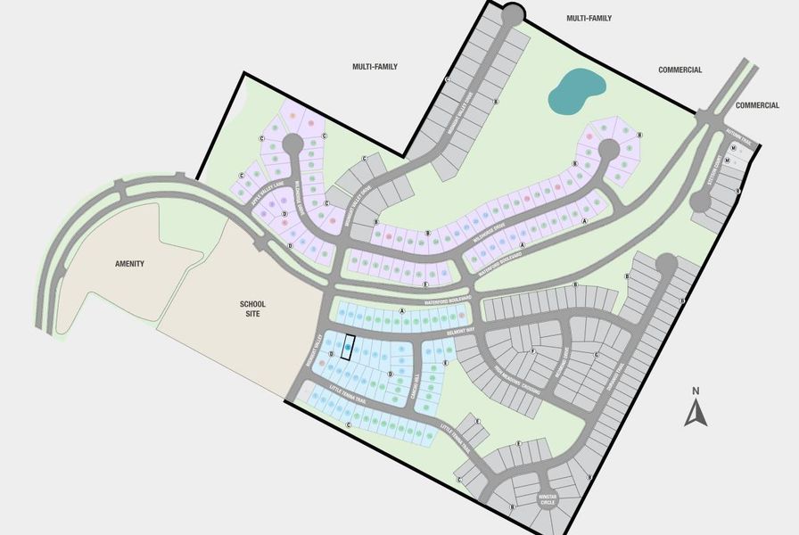
What's Special: Larger Backyard | Close to Amenity | North Facing Lot | Media Room | Covered Patio | Tub in Primary Bath | Large Kitchen Island | Two Bedrooms Down. New Construction - August Completion! Built by Taylor Morrison, America's Most Trusted Home Builder. Welcome to the Duval at 229 Belmont Way in Silverleaf! This modern classic two-story home offers four bedrooms, three bathrooms and 2,540 square feet of functional living space. Off the foyer, a comfortable bedroom and full bathroom create a welcoming place for guests. The garage entry leads to a convenient laundry room and connects easily to the heart of the home. The great room opens to the kitchen, casual dining area and a covered patio that feels perfect for everyday living and easy entertaining. The tucked away primary suite provides a peaceful retreat on the first floor. Upstairs features two secondary bedrooms, a bathroom, a tech center and a media room designed for work, play and relaxation. Ideally located between Austin and Bastrop, this Hill Country community offers natural beauty and convenience. Zoned to Cedar Creek schools, students can thrive in their passions. Enjoy a sparkling pool, scenic trails, and a playground where kids can connect and play—perfect for relaxed, everyday living. Additional Highlights Include: Media room.
Alexander Properties, MLS 2314431
May also be listed on the Taylor Morrison website
Information last verified by Jome: Today at 6:18 AM (April 21, 2026)
Home highlights
UT Austin pulses with music, research, and burnt orange spirit at the heart of the city.
Book your tour. Save an average of $18,473. We'll handle the rest.
We collect exclusive builder offers, book your tours, and support you from start to housewarming.
- Confirmed tours
- Get matched & compare top deals
- Expert help, no pressure
- No added fees
Estimated value based on Jome data, T&C apply
Home details
- Property status:
- Under construction
- Collection:
- Silverleaf 50s
- Lot size (acres):
- 0.15
- Size:
- 2,540 sqft
- Stories:
- 2
- Beds:
- 4
- Baths:
- 3
- Garage spaces:
- 2
- Fence:
- Wood Fence, Privacy Fence
- Facing direction:
- Northeast
Construction details
- Builder Name:
- Taylor Morrison
- Completion Date:
- September, 2026
- Year Built:
- 2026
- Roof:
- Roof Gutter, Shingle Roofing
Home features & finishes
- Appliances:
- Water Softener
- Cooling:
- Central Air
- Flooring:
- Vinyl FlooringCarpet FlooringTile Flooring
- Foundation Details:
- Slab
- Garage/Parking:
- Door OpenerGarage
- Interior Features:
- Ceiling-High
- Kitchen:
- OvenStainless Steel AppliancesGas CooktopBuilt-In OvenKitchen IslandCooktopElectric Oven
- Laundry facilities:
- Dryer
- Property amenities:
- Tech SpacePatioPorch
- Rooms:
- Primary Bedroom On MainGame RoomGuest RoomDining RoomOpen Concept FloorplanPrimary Bedroom Downstairs

Get a consultation with our New Homes Expert
- See how your home builds wealth
- Plan your home-buying roadmap
- Discover hidden gems
Utility information
- Heating:
- Water Heater, Central Heating
- Sewer:
- Public Sewer
- Utilities:
- Electricity Available, Natural Gas Available, Underground Utilities, Cable Available, Sewer Available, Water Available
- Water source:
- Public

Community details
Silverleaf
by Taylor Morrison, Cedar Creek, TX
- 6 homes
- 17 plans
- 2,189 - 4,139 sqft
View Silverleaf details
Community amenities
- Common Grounds
- Dog Park
- Playground
- Club House
- Sport Court
- Community Pool
- Park Nearby
- Fishing Pond
- Picnic Area
- Sport Facility
- Cluster Mailbox
- Sidewalks Available
- High Speed Internet Access
More homes in Silverleaf
- Home at address 110 Cancho Hill Dr, Cedar Creek, TX 78602

Enfield
Silverleaf 50s
$468,547
- 4 bd
- 3 ba
- 2,466 sqft
110 Cancho Hill Dr, Cedar Creek, TX 78602
- Home at address 227 Belmont Wy, Cedar Creek, TX 78602

Windsor
Silverleaf 50s
$503,967
- 4 bd
- 3 ba
- 2,719 sqft
227 Belmont Wy, Cedar Creek, TX 78602
- Home at address 197 Wild Horse Dr, Cedar Creek, TX 78612

Davis
SavingsSilverleaf 60s
$581,857
- 4 bd
- 3.5 ba
- 3,060 sqft
197 Wild Horse Dr, Cedar Creek, TX 78612
- Home at address 184 Wild Horse Dr, Cedar Creek, TX 78612

Rainey
SavingsSilverleaf 60s
$676,342
- 4 bd
- 4.5 ba
- 3,628 sqft
184 Wild Horse Dr, Cedar Creek, TX 78612
Floor plans in Silverleaf
About the builder - Taylor Morrison

- 315communities on Jome
- 1,327homes on Jome
Neighborhood
Home address
- City:
- Cedar Creek
- County:
- Bastrop
- Zip Code:
- 78602
Schools in Bastrop Independent School District
- Grades PK-05Publiccamino real elementary4.4 mi2380 fm 812na
GreatSchools’ Summary Rating calculation is based on 4 of the school’s themed ratings, including test scores, student/academic progress, college readiness, and equity. This information should only be used as a reference. Jome is not affiliated with GreatSchools and does not endorse or guarantee this information. Please reach out to schools directly to verify all information and enrollment eligibility. Data provided by GreatSchools.org © 2025
Places of interest
Getting around
Air quality

Considering this home?
Our expert will guide your tour, in-person or virtual
Need more information?
Text or call (888) 545-5198
Financials
Estimated monthly payment
Let us help you find your dream home
How many bedrooms are you looking for?
Similar homes nearby
Recently added communities in this area
Nearby communities in Cedar Creek
New homes in nearby cities
More New Homes in Cedar Creek, TX
Alexander Properties, MLS 2314431
Based on information from the Austin Board of REALTORS® (alternatively, from ACTRIS) for the period through 08/13/2024. Neither the Board nor ACTRIS guarantees or is in any way responsible for its accuracy. All data is provided “AS IS” and with all faults. Data maintained by the Board or ACTRIS may not reflect all real estate activity in the market. Information being provided is for consumers’ personal, non-commercial use and may not be used for any purpose other than to identify prospective properties consumers may be interested in purchasing. The Digital Millennium Copyright Act of 1998, 17 U.S.C. § 512 (the “DMCA”) provides recourse for copyright owners who believe that material appearing on the Internet infringes their rights under U.S. copyright law. If you believe in good faith that any content or material made available in connection with our website or services infringes your copyright, you (or your agent) may send us a notice requesting that the content or material be removed, or access to it blocked. Notices must be sent in writing by email to DMCAnotice@MLSGrid.com. The DMCA requires that your notice of alleged copyright infringement include the following information: (1) description of the copyrighted work that is the subject of claimed infringement; (2) description of the alleged infringing content and information sufficient to permit us to locate the content; (3) contact information for you, including your address, telephone number and email address; (4) a statement by you that you have a good faith belief that the content in the manner complained of is not authorized by the copyright owner, or its agent, or by the operation of any law; (5) a statement by you, signed under penalty of perjury, that the information in the notification is accurate and that you have the authority to enforce the copyrights that are claimed to be infringed; and (6) a physical or electronic signature of the copyright owner or a person authorized to act on the copyright owner’s behalf. Failure to include all of the above information may result in the delay of the processing of your complaint.
Read moreLast checked Apr 21, 6:40 am
- Jome
- New homes search
- Texas
- Greater Austin Area
- Bastrop County
- Cedar Creek
- Silverleaf
- Silverleaf 50s
- 229 Belmont Wy, Cedar Creek, TX 78602
































