








Book your tour. Save an average of $18,473. We'll handle the rest.
We collect exclusive builder offers, book your tours, and support you from start to housewarming.
- Confirmed tours
- Get matched & compare top deals
- Expert help, no pressure
- No added fees
Estimated value based on Jome data, T&C apply











Why tour with Jome?
- No pressure toursTour at your own pace with no sales pressure
- Expert guidanceGet insights from our home buying experts
- Exclusive accessSee homes and deals not available elsewhere
Jome is featured in
- Single-Family
- Quick move-in
- $193.09/sqft
- $690/annual HOA
Home description
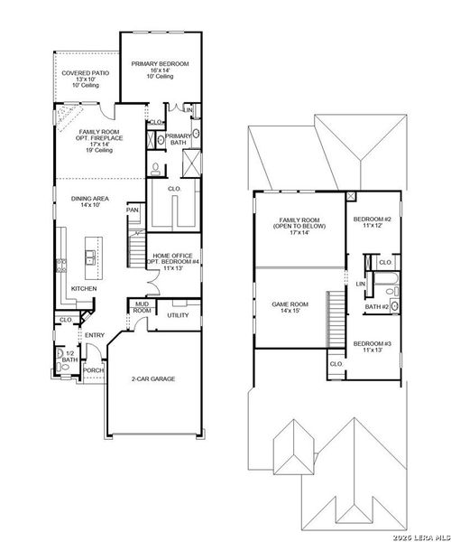
Entry leads to open kitchen, dining area and two-story family room. Kitchen features walk-in pantry, a 5-burner gas cooktop, generous counter space and inviting island with built-in seating space. Home office with French doors just across from kitchen. First-floor primary suite includes 10-foot ceiling. Double doors lead to primary bath with dual vanities, separate glass-enclosed-shower and two walk-in closets. A game room and two secondary bedrooms are upstairs. Covered backyard patio. Landscape features a sprinkler system. Mud room off two-car garage.
Perry Homes Realty, LLC, MLS 1952130
May also be listed on the Perry Homes website
Information last verified by Jome: Today at 2:08 AM (May 30, 2026)
Book your tour. Save an average of $18,473. We'll handle the rest.
We collect exclusive builder offers, book your tours, and support you from start to housewarming.
- Confirmed tours
- Get matched & compare top deals
- Expert help, no pressure
- No added fees
Estimated value based on Jome data, T&C apply
Home details
- Property status:
- Move-in ready
- Collection:
- Ladera 40'
- Lot size (acres):
- 0.16
- Lot width (feet):
- 40
- Size:
- 2,330 sqft
- Stories:
- 2
- Beds:
- 4
- Baths:
- 3
- Half baths:
- 1
- Garage spaces:
- 2
- Fence:
- Privacy Fence
Construction details
- Builder Name:
- Perry Homes
- Completion Date:
- June, 2026
- Year Built:
- 2026
- Roof:
- Composition Roofing
Home features & finishes
- Appliances:
- Sprinkler System
- Cooling:
- Central Air
- Flooring:
- Ceramic FlooringStone FlooringCarpet FlooringTile Flooring
- Foundation Details:
- Slab
- Garage/Parking:
- GarageAttached Garage
- Home amenities:
- Green Construction
- Interior Features:
- Ceiling-HighWalk-In ClosetPantry
- Kitchen:
- Gas Cooktop
- Laundry facilities:
- Utility/Laundry Room
- Property amenities:
- SodPatioPorch
- Rooms:
- Flex RoomPrimary Bedroom On MainKitchenEntry HallGame RoomOffice/StudyMudroomDining RoomFamily RoomOpen Concept FloorplanPrimary Bedroom Downstairs
Room details
Master Bedroom
Kitchen
Dining Room

Get a consultation with our New Homes Expert
- See how your home builds wealth
- Plan your home-buying roadmap
- Discover hidden gems
Utility information
- Heating:
- Central Heating, Gas Heating
- Utilities:
- Natural Gas Available, Natural Gas on Property

Community details
Ladera at Ladera
by Perry Homes, San Antonio, TX
- 31 homes
- 76 plans
- 1,500 - 4,016 sqft
View Ladera details
More homes in Ladera
- Home at address 2614 Suncadia Ln, San Antonio, TX 78245

Design 2079W
Ladera 45'
$399,000
- 4 bd
- 2.5 ba
- 2,080 sqft
2614 Suncadia Ln, San Antonio, TX 78245
- Home at address 2626 Vistablue Ln, San Antonio, TX 78245

2079W
Ladera 45'
$399,900
- 4 bd
- 2.5 ba
- 2,079 sqft
2626 Vistablue Ln, San Antonio, TX 78245
- Home at address 14926 Faraway Mdw, San Antonio, TX 78245

2370W
Ladera 40'
$409,900
- 4 bd
- 3 ba
- 2,370 sqft
14926 Faraway Mdw, San Antonio, TX 78245
- Home at address 15118 Libby Hl, San Antonio, TX 78245

1942W
Ladera 45'
$424,900
- 4 bd
- 3 ba
- 1,942 sqft
15118 Libby Hl, San Antonio, TX 78245
- Home at address 2645 Moonlight Run, San Antonio, TX 78245

2443W
Ladera 40'
$449,900
- 4 bd
- 3 ba
- 2,443 sqft
2645 Moonlight Run, San Antonio, TX 78245
- Home at address 2603 Vistablue Ln, San Antonio, TX 78245

2169W
Ladera 45'
$449,900
- 4 bd
- 3 ba
- 2,169 sqft
2603 Vistablue Ln, San Antonio, TX 78245
Floor plans in Ladera
About the builder - Perry Homes

- 392communities on Jome
- 1,664homes on Jome
Neighborhood
Home address
- City:
- San Antonio
- County:
- Bexar
- Zip Code:
- 78245
Schools in Medina Valley Independent School District
- Grades M-MPublicsilos elementary3.3 mi6909 silos viewna
- Grades PK-06Privatelittle lions learning academy3.6 mi1127 mindie lnna
- Grades UG-UGPrivatepinnacle montessori3.9 mi111 exeter pl drna
GreatSchools’ Summary Rating calculation is based on 4 of the school’s themed ratings, including test scores, student/academic progress, college readiness, and equity. This information should only be used as a reference. Jome is not affiliated with GreatSchools and does not endorse or guarantee this information. Please reach out to schools directly to verify all information and enrollment eligibility. Data provided by GreatSchools.org © 2025
Places of interest
Getting around
Air quality

Considering this home?
Our expert will guide your tour, in-person or virtual
Need more information?
Text or call (888) 545-5198
Financials
Estimated monthly payment
Let us help you find your dream home
How many bedrooms are you looking for?
Similar homes nearby
Recently added communities in this area
Nearby communities in San Antonio
New homes in nearby cities
More New Homes in San Antonio, TX
Perry Homes Realty, LLC, MLS 1952130
IDX information is provided exclusively for personal, non-commercial use, and may not be used for any purpose other than to identify prospective properties consumers may be interested in purchasing. Information is deemed reliable but not guaranteed.
Read moreLast checked May 30, 7:00 am
- Jome
- New homes search
- Texas
- Greater San Antonio
- Bexar County
- San Antonio
- Ladera
- Ladera 40'
- 2429 Barkey Spgs, San Antonio, TX 78245


































