








Book your tour. Save an average of $18,473. We'll handle the rest.
We collect exclusive builder offers, book your tours, and support you from start to housewarming.
- Confirmed tours
- Get matched & compare top deals
- Expert help, no pressure
- No added fees
Estimated value based on Jome data, T&C apply





























- 4 bd
- 3 ba
- 3,259 sqft
1716 Autumn Sage Dr, Argyle, TX 76226
Why tour with Jome?
- No pressure toursTour at your own pace with no sales pressure
- Expert guidanceGet insights from our home buying experts
- Exclusive accessSee homes and deals not available elsewhere
Jome is featured in
- Single-Family
- Under construction
- $237.3/sqft
- $1,950/annual HOA
Home description
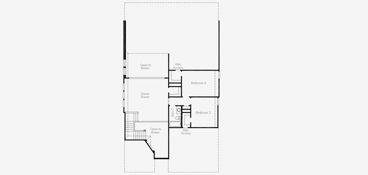
MLS# 21205427 - Built by Coventry Homes - Aug 21 2026 completion! ~ Welcome to your ideal sanctuary! As you arrive at this stunning Coventry home in Furst Ranch, you'll be captivated by its elegant curb appeal. Step inside to an inviting foyer that boasts soaring ceilings and an elegant wrought iron staircase. The gourmet kitchen is a dream for any culinary enthusiast, featuring tailored cabinetry, luxurious quartz countertops, and a spacious island perfect for meal prep and entertaining. Gather in the expansive great room with its impressive height, ideal for family gatherings or cozy nights in. The primary suite is a true retreat, complete with a large walk-in shower, a relaxing garden tub, and dual vanities for your convenience. With a guest bedroom downstairs, hosting visitors has never been easier. In the evenings, enjoy the outdoors from your covered patio or entertain in the generous game room upstairs. This home also includes a 3-car tandem garage, making it functional for all your family's needs. Don't miss your chance to explore this exceptional property — schedule your visit today!
HomesUSA.com, MLS 21205427
May also be listed on the Coventry Homes website
Information last verified by Jome: Today at 1:57 AM (May 30, 2026)
Home highlights
Book your tour. Save an average of $18,473. We'll handle the rest.
We collect exclusive builder offers, book your tours, and support you from start to housewarming.
- Confirmed tours
- Get matched & compare top deals
- Expert help, no pressure
- No added fees
Estimated value based on Jome data, T&C apply
Home details
- Property status:
- Under construction
- Lot size (acres):
- 0.15
- Size:
- 3,259 sqft
- Stories:
- 2
- Beds:
- 4
- Baths:
- 3
- Garage spaces:
- 2
- Fence:
- Wood Fence
- Facing direction:
- West
Construction details
- Builder Name:
- Coventry Homes
- Year Built:
- 2026
- Roof:
- Roof Gutter, Composition Roofing
Home features & finishes
- Appliances:
- Exhaust Fan VentedSprinkler System
- Construction Materials:
- CementBrick
- Cooling:
- Ceiling Fan(s)Central Air
- Flooring:
- Vinyl FlooringCarpet FlooringTile Flooring
- Foundation Details:
- Slab
- Garage/Parking:
- Door OpenerGarageAttached Garage
- Home amenities:
- ENERGY STAR CertifiedGreen Construction
- Interior Features:
- Walk-In ClosetFoyerPantryStorage
- Kitchen:
- DishwasherDisposalGas CooktopGranite countertopKitchen IslandElectric Oven
- Laundry facilities:
- DryerWasherStackable Washer/DryerUtility/Laundry Room
- Lighting:
- Decorative/Designer Lighting
- Property amenities:
- Gas Log FireplaceBackyardLandscapingPatioFireplaceYardPorch
- Rooms:
- Primary Bedroom On MainKitchenGame RoomOffice/StudyMudroomDining RoomFamily RoomOpen Concept FloorplanPrimary Bedroom Downstairs
- Security system:
- Smoke Detector

Get a consultation with our New Homes Expert
- See how your home builds wealth
- Plan your home-buying roadmap
- Discover hidden gems
Utility information
- Heating:
- Heat Pump, Water Heater, Central Heating, Tankless water heater
- Utilities:
- HVAC, City Water System

Community details
Furst Ranch at Furst Ranch
by Coventry Homes, Flower Mound, TX
- 8 homes
- 8 plans
- 1,977 - 3,695 sqft
View Furst Ranch details
Community amenities
- Playground
- Fitness Center/Exercise Area
- Club House
- Community Pool
- Fishing Pond
- Sidewalks Available
- Greenbelt View
- Walking, Jogging, Hike Or Bike Trails
More homes in Furst Ranch
- Home at address 1828 Autumn Sage Dr, Argyle, TX 76226

Home
$699,990
- 4 bd
- 3 ba
- 2,505 sqft
1828 Autumn Sage Dr, Argyle, TX 76226
- Home at address 1828 Autumn Sage Dr, Argyle, TX 75022

Carson
$699,990
- 4 bd
- 3 ba
- 2,505 sqft
1828 Autumn Sage Dr, Argyle, TX 75022
- Home at address 1824 Autumn Sage Dr, Argyle, TX 76226

Home
$759,104
- 4 bd
- 3 ba
- 3,249 sqft
1824 Autumn Sage Dr, Argyle, TX 76226
- Home at address 1844 Autumn Sage Dr, Argyle, TX 75022

Mineola
$775,906
- 4 bd
- 4 ba
- 3,296 sqft
1844 Autumn Sage Dr, Argyle, TX 75022
- Home at address 1844 Autumn Sage Dr, Argyle, TX 76226

Home
$775,906
- 4 bd
- 4 ba
- 3,296 sqft
1844 Autumn Sage Dr, Argyle, TX 76226
- Home at address 1848 Autumn Sage Dr, Argyle, TX 76226

Home
$804,117
- 5 bd
- 5 ba
- 3,695 sqft
1848 Autumn Sage Dr, Argyle, TX 76226
Floor plans in Furst Ranch
About the builder - Coventry Homes

- 183communities on Jome
- 1,039homes on Jome
Neighborhood
Home address
Schools in Argyle Independent School District
- Grades M-MPublicnew middle1.2 mi6701 canyon falls drna
GreatSchools’ Summary Rating calculation is based on 4 of the school’s themed ratings, including test scores, student/academic progress, college readiness, and equity. This information should only be used as a reference. Jome is not affiliated with GreatSchools and does not endorse or guarantee this information. Please reach out to schools directly to verify all information and enrollment eligibility. Data provided by GreatSchools.org © 2025
Places of interest
Getting around
Air quality
Noise level
A Soundscore™ rating is a number between 50 (very loud) and 100 (very quiet) that tells you how loud a location is due to environmental noise.

Considering this home?
Our expert will guide your tour, in-person or virtual
Need more information?
Text or call (888) 545-5198
Financials
Estimated monthly payment
Let us help you find your dream home
How many bedrooms are you looking for?
Similar homes nearby
Recently added communities in this area
Nearby communities in Argyle
New homes in nearby cities
More New Homes in Argyle, TX
HomesUSA.com, MLS 21205427
IDX information is provided exclusively for personal, non-commercial use, and may not be used for any purpose other than to identify prospective properties consumers may be interested in purchasing. You may not reproduce or redistribute this data, it is for viewing purposes only. This data is deemed reliable, but is not guaranteed accurate by the MLS or NTREIS.
Read moreLast checked May 30, 4:00 am
- Jome
- New homes search
- Texas
- Dallas-Fort Worth Area
- Denton County
- Argyle
- Furst Ranch
- 1716 Autumn Sage Dr, Argyle, TX 76226






























