



Book your tour. Save an average of $18,473. We'll handle the rest.
We collect exclusive builder offers, book your tours, and support you from start to housewarming.
- Confirmed tours
- Get matched & compare top deals
- Expert help, no pressure
- No added fees
Estimated value based on Jome data, T&C apply
- 4 bd
- 4.5 ba
- 3,628 sqft
5233 Brunelli Pass, Leander, TX 78641
Why tour with Jome?
- No pressure toursTour at your own pace with no sales pressure
- Expert guidanceGet insights from our home buying experts
- Exclusive accessSee homes and deals not available elsewhere
Jome is featured in
- Single-Family
- Ready by September 2026
- $242.28/sqft
- $80/monthly HOA
Home description
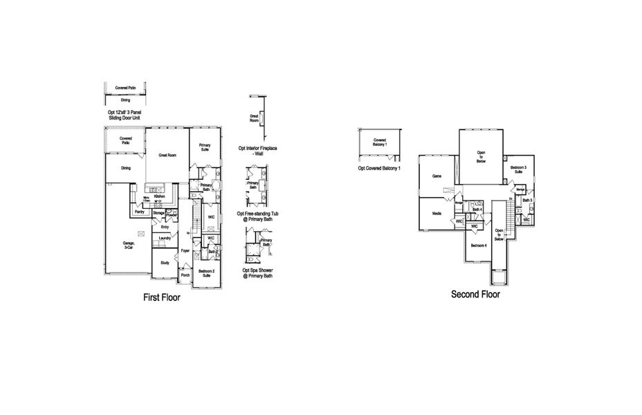
Welcome to the Rainey at 5233 Brunelli Pass at Travisso. The 2‑story Rainey floor plan offers 4 bedrooms, 4.5 bathrooms, a 3‑car garage, and 3,628 square feet of thoughtful living space. Just off the foyer, a private bedroom suite provides comfort and convenience for guests or family. Across the way, the study, laundry room, powder room, and garage entry come together to create a smooth, functional flow. The great room opens to the casual dining area, kitchen, and covered patio, offering a bright, relaxed space perfect for gathering or unwinding. The tucked‑away primary suite sits quietly at the back of the home, giving you a peaceful place to settle in and recharge. Upstairs, a spacious game room and media room offer room to spread out, along with two additional bedrooms—one of which enjoys its own private suite. Our luxury amenities are designed to help you unwind, stay active, and connect. The 9‑acre Palazzo Clubhouse features a resort-style pool, fitness center, tennis courts, and year‑round gathering spaces. The Forum adds even more indoor and outdoor recreation, while an onsite Lifestyle Director brings the community together with events for all ages. Additional Highlights Include: Free-standing tub at owner's bath. MLS#3888326
May also be listed on the Taylor Morrison website
Information last verified by Jome: Today at 12:51 AM (February 28, 2026)
Book your tour. Save an average of $18,473. We'll handle the rest.
We collect exclusive builder offers, book your tours, and support you from start to housewarming.
- Confirmed tours
- Get matched & compare top deals
- Expert help, no pressure
- No added fees
Estimated value based on Jome data, T&C apply
Home details
- Property status:
- Under construction
- Collection:
- Travisso Siena
- Size:
- 3,628 sqft
- Stories:
- 2
- Beds:
- 4
- Baths:
- 4.5
- Garage spaces:
- 3
- Facing direction:
- Northwest
Construction details
- Builder Name:
- Taylor Morrison
- Completion Date:
- September, 2026
Home features & finishes
- Garage/Parking:
- Garage
- Rooms:
- Game RoomMedia RoomOffice/StudyGuest RoomDining Room

Get a consultation with our New Homes Expert
- See how your home builds wealth
- Plan your home-buying roadmap
- Discover hidden gems

Community details
Travisso at Travisso
by Taylor Morrison, Leander, TX
- 7 homes
- 35 plans
- 2,564 - 5,213 sqft
View Travisso details
More homes in Travisso
- Home at address 1233 Novara Trl, Leander, TX 78641

Saffron
Travisso Capri
$599,030
- 5 bd
- 4 ba
- 2,679 sqft
1233 Novara Trl, Leander, TX 78641
- Home at address 1217 Novara Trl, Leander, TX 78641

Saffron
Travisso Capri
$602,196
- 5 bd
- 4 ba
- 2,679 sqft
1217 Novara Trl, Leander, TX 78641
- Home at address 1912 Montella Wy, Leander, TX 78641

Saffron
Travisso Capri
$636,597
- 5 bd
- 4 ba
- 2,679 sqft
1912 Montella Wy, Leander, TX 78641
- Home at address 1905 Montella Wy, Leander, TX 78641

Bordeaux
Travisso Capri
$709,886
- 5 bd
- 4 ba
- 3,204 sqft
1905 Montella Wy, Leander, TX 78641
- Home at address 5133 Colombo Vw, Leander, TX 78641

Parmer
Travisso Siena
$839,441
- 4 bd
- 4.5 ba
- 3,441 sqft
5133 Colombo Vw, Leander, TX 78641
- Home at address 2621 Novara Trl, Leander, TX 78641

Catalina
Travisso Florence
$1,194,925
- 5 bd
- 5.5 ba
- 5,213 sqft
2621 Novara Trl, Leander, TX 78641
Floor plans in Travisso
About the builder - Taylor Morrison

- 321communities on Jome
- 1,477homes on Jome
Neighborhood
Home address
Schools in Leander Independent School District
- Grades PK-KGPrivateprimrose school of crystal falls3.7 mi1781 osage drna
GreatSchools’ Summary Rating calculation is based on 4 of the school’s themed ratings, including test scores, student/academic progress, college readiness, and equity. This information should only be used as a reference. Jome is not affiliated with GreatSchools and does not endorse or guarantee this information. Please reach out to schools directly to verify all information and enrollment eligibility. Data provided by GreatSchools.org © 2025
Places of interest
Getting around
Air quality

Considering this home?
Our expert will guide your tour, in-person or virtual
Need more information?
Text or call (888) 488-9243
Financials
Estimated monthly payment
Let us help you find your dream home
How many bedrooms are you looking for?
Similar homes nearby
Recently added communities in this area
Nearby communities in Leander
New homes in nearby cities
More New Homes in Leander, TX
- Jome
- New homes search
- Texas
- Greater Austin Area
- Travis County
- Leander
- Travisso
- Travisso Siena
- 5233 Brunelli Pass, Leander, TX 78641


































