






Book your tour. Save an average of $18,473. We'll handle the rest.
We collect exclusive builder offers, book your tours, and support you from start to housewarming.
- Confirmed tours
- Get matched & compare top deals
- Expert help, no pressure
- No added fees
Estimated value based on Jome data, T&C apply



Why tour with Jome?
- No pressure toursTour at your own pace with no sales pressure
- Expert guidanceGet insights from our home buying experts
- Exclusive accessSee homes and deals not available elsewhere
Jome is featured in
- Single-Family
- Ready by May 2026
- $211.97/sqft
- No HOA fee
Home description
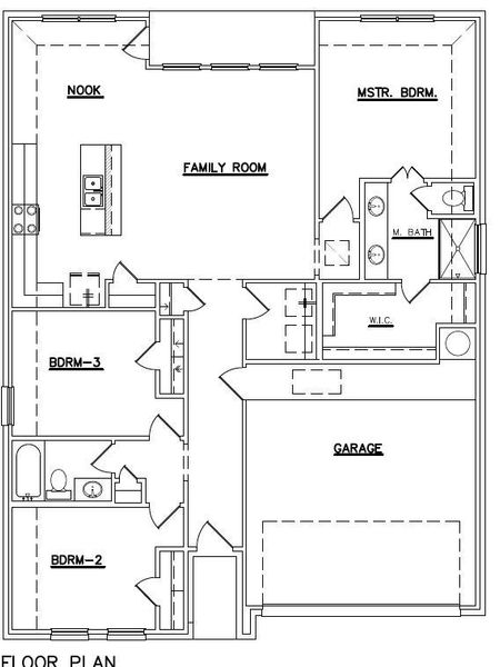
Welcome to Cheldan Homes’ booming Stoneview development! Conveniently located just 5 minutes from downtown Glen Rose and 20 minutes from downtown Granbury, this beautifully designed 3-bedroom, 2-bath home offers both comfort and efficiency on a great oversized lot for the neighborhood! While inside, you’ll find thoughtful upgrades throughout. A custom mud bench adds both style and functionality, and luxury vinyl plank flooring flows seamlessly through the entryway, living room, kitchen, and dining nook for easy maintenance. The open-concept kitchen is designed for everyday living and entertaining, showcasing quartz countertops, a stylish horizontal picket-laid backsplash, stainless steel appliances, and ample cabinet storage. The primary suite offers a relaxing retreat, highlighted by a beautifully tiled shower. Additional tile and carpet throughout the home provide comfort and durability in all the right places. Step outside to enjoy a nicely sized backyard and covered patio perfect for taking advantage of Texas’s beautiful weather year-round. Don’t miss your chance to be part of this growing community. Homes and lots are selling quickly!
Coldwell Banker Apex, REALTORS, MLS 21228028
May also be listed on the Cheldan Homes website
Information last verified by Jome: Today at 2:10 AM (April 16, 2026)
Book your tour. Save an average of $18,473. We'll handle the rest.
We collect exclusive builder offers, book your tours, and support you from start to housewarming.
- Confirmed tours
- Get matched & compare top deals
- Expert help, no pressure
- No added fees
Estimated value based on Jome data, T&C apply
Home details
- Property status:
- Under construction
- Lot size (acres):
- 0.21
- Size:
- 1,604 sqft
- Stories:
- 1
- Beds:
- 3
- Baths:
- 2
- Garage spaces:
- 2
- Fence:
- Wood Fence
Construction details
- Builder Name:
- Cheldan Homes
- Completion Date:
- May, 2026
- Year Built:
- 2026
- Roof:
- Composition Roofing
Home features & finishes
- Appliances:
- Sprinkler System
- Construction Materials:
- BrickRockStone
- Cooling:
- Central Air
- Flooring:
- Ceramic FlooringVinyl FlooringCarpet FlooringTile Flooring
- Foundation Details:
- Slab
- Garage/Parking:
- Door OpenerGarageFront Entry Garage/ParkingAttached Garage
- Interior Features:
- Walk-In ClosetPantryFlat Screen Wiring
- Kitchen:
- DishwasherMicrowave OvenDisposalGranite countertopKitchen IslandKitchen Range
- Laundry facilities:
- DryerWasherStackable Washer/DryerUtility/Laundry Room
- Lighting:
- Decorative/Designer Lighting
- Property amenities:
- Trees on propertyLandscapingPatioPorch
- Rooms:
- Primary Bedroom On MainKitchenOpen Concept FloorplanPrimary Bedroom Downstairs
- Security system:
- Smoke DetectorCarbon Monoxide Detector

Get a consultation with our New Homes Expert
- See how your home builds wealth
- Plan your home-buying roadmap
- Discover hidden gems
Utility information
- Heating:
- Electric Heating, Water Heater, Central Heating
- Utilities:
- City Water System, High Speed Internet Access

Community details
Stoneview
by Cheldan Homes, Glen Rose, TX
- 5 homes
- 3 plans
- 1,517 - 2,137 sqft
View Stoneview details
More homes in Stoneview
- Home at address 109 Mesa Dr, Glen Rose, TX 76043

Waterford III
$355,503
- 3 bd
- 2 ba
- 1,790 sqft
109 Mesa Dr, Glen Rose, TX 76043
- Home at address 107 Mesa Dr, Glen Rose, TX 76043

Iverson I
$367,000
- 4 bd
- 2 ba
- 1,999 sqft
107 Mesa Dr, Glen Rose, TX 76043
- Home at address 112 Mesa Dr, Glen Rose, TX 76043

Monroe
$370,000
- 3 bd
- 2 ba
- 1,840 sqft
112 Mesa Dr, Glen Rose, TX 76043
- Home at address 110 Mesa Dr, Glen Rose, TX 76043

Geraldine
$382,896
- 3 bd
- 2 ba
- 2,137 sqft
110 Mesa Dr, Glen Rose, TX 76043
Floor plans in Stoneview
About the builder - Cheldan Homes
Neighborhood
Home address
Schools in Glen Rose Independent School District
GreatSchools’ Summary Rating calculation is based on 4 of the school’s themed ratings, including test scores, student/academic progress, college readiness, and equity. This information should only be used as a reference. Jome is not affiliated with GreatSchools and does not endorse or guarantee this information. Please reach out to schools directly to verify all information and enrollment eligibility. Data provided by GreatSchools.org © 2025
Places of interest
Getting around
Air quality

Considering this home?
Our expert will guide your tour, in-person or virtual
Need more information?
Text or call (888) 545-5198
Financials
Estimated monthly payment
Let us help you find your dream home
How many bedrooms are you looking for?
Similar homes nearby
Recently added communities in this area
Nearby communities in Glen Rose
New homes in nearby cities
More New Homes in Glen Rose, TX
Coldwell Banker Apex, REALTORS, MLS 21228028
IDX information is provided exclusively for personal, non-commercial use, and may not be used for any purpose other than to identify prospective properties consumers may be interested in purchasing. You may not reproduce or redistribute this data, it is for viewing purposes only. This data is deemed reliable, but is not guaranteed accurate by the MLS or NTREIS.
Read moreLast checked Apr 16, 10:00 am
- Jome
- New homes search
- Texas
- Somervell County
- Glen Rose
- Stoneview
- 105 Mesa Dr, Glen Rose, TX 76043































