








Book your tour. Save an average of $18,473. We'll handle the rest.
We collect exclusive builder offers, book your tours, and support you from start to housewarming.
- Confirmed tours
- Get matched & compare top deals
- Expert help, no pressure
- No added fees
Estimated value based on Jome data, T&C apply









- 4 bd
- 2.5 ba
- 2,263 sqft
16202 Domestic Dove Wy, Hockley, TX 77447
Why tour with Jome?
- No pressure toursTour at your own pace with no sales pressure
- Expert guidanceGet insights from our home buying experts
- Exclusive accessSee homes and deals not available elsewhere
Jome is featured in
- Single-Family
- Quick move-in
- $128.14/sqft
- $1,200/annual HOA
Builder deals available
- TOP-TIER DEAL
FHA 30 Year Fixed
$31,980 est. value- Rate buydown from 3.5% (1–5 year) with 6.778% APR, 3.5% down payment, and 680 credit score
- $10,000 closing costs help
Any loan type
$4,050 est. value- $4,047 free upgrades
Deals may change and are not guaranteed. Some deals apply to specific homes or plans. Not a financing offer. Eligibility varies by lender. Please verify details.
Home description
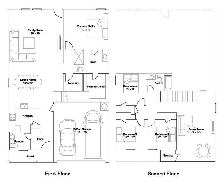
NEW! Lennar Core Watermill Collection "Sherman" Plan with Elevation "J4" in The Grand Prairie! This two-story home has a comfortable layout for those who need privacy. The front door leads into an open concept living area with a kitchen, family room and dining room. Tucked into the back corner is the owner’s suite, which features a private bathroom and walk-in closet. Upstairs is a versatile game round surrounded by three bedrooms that share a bathroom in the hall.
Lennar Homes Village Builders, LLC, MLS 85788574
May also be listed on the Lennar website
Information last verified by Jome: Today at 2:35 AM (April 13, 2026)
Book your tour. Save an average of $18,473. We'll handle the rest.
We collect exclusive builder offers, book your tours, and support you from start to housewarming.
- Confirmed tours
- Get matched & compare top deals
- Expert help, no pressure
- No added fees
Estimated value based on Jome data, T&C apply
Home details
- Property status:
- Move-in ready
- Collection:
- The Grand Prairie: Watermill
- Size:
- 2,263 sqft
- Stories:
- 2
- Beds:
- 4
- Baths:
- 2
- Half baths:
- 1
- Garage spaces:
- 2
Construction details
- Builder Name:
- Lennar
- Year Built:
- 2026
- Roof:
- Composition Roofing
Home features & finishes
- Construction Materials:
- CementBrick
- Foundation Details:
- Slab
- Garage/Parking:
- GarageAttached Garage
- Interior Features:
- Walk-In ClosetFoyerPantryStorage
- Kitchen:
- DishwasherMicrowave OvenDisposalKitchen Range
- Laundry facilities:
- Utility/Laundry Room
- Property amenities:
- Porch
- Rooms:
- Primary Bedroom On MainKitchenPowder RoomGame RoomDining RoomFamily RoomOpen Concept FloorplanPrimary Bedroom Downstairs

Get a consultation with our New Homes Expert
- See how your home builds wealth
- Plan your home-buying roadmap
- Discover hidden gems
Utility information
- Heating:
- Gas Heating
- Water source:
- Public

Community details
The Grand Prairie at The Grand Prairie
by Lennar, Hockley, TX
- 38 homes
- 60 plans
- 1,318 - 3,244 sqft
View The Grand Prairie details
More homes in The Grand Prairie
- Home at address 28518 Golden Hay Dr, Hockley, TX 77447

Pinehollow
SavingsThe Grand Prairie: Cottage
$245,140
- 4 bd
- 2 ba
- 1,670 sqft
28518 Golden Hay Dr, Hockley, TX 77447
- Home at address 28818 Texas Sparrow Ln, Hockley, TX 77447

Pinehollow
The Grand Prairie: Cottage
$250,000
- 4 bd
- 2 ba
- 1,690 sqft
28818 Texas Sparrow Ln, Hockley, TX 77447
- Home at address 28514 Golden Hay Dr, Hockley, TX 77447

Sentosa
SavingsThe Grand Prairie: Cottage
$251,940
- 4 bd
- 2 ba
- 1,644 sqft
28514 Golden Hay Dr, Hockley, TX 77447
- Home at address 28502 Golden Hay Dr, Hockley, TX 77447

Pinehollow
SavingsThe Grand Prairie: Cottage
$252,390
- 4 bd
- 2 ba
- 1,670 sqft
28502 Golden Hay Dr, Hockley, TX 77447
- Home at address 28522 Golden Hay Dr, Hockley, TX 77447

Home
$263,990
- 4 bd
- 2.5 ba
- 1,982 sqft
28522 Golden Hay Dr, Hockley, TX 77447
- Home at address 16810 Old Wagon Wy, Hockley, TX 77447

Barlow
SavingsThe Grand Prairie: Cottage
$265,340
- 4 bd
- 2.5 ba
- 2,279 sqft
16810 Old Wagon Wy, Hockley, TX 77447
Floor plans in The Grand Prairie
About the builder - Lennar

- 1,840communities on Jome
- 6,677homes on Jome
Neighborhood
Home address
Schools in Waller Independent School District
- Grades 11-11Publicwaller j j a e p4.9 mi1918 key stna
- Grades M-MPublicbryan lowe elementary5.0 mi31502 conifer farm drna
GreatSchools’ Summary Rating calculation is based on 4 of the school’s themed ratings, including test scores, student/academic progress, college readiness, and equity. This information should only be used as a reference. Jome is not affiliated with GreatSchools and does not endorse or guarantee this information. Please reach out to schools directly to verify all information and enrollment eligibility. Data provided by GreatSchools.org © 2025
Places of interest
Getting around
Air quality
Noise level
A Soundscore™ rating is a number between 50 (very loud) and 100 (very quiet) that tells you how loud a location is due to environmental noise.

Considering this home?
Our expert will guide your tour, in-person or virtual
Need more information?
Text or call (888) 545-5198
Financials
Estimated monthly payment
Let us help you find your dream home
How many bedrooms are you looking for?
Similar homes nearby
Recently added communities in this area
Nearby communities in Hockley
New homes in nearby cities
More New Homes in Hockley, TX
Lennar Homes Village Builders, LLC, MLS 85788574
Copyright © 2025, Houston Realtors Information Service, Inc. The information provided is exclusively for consumers’ personal, non-commercial use, and may not be used for any purpose other than to identify prospective properties consumers may be interested in purchasing. Information is deemed reliable but not guaranteed. All information provided should be independently verified.
Read moreLast checked Apr 13, 8:50 am
- Jome
- New homes search
- Texas
- Greater Houston Area
- Harris County
- Hockley
- The Grand Prairie
- The Grand Prairie: Watermill
- 16202 Domestic Dove Wy, Hockley, TX 77447






























