



Book your tour. Save an average of $18,473. We'll handle the rest.
We collect exclusive builder offers, book your tours, and support you from start to housewarming.
- Confirmed tours
- Get matched & compare top deals
- Expert help, no pressure
- No added fees
Estimated value based on Jome data, T&C apply
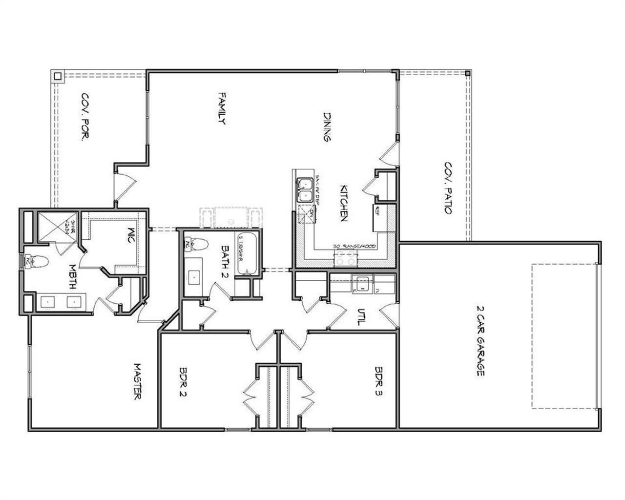
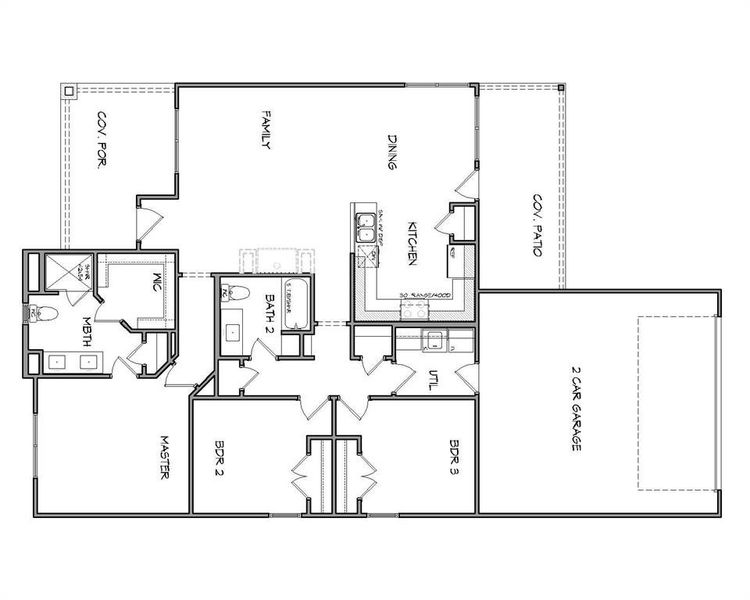
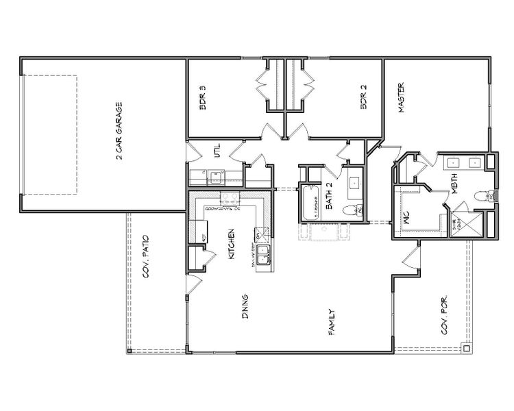
- 3 bd
- 2 ba
- 1,470 sqft
3644 Randall Ter, Midlothian, TX 76065
Why tour with Jome?
- No pressure toursTour at your own pace with no sales pressure
- Expert guidanceGet insights from our home buying experts
- Exclusive accessSee homes and deals not available elsewhere
Jome is featured in
- Single-Family
- Under construction
- $253.74/sqft
- $210/quarterly HOA
Home description
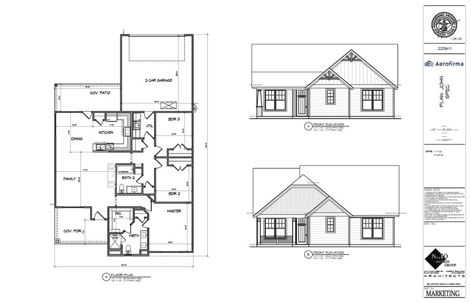
NEW CONSTRUCTION due for completion Fall 2026! This 3-2-2 home is located in a 37-acre master planned community. Open concept living, dining & kitchen. Kitchen features stainless steel appliances, ceramic tile backsplash & granite countertops. Primary bedroom with ensuite bath featuring shower & walkin closet. Other two bedrooms are nice sized. Fenced backyard with covered patio. Heritage Towne is Grand Prairie's newest gated community. The heart of the community is the amenity center including a conference room, state of the art gym equipment, resort style swimming pool & outdoor kitchen area. Community also features a playground, dog park and a 3-acre park with a surrounding walking trail. Heritage Towne is wonderfully located within a growing area, offering easy access to highways 360, 287, and I-20 to efficiently commute to Fort Worth, Dallas & Arlington. The community is located within the city of Grand Prairie, Ellis County, and award-winning Midlothian school district.
Keller Williams Lonestar DFW, MLS 21205296
May also be listed on the Heritage Towne website
Information last verified by Jome: Yesterday at 1:27 AM (April 17, 2026)
Home highlights
Downtown Dallas interactive arts plaza with food halls, live events and pedestrian vibrancy.
Book your tour. Save an average of $18,473. We'll handle the rest.
We collect exclusive builder offers, book your tours, and support you from start to housewarming.
- Confirmed tours
- Get matched & compare top deals
- Expert help, no pressure
- No added fees
Estimated value based on Jome data, T&C apply
Home details
- Property status:
- Under construction
- Lot size (acres):
- 0.14
- Size:
- 1,470 sqft
- Stories:
- 1
- Beds:
- 3
- Baths:
- 2
- Garage spaces:
- 2
- Fence:
- Wood Fence
- Facing direction:
- Southeast
Construction details
- Builder Name:
- Heritage Towne
- Year Built:
- 2026
- Roof:
- Roof Gutter, Composition Roofing
Home features & finishes
- Appliances:
- Sprinkler System
- Cooling:
- Ceiling Fan(s)Central Air
- Flooring:
- Ceramic FlooringVinyl FlooringCarpet FlooringTile Flooring
- Foundation Details:
- Slab
- Garage/Parking:
- GarageRear Entry Garage/ParkingAttached Garage
- Home amenities:
- Green Construction
- Interior Features:
- Ceiling-HighWalk-In ClosetPantryBlinds
- Kitchen:
- DishwasherDisposalGas CooktopGranite countertopKitchen RangeElectric Oven
- Laundry facilities:
- Utility/Laundry Room
- Lighting:
- Decorative/Designer Lighting
- Property amenities:
- SidewalkLandscapingPatioSmart Home SystemPorch
- Rooms:
- Primary Bedroom On MainKitchenDining RoomFamily RoomOpen Concept FloorplanPrimary Bedroom Downstairs
- Security system:
- Fire Alarm SystemSecurity SystemSmoke DetectorCarbon Monoxide Detector

Get a consultation with our New Homes Expert
- See how your home builds wealth
- Plan your home-buying roadmap
- Discover hidden gems
Utility information
- Heating:
- Water Heater, Central Heating, Gas Heating, Tankless water heater
- Utilities:
- Natural Gas Available, Natural Gas on Property, Underground Utilities, HVAC, City Water System, High Speed Internet Access, Cable TV

Community details
Heritage Towne
by Heritage Towne, Midlothian, TX
- 6 homes
- 17 plans
- 1,433 - 2,869 sqft
View Heritage Towne details
Community amenities
- Playground
- Fitness Center/Exercise Area
- Club House
- Gated Community
- Community Pool
- Walking, Jogging, Hike Or Bike Trails
More homes in Heritage Towne
- Home at address 10820 Eva Mae Blvd, Grand Prairie, TX 76065

Luke
Savings$359,900
- 3 bd
- 2 ba
- 1,433 sqft
10820 Eva Mae Blvd, Grand Prairie, TX 76065
- Home at address 3647 William Ct, Midlothian, TX 76065

Luke
Savings$370,000
- 3 bd
- 2 ba
- 1,454 sqft
3647 William Ct, Midlothian, TX 76065
- Home at address 3510 Randall Ter, Midlothian, TX 76065

Chase
Savings$446,000
- 3 bd
- 2 ba
- 2,025 sqft
3510 Randall Ter, Midlothian, TX 76065
- Home at address 3526 Randall Ter, Midlothian, TX 76065

Emma
Savings$455,000
- 3 bd
- 2.5 ba
- 2,236 sqft
3526 Randall Ter, Midlothian, TX 76065
- Home at address 3636 Randall Ter, Midlothian, TX 76065

Wills
Savings$485,000
- 4 bd
- 3 ba
- 2,381 sqft
3636 Randall Ter, Midlothian, TX 76065
Floor plans in Heritage Towne
About the builder - Heritage Towne
Neighborhood
Home address
- City:
- Midlothian
- County:
- Ellis
- Zip Code:
- 76065
Schools in Midlothian Independent School District
GreatSchools’ Summary Rating calculation is based on 4 of the school’s themed ratings, including test scores, student/academic progress, college readiness, and equity. This information should only be used as a reference. Jome is not affiliated with GreatSchools and does not endorse or guarantee this information. Please reach out to schools directly to verify all information and enrollment eligibility. Data provided by GreatSchools.org © 2025
Places of interest
Getting around
Air quality
Noise level
A Soundscore™ rating is a number between 50 (very loud) and 100 (very quiet) that tells you how loud a location is due to environmental noise.

Considering this home?
Our expert will guide your tour, in-person or virtual
Need more information?
Text or call (888) 545-5198
Financials
Estimated monthly payment
Let us help you find your dream home
How many bedrooms are you looking for?
Similar homes nearby
Recently added communities in this area
Nearby communities in Midlothian
New homes in nearby cities
More New Homes in Midlothian, TX
Keller Williams Lonestar DFW, MLS 21205296
IDX information is provided exclusively for personal, non-commercial use, and may not be used for any purpose other than to identify prospective properties consumers may be interested in purchasing. You may not reproduce or redistribute this data, it is for viewing purposes only. This data is deemed reliable, but is not guaranteed accurate by the MLS or NTREIS.
Read moreLast checked Apr 17, 10:00 pm
- Jome
- New homes search
- Texas
- Dallas-Fort Worth Area
- Ellis County
- Midlothian
- Heritage Towne
- 3644 Randall Ter, Midlothian, TX 76065

































