














Book your tour. Save an average of $18,473. We'll handle the rest.
We collect exclusive builder offers, book your tours, and support you from start to housewarming.
- Confirmed tours
- Get matched & compare top deals
- Expert help, no pressure
- No added fees
Estimated value based on Jome data, T&C apply





























Why tour with Jome?
- No pressure toursTour at your own pace with no sales pressure
- Expert guidanceGet insights from our home buying experts
- Exclusive accessSee homes and deals not available elsewhere
Jome is featured in
- Single-Family
- Ready by March 2026
- $196.25/sqft
- $20/monthly HOA
Home description
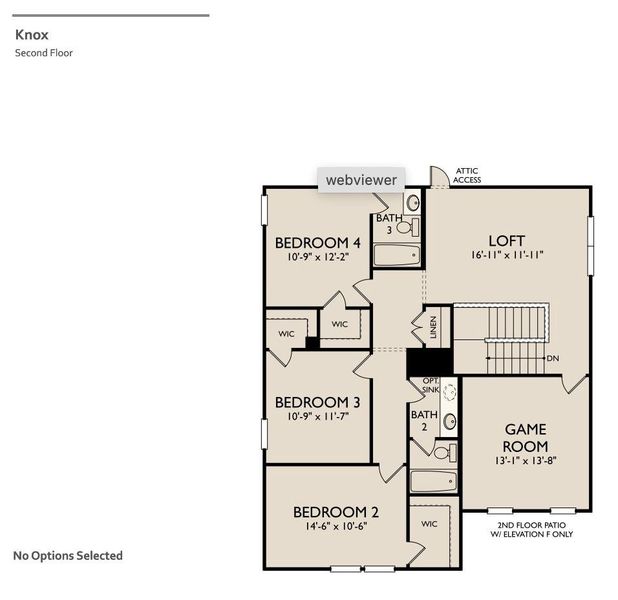
The Knox model home is a best selling two story plan thoughtfully designed for everyday comfort and elevated living. This spacious home offers five bedrooms and four bathrooms, including two bedrooms on the main floor. One serves as a private primary suite featuring a luxury shower, while the second is ideal for multi generational living or extended guests.
A dedicated study creates a functional work from home space. Upstairs includes a versatile loft, a media room with balcony access and additional bedrooms, including one with a private ensuite. The gourmet kitchen connects seamlessly to the main living areas, making entertaining easy. Designer accent walls add character throughout, while a mudroom off the garage enhances organization. A covered patio completes the home, offering a comfortable space for relaxing or hosting gatherings!
May also be listed on the Ashton Woods website
Information last verified by Jome: Today at 5:38 AM (February 26, 2026)
Home highlights
Mixed‑use retail and entertainment center north of Austin with shops, dining, live events and walkable energy.
Book your tour. Save an average of $18,473. We'll handle the rest.
We collect exclusive builder offers, book your tours, and support you from start to housewarming.
- Confirmed tours
- Get matched & compare top deals
- Expert help, no pressure
- No added fees
Estimated value based on Jome data, T&C apply
Home details
- Property status:
- Under construction
- Lot size (acres):
- 0.13
- Size:
- 2,904 sqft
- Stories:
- 2
- Beds:
- 5
- Baths:
- 4
- Garage spaces:
- 2
- Fence:
- Wood Fence, Privacy Fence
- Facing direction:
- West
Construction details
- Builder Name:
- Ashton Woods
- Completion Date:
- March, 2026
- Year Built:
- 2026
- Roof:
- Composition Roofing
Home features & finishes
- Appliances:
- Exhaust FanWater SoftenerSprinkler System
- Construction Materials:
- Stone
- Cooling:
- Central Air
- Flooring:
- Vinyl FlooringCarpet FlooringTile Flooring
- Foundation Details:
- Slab
- Garage/Parking:
- Door OpenerGarageFront Entry Garage/ParkingAttached Garage
- Home amenities:
- Green Construction
- Interior Features:
- Ceiling-HighWalk-In ClosetPantryBreakfast BarLoftFrench DoorsDouble Vanity
- Kitchen:
- DishwasherMicrowave OvenOvenDisposalStainless Steel AppliancesGas CooktopBuilt-In OvenQuartz countertopSelf Cleaning OvenKitchen IslandCooktopKitchen Range
- Laundry facilities:
- DryerWasherUtility/Laundry Room
- Lighting:
- Lighting
- Property amenities:
- SodBalconyBackyardBathtub in primaryPatioSmart Home SystemPorch
- Rooms:
- Flex RoomPrimary Bedroom On MainKitchenGame RoomOffice/StudyDining RoomFamily RoomLiving RoomBreakfast AreaOpen Concept FloorplanPrimary Bedroom Downstairs
- Security system:
- Smoke Detector

Get a consultation with our New Homes Expert
- See how your home builds wealth
- Plan your home-buying roadmap
- Discover hidden gems
Utility information
- Heating:
- Water Heater, Central Heating, Gas Heating
- Utilities:
- Electricity Available, Natural Gas Available, Underground Utilities, Internet Cable, Phone Available, HVAC, Cable Available, Sewer Available, Water Available

Community details
Covered Bridge
by Ashton Woods, Hutto, TX
- 4 homes
- 5 plans
- 1,918 - 2,904 sqft
View Covered Bridge details
Community amenities
- Cluster Mailbox
More homes in Covered Bridge
- Home at address 103 Palo Brea Lp, Hutto, TX 78634

Blake
$493,812
- 5 bd
- 3 ba
- 2,417 sqft
103 Palo Brea Lp, Hutto, TX 78634
Floor plans in Covered Bridge
About the builder - Ashton Woods
Neighborhood
Home address
- City:
- Hutto
- County:
- Williamson
- Zip Code:
- 78634
Schools in Hutto Independent School District
GreatSchools’ Summary Rating calculation is based on 4 of the school’s themed ratings, including test scores, student/academic progress, college readiness, and equity. This information should only be used as a reference. Jome is not affiliated with GreatSchools and does not endorse or guarantee this information. Please reach out to schools directly to verify all information and enrollment eligibility. Data provided by GreatSchools.org © 2025
Places of interest
Getting around
Air quality
Noise level
A Soundscore™ rating is a number between 50 (very loud) and 100 (very quiet) that tells you how loud a location is due to environmental noise.

Considering this home?
Our expert will guide your tour, in-person or virtual
Need more information?
Text or call (888) 488-9243
Financials
Estimated monthly payment
Let us help you find your dream home
How many bedrooms are you looking for?
Similar homes nearby
Recently added communities in this area
Nearby communities in Hutto
New homes in nearby cities
More New Homes in Hutto, TX
- Jome
- New homes search
- Texas
- Greater Austin Area
- Williamson County
- Hutto
- Covered Bridge
- 104 Palo Brea Lp, Hutto, TX 78634






























