








Book your tour. Save an average of $18,473. We'll handle the rest.
We collect exclusive builder offers, book your tours, and support you from start to housewarming.
- Confirmed tours
- Get matched & compare top deals
- Expert help, no pressure
- No added fees
Estimated value based on Jome data, T&C apply






































- 4 bd
- 2.5 ba
- 2,467 sqft
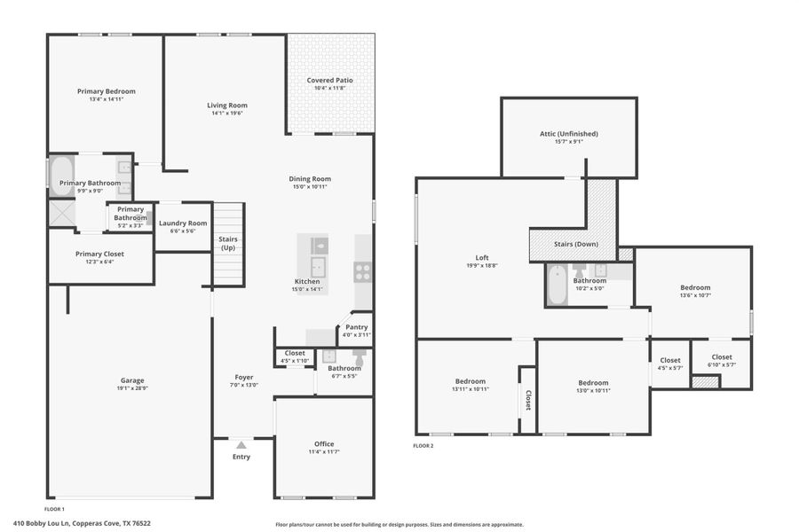
410 Bobby Lou Ln, Copperas Cove, TX 76522
Why tour with Jome?
- No pressure toursTour at your own pace with no sales pressure
- Expert guidanceGet insights from our home buying experts
- Exclusive accessSee homes and deals not available elsewhere
Jome is featured in
- Single-Family
- Quick move-in
- $127.69/sqft
- $300/annual HOA
Home description
Seller is willing to assist with closing costs or a rate buy-down through preferred lender with an acceptable offer.
The Hudson - This two-story home has everything a growing family needs to live peacefully. The first floor features a convenient study by the front door and an open layout among the main living area with a large covered back patio. The owner’s suite is also on the first floor, while on the second floor is host to three additional bedrooms, a full bathroom and a game room. Photos are for illustrative purposes only. Estimated Completion February 2026., Association Fee Includes: Common Area Maintenance, Interior Features: Double Vanity, Open Floorplan, Main Level Bedrooms: 1, Ownership Type: Common, Parking Features: Attached, View: Trees/Woods, Water Source: Public, Tax Rate: 2.21
Marti Realty Group, MLS 9608528
May also be listed on the Lennar website
Information last verified by Jome: Today at 12:40 PM (April 11, 2026)
Home highlights
Book your tour. Save an average of $18,473. We'll handle the rest.
We collect exclusive builder offers, book your tours, and support you from start to housewarming.
- Confirmed tours
- Get matched & compare top deals
- Expert help, no pressure
- No added fees
Estimated value based on Jome data, T&C apply
Home details
- Property status:
- Move-in ready
- Collection:
- Clayton Ranch: Classic
- Lot size (acres):
- 0.68
- Size:
- 2,467 sqft
- Stories:
- 2
- Beds:
- 4
- Baths:
- 2
- Half baths:
- 1
- Garage spaces:
- 2
- Fence:
- Wood Fence
- Facing direction:
- Southwest
Construction details
- Builder Name:
- Lennar
- Completion Date:
- February, 2026
- Year Built:
- 2026
- Roof:
- Composition Roofing
Home features & finishes
- Construction Materials:
- StuccoBrick
- Cooling:
- Central Air
- Flooring:
- Vinyl FlooringCarpet Flooring
- Foundation Details:
- Slab
- Garage/Parking:
- GarageAttached Garage
- Interior Features:
- Walk-In ClosetFoyerDouble Vanity
- Kitchen:
- DishwasherMicrowave OvenOvenRefrigeratorKitchen IslandKitchen Range
- Laundry facilities:
- DryerWasherUtility/Laundry Room
- Property amenities:
- PatioYardPorch
- Rooms:
- Primary Bedroom On MainKitchenPowder RoomGame RoomOffice/StudyDining RoomFamily RoomOpen Concept FloorplanPrimary Bedroom Downstairs

Get a consultation with our New Homes Expert
- See how your home builds wealth
- Plan your home-buying roadmap
- Discover hidden gems
Utility information
- Heating:
- Central Heating
- Sewer:
- Public Sewer
- Utilities:
- Electricity Available, Phone Available, Cable Available, Sewer Available, Water Available
- Water source:
- Public

Community details
Clayton Ranch
by Lennar, Copperas Cove, TX
- 8 homes
- 16 plans
- 1,564 - 2,467 sqft
View Clayton Ranch details
Community amenities
- Woods View
- Park Nearby
More homes in Clayton Ranch
- Home at address 738 Bobby Lou Ln, Copperas Cove, TX 76522

Home
$235,990
- 4 bd
- 2 ba
- 1,732 sqft
738 Bobby Lou Ln, Copperas Cove, TX 76522
- Home at address 742 Bobby Lou Ln, Copperas Cove, TX 76522

Home
$239,990
- 4 bd
- 2 ba
- 1,810 sqft
742 Bobby Lou Ln, Copperas Cove, TX 76522
- Home at address 126 Reed Henry Dr, Copperas Cove, TX 76522

Catesby
SavingsClayton Ranch: Classic
$280,990
- 4 bd
- 2 ba
- 1,895 sqft
126 Reed Henry Dr, Copperas Cove, TX 76522
- Home at address 418 Bobby Lou Ln, Copperas Cove, TX 76522

Hudson
Clayton Ranch: Classic
$315,000
- 4 bd
- 2.5 ba
- 2,467 sqft
418 Bobby Lou Ln, Copperas Cove, TX 76522
- Home at address 169 Reed Henry Dr, Copperas Cove, TX 76522

Springsteen
SavingsClayton Ranch: Classic Collection - 3 Car Garages
$319,990
- 4 bd
- 2 ba
- 2,014 sqft
169 Reed Henry Dr, Copperas Cove, TX 76522
- Home at address 130 Reed Henry Dr, Copperas Cove, TX 76522

Hudson
SavingsClayton Ranch: Classic
$326,990
- 4 bd
- 2.5 ba
- 2,467 sqft
130 Reed Henry Dr, Copperas Cove, TX 76522
Floor plans in Clayton Ranch
About the builder - Lennar

- 1,835communities on Jome
- 6,670homes on Jome
Neighborhood
Home address
- City:
- Copperas Cove
- County:
- Lampasas
- Zip Code:
- 76522
Schools in Lampasas Independent School District
GreatSchools’ Summary Rating calculation is based on 4 of the school’s themed ratings, including test scores, student/academic progress, college readiness, and equity. This information should only be used as a reference. Jome is not affiliated with GreatSchools and does not endorse or guarantee this information. Please reach out to schools directly to verify all information and enrollment eligibility. Data provided by GreatSchools.org © 2025
Places of interest
Getting around
Air quality

Considering this home?
Our expert will guide your tour, in-person or virtual
Need more information?
Text or call (888) 545-5198
Financials
Estimated monthly payment
Let us help you find your dream home
How many bedrooms are you looking for?
Similar homes nearby
Recently added communities in this area
Nearby communities in Copperas Cove
New homes in nearby cities
More New Homes in Copperas Cove, TX
Marti Realty Group, MLS 9608528
Based on information from the Austin Board of REALTORS® (alternatively, from ACTRIS) for the period through 08/13/2024. Neither the Board nor ACTRIS guarantees or is in any way responsible for its accuracy. All data is provided “AS IS” and with all faults. Data maintained by the Board or ACTRIS may not reflect all real estate activity in the market. Information being provided is for consumers’ personal, non-commercial use and may not be used for any purpose other than to identify prospective properties consumers may be interested in purchasing. The Digital Millennium Copyright Act of 1998, 17 U.S.C. § 512 (the “DMCA”) provides recourse for copyright owners who believe that material appearing on the Internet infringes their rights under U.S. copyright law. If you believe in good faith that any content or material made available in connection with our website or services infringes your copyright, you (or your agent) may send us a notice requesting that the content or material be removed, or access to it blocked. Notices must be sent in writing by email to DMCAnotice@MLSGrid.com. The DMCA requires that your notice of alleged copyright infringement include the following information: (1) description of the copyrighted work that is the subject of claimed infringement; (2) description of the alleged infringing content and information sufficient to permit us to locate the content; (3) contact information for you, including your address, telephone number and email address; (4) a statement by you that you have a good faith belief that the content in the manner complained of is not authorized by the copyright owner, or its agent, or by the operation of any law; (5) a statement by you, signed under penalty of perjury, that the information in the notification is accurate and that you have the authority to enforce the copyrights that are claimed to be infringed; and (6) a physical or electronic signature of the copyright owner or a person authorized to act on the copyright owner’s behalf. Failure to include all of the above information may result in the delay of the processing of your complaint.
Read moreLast checked Apr 11, 12:40 pm
- Jome
- New homes search
- Texas
- Lampasas County
- Copperas Cove
- Clayton Ranch
- Clayton Ranch: Classic
- 410 Bobby Lou Ln, Copperas Cove, TX 76522
































