




Book your tour. Save an average of $18,473. We'll handle the rest.
We collect exclusive builder offers, book your tours, and support you from start to housewarming.
- Confirmed tours
- Get matched & compare top deals
- Expert help, no pressure
- No added fees
Estimated value based on Jome data, T&C apply
Why tour with Jome?
- No pressure toursTour at your own pace with no sales pressure
- Expert guidanceGet insights from our home buying experts
- Exclusive accessSee homes and deals not available elsewhere
Jome is featured in
- Single-Family
- Quick move-in
- $207.21/sqft
- $1,080/annual HOA
Home description
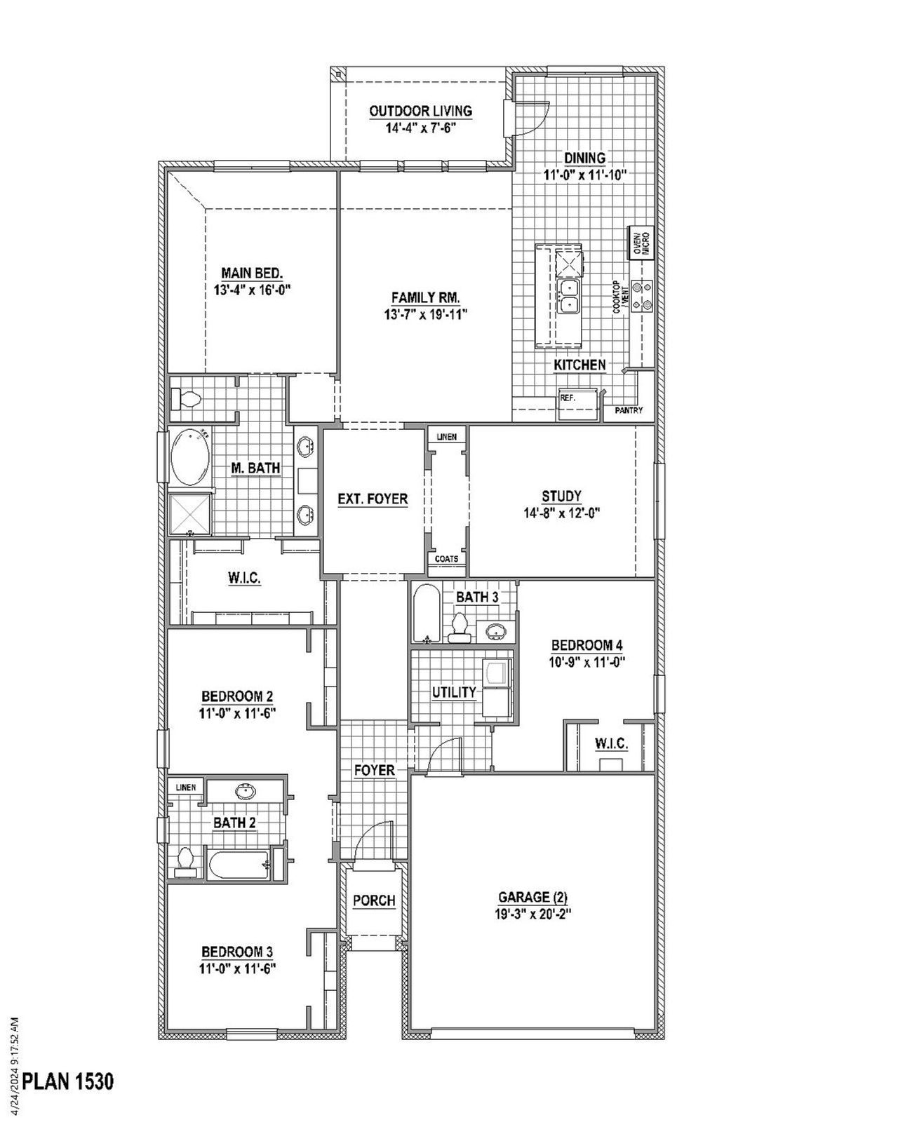
Looking for a home that has it all? Look no further! From the grand entryway to the open concept kitchen and family room, this will become a place to entertain family and friends. The gourmet kitchen features a 5-burner gas cooktop, built-in stainless steel appliances, eat-in island, beautiful quartz countertops and a spacious corner pantry. Create your workspace sanctuary in the sizeable study, conveniently close to the central living space. The generous great room features a cozy fireplace for those chilly evenings while the primary suite offers a vaulted ceiling, bay window, dual vanities, a separate shower, large walk-in closet and a luxurious soaker tub to relax after a long day! The covered outdoor living space will become your getaway. Additional features of this home include 8 foot doors throughout, wood-look tile floors, upgraded carpet and tile and more! Insulated doors and epoxy floors in the garage finish out this remarkable home. Don't miss this amazing opportunity! Easy freeway access to Fort Worth and DFW airport makes this a must-see home. Start making memories in your new American Legend home!
American Legend Homes, MLS 21207908
May also be listed on the American Legend Homes website
Information last verified by Jome: Today at 1:39 AM (March 17, 2026)
Home highlights
Book your tour. Save an average of $18,473. We'll handle the rest.
We collect exclusive builder offers, book your tours, and support you from start to housewarming.
- Confirmed tours
- Get matched & compare top deals
- Expert help, no pressure
- No added fees
Estimated value based on Jome data, T&C apply
Home details
- Property status:
- Move-in ready
- Collection:
- Reunion 50s
- Lot size (acres):
- 0.20
- Lot width (feet):
- 50
- Size:
- 2,413 sqft
- Stories:
- 1
- Beds:
- 4
- Baths:
- 3
- Garage spaces:
- 2
- Fence:
- Wood Fence
Construction details
- Builder Name:
- American Legend Homes
- Completion Date:
- February, 2026
- Year Built:
- 2026
- Roof:
- Roof Gutter, Composition Roofing
Home features & finishes
- Appliances:
- Sprinkler System
- Construction Materials:
- Brick
- Cooling:
- Ceiling Fan(s)Central Air
- Flooring:
- Ceramic FlooringWood FlooringCarpet FlooringTile FlooringHardwood Flooring
- Foundation Details:
- Slab
- Garage/Parking:
- Door OpenerGarageFront Entry Garage/ParkingAttached Garage
- Home amenities:
- Green Construction
- Interior Features:
- Ceiling-VaultedWalk-In ClosetDouble Vanity
- Kitchen:
- DishwasherMicrowave OvenDisposalGas CooktopKitchen IslandElectric Oven
- Laundry facilities:
- Utility/Laundry Room
- Lighting:
- LightingDecorative/Designer Lighting
- Property amenities:
- SidewalkBasementGas Log FireplaceLandscapingPatioPorch
- Rooms:
- Primary Bedroom On MainKitchenMedia RoomFamily RoomLiving RoomOpen Concept FloorplanPrimary Bedroom Downstairs
- Security system:
- Smoke DetectorCarbon Monoxide Detector

Get a consultation with our New Homes Expert
- See how your home builds wealth
- Plan your home-buying roadmap
- Discover hidden gems
Utility information
- Heating:
- Water Heater, Central Heating, Gas Heating, Tankless water heater
- Utilities:
- Underground Utilities, HVAC, High Speed Internet Access, Curbs

Community details
Reunion at Reunion
by American Legend Homes, Rhome, TX
- 9 homes
- 39 plans
- 1,802 - 3,438 sqft
View Reunion details
Community amenities
- Lake Access
- Club House
- Community Pool
- Park Nearby
- Fishing Pond
- Greenbelt View
- Walking, Jogging, Hike Or Bike Trails
More homes in Reunion
- Home at address 158 Sandie Dr, Rhome, TX 76078

Plan 1683
Reunion 60s
$494,990
- 4 bd
- 3.5 ba
- 2,671 sqft
158 Sandie Dr, Rhome, TX 76078
- Home at address 134 Sandie Dr, Rhome, TX 76078

Home
Reunion 60s
$519,900
- 4 bd
- 2.5 ba
- 2,813 sqft
134 Sandie Dr, Rhome, TX 76078
- Home at address 173 Buffalo Blvd, Rhome, TX 76078

1523
Reunion 60s
$556,330
- 4 bd
- 3 ba
- 2,399 sqft
173 Buffalo Blvd, Rhome, TX 76078
- Home at address 150 Longhorn Bnd, Rhome, TX 76078

1686
Reunion 60s
$564,990
- 4 bd
- 3 ba
- 3,257 sqft
150 Longhorn Bnd, Rhome, TX 76078
- Home at address 154 Longhorn Bnd, Rhome, TX 76078

1688
Reunion 60s
$564,990
- 4 bd
- 3 ba
- 2,656 sqft
154 Longhorn Bnd, Rhome, TX 76078
- Home at address 147 Derrett Ln, Rhome, TX 76078

1680
Reunion 60s
$624,305
- 4 bd
- 3.5 ba
- 3,091 sqft
147 Derrett Ln, Rhome, TX 76078
Floor plans in Reunion
About the builder - American Legend Homes
Neighborhood
Home address
Schools in Northwest Independent School District
- Grades PK-05Publicmolly livengood carter elementary5.2 mi14117 borealis drna
GreatSchools’ Summary Rating calculation is based on 4 of the school’s themed ratings, including test scores, student/academic progress, college readiness, and equity. This information should only be used as a reference. Jome is not affiliated with GreatSchools and does not endorse or guarantee this information. Please reach out to schools directly to verify all information and enrollment eligibility. Data provided by GreatSchools.org © 2025
Places of interest
Getting around
Air quality
Noise level
A Soundscore™ rating is a number between 50 (very loud) and 100 (very quiet) that tells you how loud a location is due to environmental noise.

Considering this home?
Our expert will guide your tour, in-person or virtual
Need more information?
Text or call (888) 545-5198
Financials
Estimated monthly payment
Let us help you find your dream home
How many bedrooms are you looking for?
Similar homes nearby
Recently added communities in this area
Nearby communities in Rhome
New homes in nearby cities
More New Homes in Rhome, TX
American Legend Homes, MLS 21207908
IDX information is provided exclusively for personal, non-commercial use, and may not be used for any purpose other than to identify prospective properties consumers may be interested in purchasing. You may not reproduce or redistribute this data, it is for viewing purposes only. This data is deemed reliable, but is not guaranteed accurate by the MLS or NTREIS.
Read moreLast checked Mar 17, 4:00 pm
- Jome
- New homes search
- Texas
- Dallas-Fort Worth Area
- Wise County
- Rhome
- Reunion
- Reunion 50s
- 180 Buffalo Blvd, Rhome, TX 76078































