














Book your tour. Save an average of $18,473. We'll handle the rest.
- Confirmed tours
- Get matched & compare top deals
- Expert help, no pressure
- No added fees
Estimated value based on Jome data, T&C apply

























- 4 bd
- 3 ba
- 1,942 sqft
21810 Yellow Pineapple Ln, Cypress, TX 77433
Why tour with Jome?
- No pressure toursTour at your own pace with no sales pressure
- Expert guidanceGet insights from our home buying experts
- Exclusive accessSee homes and deals not available elsewhere
Jome is featured in
- Single-Family
- Quick move-in
- $167.58/sqft
- $850/annual HOA
Home description
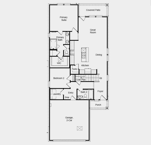
New Construction - Ready Now! Built by Taylor Morrison, America's Most Trusted Homebuilder. Welcome to The Juliet at 21810 Yellow Pineapple Lane in Mason Woods 40s. Crafted with intention and designed for harmony, the two-story Juliet floor plan offers 4 bedrooms and 3 full baths. Step through the front porch into a welcoming foyer with a full bathroom, laundry room, and drop zone to keep everything organized. At the heart of the home, the kitchen flows seamlessly into the dining area, great room, and covered patio. Tucked to one side, you'll find a cozy bedroom and the serene primary suite, offering privacy and comfort. Upstairs, two bedrooms share a bathroom alongside a spacious game room and a dedicated tech space ideal for work or study. Plus, Mason Woods is a community full of charm and convenience! MLS# 51263946
Alexander Properties, MLS 51263946
May also be listed on the Taylor Morrison website
Information last verified by Jome: Today at 8:50 PM (January 20, 2026)
Book your tour. Save an average of $18,473. We'll handle the rest.
We collect exclusive builder offers, book your tours, and support you from start to housewarming.
- Confirmed tours
- Get matched & compare top deals
- Expert help, no pressure
- No added fees
Estimated value based on Jome data, T&C apply
Home details
- Property status:
- Move-in ready
- Lot size (acres):
- 0.11
- Size:
- 1,942 sqft
- Stories:
- 2
- Beds:
- 4
- Baths:
- 3
- Garage spaces:
- 2
- Fence:
- Partial Fence
- Facing direction:
- North
Construction details
- Builder Name:
- Taylor Morrison
- Completion Date:
- January, 2026
- Year Built:
- 2025
- Roof:
- Composition Roofing
Home features & finishes
- Appliances:
- Sprinkler System
- Construction Materials:
- Brick
- Flooring:
- Vinyl FlooringCarpet Flooring
- Foundation Details:
- Slab
- Garage/Parking:
- GarageAttached Garage
- Home amenities:
- Green Construction
- Interior Features:
- Wired For SecurityWalk-In ClosetPantryWalk-In Pantry
- Kitchen:
- DishwasherMicrowave OvenOvenDisposalGas CooktopKitchen IslandElectric Oven
- Laundry facilities:
- DryerWasher
- Property amenities:
- Tech SpacePatio
- Rooms:
- KitchenGame RoomDining Room

Get a consultation with our New Homes Expert
- See how your home builds wealth
- Plan your home-buying roadmap
- Discover hidden gems
Utility information
- Heating:
- Water Heater, Gas Heating

Community details
Mason Woods 40s
by Taylor Morrison, Cypress, TX
- 8 homes
- 7 plans
- 1,366 - 2,236 sqft
View Mason Woods 40s details
More homes in Mason Woods 40s
- Home at address 21815 Coral Mist Dr, Cypress, TX 77433

Dylan
$314,890
- 4 bd
- 2 ba
- 1,675 sqft
21815 Coral Mist Dr, Cypress, TX 77433
- Home at address 8102 Magnolia Prairie Ln, Cypress, TX 77433

Dylan
$328,890
- 4 bd
- 2 ba
- 1,675 sqft
8102 Magnolia Prairie Ln, Cypress, TX 77433
- Home at address 21703 Heather Elm Dr, Cypress, TX 77433

Home
$339,000
- 4 bd
- 2.5 ba
- 1,760 sqft
21703 Heather Elm Dr, Cypress, TX 77433
- Home at address 8043 Orchid Greenery Dr, Cypress, TX 77433

Nolan
$341,690
- 4 bd
- 2.5 ba
- 2,203 sqft
8043 Orchid Greenery Dr, Cypress, TX 77433
Floor plans in Mason Woods 40s
About the builder - Taylor Morrison

- 259communities on Jome
- 1,416homes on Jome
Neighborhood
Home address
Schools in Cypress-Fairbanks Independent School District
GreatSchools’ Summary Rating calculation is based on 4 of the school’s themed ratings, including test scores, student/academic progress, college readiness, and equity. This information should only be used as a reference. Jome is not affiliated with GreatSchools and does not endorse or guarantee this information. Please reach out to schools directly to verify all information and enrollment eligibility. Data provided by GreatSchools.org © 2025
Places of interest
Getting around
Air quality

Considering this home?
Our expert will guide your tour, in-person or virtual
Need more information?
Text or call (888) 486-2818
Financials
Estimated monthly payment
Let us help you find your dream home
How many bedrooms are you looking for?
Similar homes nearby
Recently added communities in this area
Nearby communities in Cypress
New homes in nearby cities
More New Homes in Cypress, TX
Alexander Properties, MLS 51263946
Copyright © 2025, Houston Realtors Information Service, Inc. The information provided is exclusively for consumers’ personal, non-commercial use, and may not be used for any purpose other than to identify prospective properties consumers may be interested in purchasing. Information is deemed reliable but not guaranteed. All information provided should be independently verified.
Read moreLast checked Jan 20, 8:50 pm
- Jome
- New homes search
- Texas
- Greater Houston Area
- Harris County
- Cypress
- Mason Woods 40s
- 21810 Yellow Pineapple Ln, Cypress, TX 77433




























