








Book your tour. Save an average of $18,473. We'll handle the rest.
We collect exclusive builder offers, book your tours, and support you from start to housewarming.
- Confirmed tours
- Get matched & compare top deals
- Expert help, no pressure
- No added fees
Estimated value based on Jome data, T&C apply















Why tour with Jome?
- No pressure toursTour at your own pace with no sales pressure
- Expert guidanceGet insights from our home buying experts
- Exclusive accessSee homes and deals not available elsewhere
Jome is featured in
- Single-Family
- Quick move-in
- $304.51/sqft
- $1,400/annual HOA
Home description
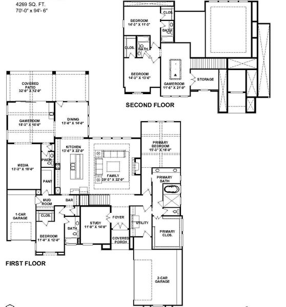
NEW CONSTRUCTION WITH PARTNERS IN BUILDING! Beautiful two-story home featuring an open-concept layout, high ceilings, and bright living spaces. The first floor includes a spacious family room, gourmet kitchen with large island, dining area, private study, bar, game room and a luxurious primary suite with spa-style bath and oversized closet. A secondary bedroom with full bath is also conveniently located downstairs. Upstairs offers two additional bedrooms, two full baths, and a second game room. Enjoy outdoor living on the large, covered patio. A 3-car garage, mud room, and generous storage throughout complete this well-designed home—perfect for everyday living and entertaining. Located within a new community Legacy by Hillwood, residents enjoy access to scenic lakes, green spaces, trails, lap & resort-style pools and other community amenities — combining the comforts of home with the benefits of thoughtful neighborhood living. POOL NOT INLCUDED IN PRICE.
Partners In Building, MLS 51349479
May also be listed on the Partners in Building website
Information last verified by Jome: Today at 2:31 AM (April 24, 2026)
Book your tour. Save an average of $18,473. We'll handle the rest.
We collect exclusive builder offers, book your tours, and support you from start to housewarming.
- Confirmed tours
- Get matched & compare top deals
- Expert help, no pressure
- No added fees
Estimated value based on Jome data, T&C apply
Home details
- Property status:
- Move-in ready
- Lot size (acres):
- 0.25
- Size:
- 4,269 sqft
- Stories:
- 2
- Beds:
- 4
- Baths:
- 4
- Half baths:
- 1
- Garage spaces:
- 3
- Facing direction:
- North
Construction details
- Builder Name:
- Partners in Building
- Year Built:
- 2026
- Roof:
- Metal Roofing, Composition Roofing
Home features & finishes
- Appliances:
- Sprinkler System
- Construction Materials:
- StuccoStone
- Cooling:
- Ceiling Fan(s)
- Flooring:
- Wood FlooringTile Flooring
- Foundation Details:
- Slab
- Garage/Parking:
- GarageAttached Garage
- Home amenities:
- Green Construction
- Interior Features:
- Ceiling-HighWalk-In ClosetFoyerPantryStorageWalk-In Pantry
- Kitchen:
- DishwasherMicrowave OvenOvenDisposalConvection OvenKitchen IslandDouble Oven
- Laundry facilities:
- DryerWasherUtility/Laundry Room
- Lighting:
- Lighting
- Property amenities:
- Gas Log FireplaceCabinetsPatioFireplacePorch
- Rooms:
- Primary Bedroom On MainKitchenGame RoomOffice/StudyMudroomDining RoomFamily RoomOpen Concept FloorplanPrimary Bedroom Downstairs

Get a consultation with our New Homes Expert
- See how your home builds wealth
- Plan your home-buying roadmap
- Discover hidden gems
Utility information
- Heating:
- Gas Heating
- Sewer:
- Public Sewer
- Utilities:
- HVAC
- Water source:
- Public

Community details
Legacy at Legacy
by Partners in Building, Friendswood, TX
- 4 homes
- 3,378 - 4,684 sqft
View Legacy details
More homes in Legacy
- Home at address 725 Stable Sands Wy, League City, TX 77573

Home
$1,099,950
- 4 bd
- 4.5 ba
- 3,378 sqft
725 Stable Sands Wy, League City, TX 77573
- Home at address 821 Stable Sands Wy, League City, TX 77573

Home
$1,349,950
- 5 bd
- 5.5 ba
- 4,541 sqft
821 Stable Sands Wy, League City, TX 77573
- Home at address 646 Barrel Oak Dr, Friendswood, TX 77546

Plan 16419
Contact for price
- 4 bd
- 5 ba
- 4,684 sqft
646 Barrel Oak Dr, Friendswood, TX 77546
About the builder - Partners in Building
Neighborhood
Home address
- City:
- League City
- County:
- Galveston
- Zip Code:
- 77573
Schools in Clear Creek Independent School District
GreatSchools’ Summary Rating calculation is based on 4 of the school’s themed ratings, including test scores, student/academic progress, college readiness, and equity. This information should only be used as a reference. Jome is not affiliated with GreatSchools and does not endorse or guarantee this information. Please reach out to schools directly to verify all information and enrollment eligibility. Data provided by GreatSchools.org © 2025
Places of interest
Getting around
Air quality

Considering this home?
Our expert will guide your tour, in-person or virtual
Need more information?
Text or call (888) 545-5198
Financials
Estimated monthly payment
Let us help you find your dream home
How many bedrooms are you looking for?
Similar homes nearby
Recently added communities in this area
Nearby communities in League City
New homes in nearby cities
More New Homes in League City, TX
Partners In Building, MLS 51349479
Copyright © 2025, Houston Realtors Information Service, Inc. The information provided is exclusively for consumers’ personal, non-commercial use, and may not be used for any purpose other than to identify prospective properties consumers may be interested in purchasing. Information is deemed reliable but not guaranteed. All information provided should be independently verified.
Read moreLast checked Apr 24, 2:50 pm
- Jome
- New homes search
- Texas
- Greater Houston Area
- Galveston County
- League City
- Legacy
- 825 Stable Sands Wy, League City, TX 77573

























