














Book your tour. Save an average of $18,473. We'll handle the rest.
- Confirmed tours
- Get matched & compare top deals
- Expert help, no pressure
- No added fees
Estimated value based on Jome data, T&C apply

















Why tour with Jome?
- No pressure toursTour at your own pace with no sales pressure
- Expert guidanceGet insights from our home buying experts
- Exclusive accessSee homes and deals not available elsewhere
Jome is featured in
- Single-Family
- Quick move-in
- $183.48/sqft
- $130/annual HOA
Home description
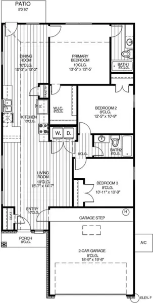
Check out the 3D Virtual Tour – This home is located on an oversized lot on a quiet cul-de-sac , this home truly checks all the boxes. The Bluebonnet design by Home Creations offers incredible space, comfort, and craftsmanship. The exterior bursts with character, while inside you’ll find a massive living area and a chef-inspired kitchen with generous countertop space and storage galore. Each bedroom is spacious, creating comfort for everyone. Built to last with hurricane safety features, tankless water heater, designer finishes, and finished garage with opener, — this home is loaded with value. Don’t wait for the holidays to pass you by, start celebrating in your new home this season! Opportunities like this don’t come often. Tour today and make your move before the holidays arrive!
The Manning Group, MLS 25328389
May also be listed on the Home Creations website
Information last verified by Jome: Today at 2:37 AM (December 6, 2025)
Home highlights
Book your tour. Save an average of $18,473. We'll handle the rest.
We collect exclusive builder offers, book your tours, and support you from start to housewarming.
- Confirmed tours
- Get matched & compare top deals
- Expert help, no pressure
- No added fees
Estimated value based on Jome data, T&C apply
Home details
- Property status:
- Move-in ready
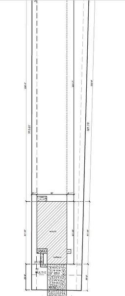
- Lot size (acres):
- 0.38
- Size:
- 1,308 sqft
- Stories:
- 1
- Beds:
- 3
- Baths:
- 2
- Garage spaces:
- 2
Construction details
- Builder Name:
- Home Creations
- Year Built:
- 2025
- Roof:
- Composition Roofing
Home features & finishes
- Construction Materials:
- BrickWood Siding
- Cooling:
- Ceiling Fan(s)
- Flooring:
- Vinyl FlooringCarpet Flooring
- Foundation Details:
- Slab
- Garage/Parking:
- GarageAttached Garage
- Home amenities:
- Green Construction
- Interior Features:
- Ceiling-HighWalk-In Closet
- Kitchen:
- Range-Free StandingDishwasherMicrowave OvenKitchen RangeElectric Oven
- Laundry facilities:
- DryerWasher
- Lighting:
- Lighting
- Property amenities:
- BackyardCabinetsPorch
- Rooms:
- Primary Bedroom On MainKitchenPrimary Bedroom Downstairs
Utility information
- Heating:
- Electric Heating, Water Heater
- Utilities:
- HVAC

Community details
Santa Fe at Santa Fe
by Home Creations, Cleveland, TX
- 13 homes
- 11 plans
- 1,249 - 1,868 sqft
View Santa Fe details
Community amenities
- Energy Efficient
More homes in Santa Fe
Floor plans in Santa Fe
About the builder - Home Creations
Neighborhood
Home address
Schools in Cleveland Independent School District
GreatSchools’ Summary Rating calculation is based on 4 of the school’s themed ratings, including test scores, student/academic progress, college readiness, and equity. This information should only be used as a reference. Jome is not affiliated with GreatSchools and does not endorse or guarantee this information. Please reach out to schools directly to verify all information and enrollment eligibility. Data provided by GreatSchools.org © 2025
Places of interest
Getting around
Air quality
Natural hazards risk
Climate hazards can impact homes and communities, with risks varying by location. These scores reflect the potential impact of natural disasters and climate-related risks on Liberty County
Provided by FEMA

Considering this home?
Our expert will guide your tour, in-person or virtual
Need more information?
Text or call (888) 486-2818
Financials
Estimated monthly payment
Similar homes nearby
Recently added communities in this area
Nearby communities in Cleveland
New homes in nearby cities
More New Homes in Cleveland, TX
The Manning Group, MLS 25328389
Copyright © 2025, Houston Realtors Information Service, Inc. The information provided is exclusively for consumers’ personal, non-commercial use, and may not be used for any purpose other than to identify prospective properties consumers may be interested in purchasing. Information is deemed reliable but not guaranteed. All information provided should be independently verified.
Read moreLast checked Dec 6, 2:50 pm
- Home
- New homes
- Texas
- Greater Houston Area
- Liberty County
- Cleveland
- Santa Fe
- 176 Rd 5102L, Cleveland, TX 77327








































