














Book your tour. Save an average of $18,473. We'll handle the rest.
We collect exclusive builder offers, book your tours, and support you from start to housewarming.
- Confirmed tours
- Get matched & compare top deals
- Expert help, no pressure
- No added fees
Estimated value based on Jome data, T&C apply






















- 5 bd
- 4 ba
- 3,516 sqft
6603 Allens Lndg, Needville, TX 77461
Why tour with Jome?
- No pressure toursTour at your own pace with no sales pressure
- Expert guidanceGet insights from our home buying experts
- Exclusive accessSee homes and deals not available elsewhere
Jome is featured in
- Single-Family
- Quick move-in
- $163.39/sqft
- $400/annual HOA
Home description
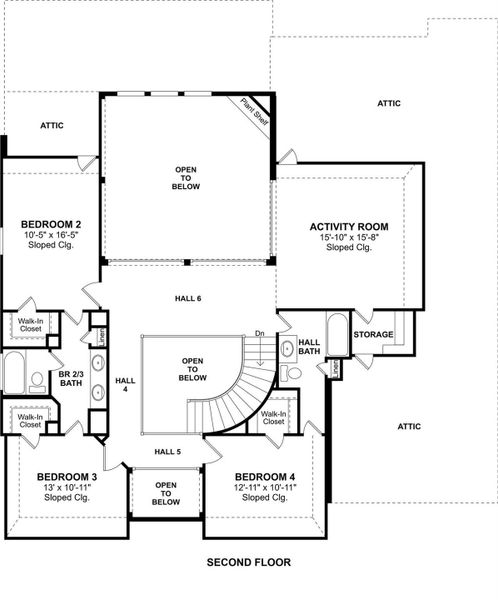
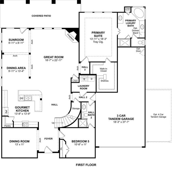
Discover this beautiful two-story Millie home in Tejas Landing, located on an oversized cul-de-sac lot with 5 beds, 4 baths, and 3-car tandem garage. Enjoy a luxurious lifestyle in this home, centered around a gourmet kitchen with designer cabinetry and large corner island. The spacious great room features a cozy fireplace, complementing a separate formal dining room for entertaining. A bright sunroom provides access to the large covered patio. The lavish primary suite and bath include a generous walk-in closet. Added flexibility comes from an additional bedroom with a full bath on the 1st floor and a versatile activity room upstairs is perfect for entertaining. Schedule a showing today and experience the true essence of luxurious living. Come home to Tejas Landing! Tranquil country living close to the excitement of the city with popular shopping, dining and entertainment. Zoned to the acclaimed Needville ISD with easy access to US 59/99. Offered by: K. Hovnanian of Houston II, LLC.
K. Hovnanian Homes, MLS 62914347
May also be listed on the K. Hovnanian® Homes website
Information last verified by Jome: Today at 2:36 AM (March 17, 2026)
Book your tour. Save an average of $18,473. We'll handle the rest.
We collect exclusive builder offers, book your tours, and support you from start to housewarming.
- Confirmed tours
- Get matched & compare top deals
- Expert help, no pressure
- No added fees
Estimated value based on Jome data, T&C apply
Home details
- Property status:
- Move-in ready
- Lot size (acres):
- 0.58
- Size:
- 3,516 sqft
- Stories:
- 2
- Beds:
- 5
- Baths:
- 4
- Garage spaces:
- 3
- Facing direction:
- Southwest
Construction details
- Builder Name:
- K. Hovnanian® Homes
- Completion Date:
- February, 2026
- Year Built:
- 2025
- Roof:
- Composition Roofing
Home features & finishes
- Construction Materials:
- CementBrickStone
- Cooling:
- Ceiling Fan(s)
- Flooring:
- Carpet FlooringTile Flooring
- Foundation Details:
- Slab
- Garage/Parking:
- GarageAttached GarageTandem Parking
- Home amenities:
- Green Construction
- Interior Features:
- Ceiling-HighWired For SecurityWalk-In ClosetFoyerWalk-In PantryStaircases
- Kitchen:
- DishwasherMicrowave OvenOvenDisposalGas CooktopConvection OvenKitchen IslandGas Oven
- Laundry facilities:
- DryerWasherUtility/Laundry Room
- Property amenities:
- Cul-de-sacGas Log FireplaceBackyardPatioFireplacePorch
- Rooms:
- Sun RoomPrimary Bedroom On MainKitchenGame RoomOffice/StudyDining RoomFamily RoomBreakfast AreaOpen Concept FloorplanPrimary Bedroom Downstairs

Get a consultation with our New Homes Expert
- See how your home builds wealth
- Plan your home-buying roadmap
- Discover hidden gems
Utility information
- Heating:
- Gas Heating
- Utilities:
- HVAC

Community details
Tejas Landing
by K. Hovnanian® Homes, Needville, TX
- 9 homes
- 10 plans
- 2,341 - 3,567 sqft
View Tejas Landing details
More homes in Tejas Landing
- Home at address 6714 Allens Lndg, Needville, TX 77461

Walden
$439,500
- 4 bd
- 3 ba
- 2,341 sqft
6714 Allens Lndg, Needville, TX 77461
- Home at address 6615 Allens Lndg, Needville, TX 77461

Cooperfield
$460,000
- 4 bd
- 3 ba
- 2,564 sqft
6615 Allens Lndg, Needville, TX 77461
- Home at address 6703 Allens Lndg, Needville, TX 77461

Samuel
$460,606
- 4 bd
- 2.5 ba
- 2,811 sqft
6703 Allens Lndg, Needville, TX 77461
- Home at address 6619 Allens Lndg, Needville, TX 77461

Margaret
$499,600
- 4 bd
- 3 ba
- 2,931 sqft
6619 Allens Lndg, Needville, TX 77461
- Home at address 6915 Nichols Lndg, Needville, TX 77461

Arthur
$504,590
- 4 bd
- 3.5 ba
- 3,346 sqft
6915 Nichols Lndg, Needville, TX 77461
- Home at address 6611 Allens Lndg, Needville, TX 77461

Elaine
$509,481
- 4 bd
- 3 ba
- 3,152 sqft
6611 Allens Lndg, Needville, TX 77461
Floor plans in Tejas Landing
About the builder - K. Hovnanian® Homes
Neighborhood
Home address
Schools in Needville Independent School District
GreatSchools’ Summary Rating calculation is based on 4 of the school’s themed ratings, including test scores, student/academic progress, college readiness, and equity. This information should only be used as a reference. Jome is not affiliated with GreatSchools and does not endorse or guarantee this information. Please reach out to schools directly to verify all information and enrollment eligibility. Data provided by GreatSchools.org © 2025
Places of interest
Getting around
Air quality

Considering this home?
Our expert will guide your tour, in-person or virtual
Need more information?
Text or call (888) 545-5198
Financials
Estimated monthly payment
Let us help you find your dream home
How many bedrooms are you looking for?
Similar homes nearby
Recently added communities in this area
Nearby communities in Needville
New homes in nearby cities
More New Homes in Needville, TX
K. Hovnanian Homes, MLS 62914347
Copyright © 2025, Houston Realtors Information Service, Inc. The information provided is exclusively for consumers’ personal, non-commercial use, and may not be used for any purpose other than to identify prospective properties consumers may be interested in purchasing. Information is deemed reliable but not guaranteed. All information provided should be independently verified.
Read moreLast checked Mar 17, 8:50 am
- Jome
- New homes search
- Texas
- Greater Houston Area
- Fort Bend County
- Needville
- Tejas Landing
- 6603 Allens Lndg, Needville, TX 77461




























