














Book your tour. Save an average of $18,473. We'll handle the rest.
- Confirmed tours
- Get matched & compare top deals
- Expert help, no pressure
- No added fees
Estimated value based on Jome data, T&C apply











Why tour with Jome?
- No pressure toursTour at your own pace with no sales pressure
- Expert guidanceGet insights from our home buying experts
- Exclusive accessSee homes and deals not available elsewhere
Jome is featured in
- Single-Family
- $139.86/sqft
- $800/annual HOA
- North facing
Home description
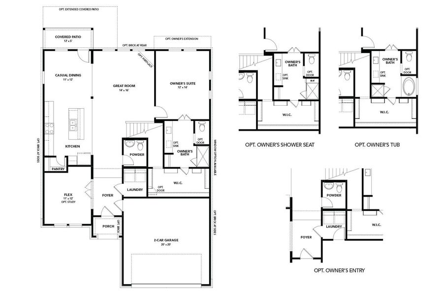
Live the ultimate resort-style lifestyle at Sunterra in Katy, TX, a master-planned community offering unparalleled amenities and scenic beauty! With a lazy river, resort-style pool, and the future Crystal Lagoon, residents enjoy endless recreation, all just moments from top-rated schools, shopping, and dining. This stunning NEW construction Southfork plan offers 4 bedrooms, 2.5 baths, a flexible bonus space, and a spacious upstairs game room. Designed for easy entertaining, the kitchen seamlessly connects to the breakfast nook and living area. It features stainless steel appliances, custom cabinetry, and gorgeous omega stone countertops. Laminate flooring enhances the main areas, with durable tile in all wet spaces. The generous primary suite includes a walk-in shower, expansive closet, and dual vanities. Step outside to a beautiful backyard complete with full sod, a sprinkler system, and a covered patio. Home is under construction and will be ready December 2025!
BrightLand Homes Brokerage, MLS 20720748
May also be listed on the DRB Homes website
Information last verified by Jome: Today at 2:33 AM (December 7, 2025)
Home highlights
Major Houston business hub home to energy giants, top jobs, and master-planned communities with greenbelt access.
Book your tour. Save an average of $18,473. We'll handle the rest.
We collect exclusive builder offers, book your tours, and support you from start to housewarming.
- Confirmed tours
- Get matched & compare top deals
- Expert help, no pressure
- No added fees
Estimated value based on Jome data, T&C apply
Home details
- Property status:
- Pending/Under contract
- Lot size (acres):
- 0.14
- Size:
- 2,431 sqft
- Stories:
- 2
- Beds:
- 4
- Baths:
- 2
- Half baths:
- 1
- Garage spaces:
- 2
- Facing direction:
- North
Construction details
- Builder Name:
- DRB Homes
- Completion Date:
- December, 2025
- Year Built:
- 2025
- Roof:
- Composition Roofing
Home features & finishes
- Appliances:
- Sprinkler System
- Construction Materials:
- StuccoCementBrickWood Siding
- Cooling:
- Ceiling Fan(s)
- Flooring:
- Laminate FlooringCarpet FlooringTile Flooring
- Foundation Details:
- Slab
- Garage/Parking:
- GarageAttached Garage
- Home amenities:
- Green Construction
- Interior Features:
- Ceiling-HighWired For SecurityWalk-In ClosetFoyerPantryWalk-In Pantry
- Kitchen:
- DishwasherMicrowave OvenOvenDisposalGas CooktopKitchen IslandGas OvenKitchen Range
- Laundry facilities:
- DryerWasherUtility/Laundry Room
- Lighting:
- Lighting
- Property amenities:
- BackyardPatioPorch
- Rooms:
- Flex RoomKitchenGame RoomFamily RoomBreakfast Area
Utility information
- Heating:
- Gas Heating
- Utilities:
- HVAC

Community details
Sunterra at Sunterra
by DRB Homes, Katy, TX
- 5 homes
- 17 plans
- 1,590 - 3,050 sqft
View Sunterra details
More homes in Sunterra
Floor plans in Sunterra
About the builder - DRB Homes
Neighborhood
Home address
Schools in Royal Independent School District
- Grades PK-01Privateredeemers learning center4.9 mi5371 e 5th stna
- Grades PK-KGPrivatesafari kids learning center5.9 mi24936 katy ranch rdna
GreatSchools’ Summary Rating calculation is based on 4 of the school’s themed ratings, including test scores, student/academic progress, college readiness, and equity. This information should only be used as a reference. Jome is not affiliated with GreatSchools and does not endorse or guarantee this information. Please reach out to schools directly to verify all information and enrollment eligibility. Data provided by GreatSchools.org © 2025
Places of interest
Getting around
Air quality
Natural hazards risk
Climate hazards can impact homes and communities, with risks varying by location. These scores reflect the potential impact of natural disasters and climate-related risks on Waller County
Provided by FEMA

Considering this home?
Our expert will guide your tour, in-person or virtual
Need more information?
Text or call (888) 486-2818
Financials
Estimated monthly payment
Similar homes nearby
Recently added communities in this area
Nearby communities in Katy
New homes in nearby cities
More New Homes in Katy, TX
BrightLand Homes Brokerage, MLS 20720748
Copyright © 2025, Houston Realtors Information Service, Inc. The information provided is exclusively for consumers’ personal, non-commercial use, and may not be used for any purpose other than to identify prospective properties consumers may be interested in purchasing. Information is deemed reliable but not guaranteed. All information provided should be independently verified.
Read moreLast checked Dec 7, 8:50 am
- Home
- New homes
- Texas
- Greater Houston Area
- Waller County
- Katy
- Sunterra
- 4745 Peony Green Dr, Katy, TX 77493








































