













Book your tour. Save an average of $18,473. We'll handle the rest.
- Confirmed tours
- Get matched & compare top deals
- Expert help, no pressure
- No added fees
Estimated value based on Jome data, T&C apply





Why tour with Jome?
- No pressure toursTour at your own pace with no sales pressure
- Expert guidanceGet insights from our home buying experts
- Exclusive accessSee homes and deals not available elsewhere
Jome is featured in
- Single-Family
- Quick move-in
- $185.57/sqft
- $1,200/annual HOA
Home description
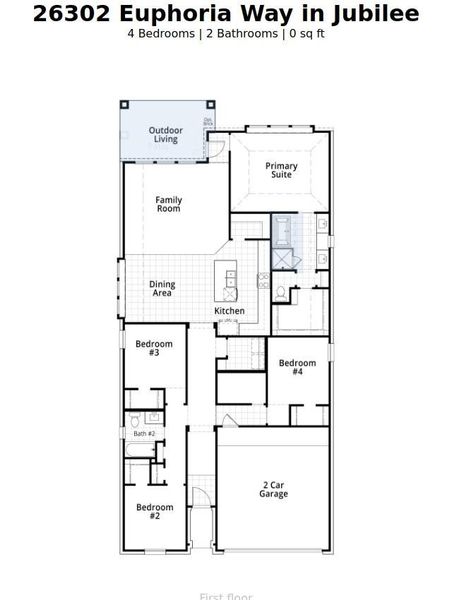
Located in Jubilee, first ever Wellness Community in Texas! The Bentley floor plan features 11ft. ceilings and a spacious open layout. The island kitchen has a large single basin sink, quartz counters, 5pc stainless steel appliances, and painted cabinets offering plenty of storage space! Wood look luxury laminate floors included in all main areas. Primary suite sits in the back of the home with tiled garden tub and separate shower, dual sinks and a spacious walk-in closet! This beautiful home offers an oversized outdoor covered patio! SMART HOME PACKAGE, tankless water heater, circadian rhythm lighting, full gutters and full sprinkler system are all included.
Highland Homes Realty, MLS 25336072
May also be listed on the Highland Homes website
Information last verified by Jome: Today at 2:50 PM (December 6, 2025)
Home highlights
Major Houston business hub home to energy giants, top jobs, and master-planned communities with greenbelt access.
Book your tour. Save an average of $18,473. We'll handle the rest.
We collect exclusive builder offers, book your tours, and support you from start to housewarming.
- Confirmed tours
- Get matched & compare top deals
- Expert help, no pressure
- No added fees
Estimated value based on Jome data, T&C apply
Home details
- Property status:
- Move-in ready
- Lot size (acres):
- 0.12
- Lot width (feet):
- 40
- Size:
- 1,940 sqft
- Stories:
- 1
- Beds:
- 4
- Baths:
- 2
- Garage spaces:
- 2
- Facing direction:
- Southwest
Construction details
- Builder Name:
- Highland Homes
- Year Built:
- 2025
- Roof:
- Composition Roofing
Home features & finishes
- Appliances:
- Sprinkler System
- Construction Materials:
- Brick
- Flooring:
- Vinyl FlooringCarpet FlooringTile Flooring
- Foundation Details:
- Slab
- Garage/Parking:
- GarageAttached Garage
- Interior Features:
- Ceiling-HighPantry
- Kitchen:
- DishwasherMicrowave OvenDisposalGas Cooktop
- Laundry facilities:
- DryerWasher
- Property amenities:
- Backyard
- Rooms:
- Primary Bedroom On MainPrimary Bedroom Downstairs
Utility information
- Heating:
- Gas Heating

Community details
Jubilee: 40ft. lots at Jubilee
by Highland Homes, Hockley, TX
- 4 homes
- 13 plans
- 1,550 - 2,594 sqft
View Jubilee: 40ft. lots details
More homes in Jubilee: 40ft. lots
Floor plans in Jubilee: 40ft. lots
About the builder - Highland Homes
Neighborhood
Home address
Schools in Waller Independent School District
- Grades M-MPublicwaller j j a e p6.3 mi1918 key stna
GreatSchools’ Summary Rating calculation is based on 4 of the school’s themed ratings, including test scores, student/academic progress, college readiness, and equity. This information should only be used as a reference. Jome is not affiliated with GreatSchools and does not endorse or guarantee this information. Please reach out to schools directly to verify all information and enrollment eligibility. Data provided by GreatSchools.org © 2025
Places of interest
Getting around
Air quality
Natural hazards risk
Climate hazards can impact homes and communities, with risks varying by location. These scores reflect the potential impact of natural disasters and climate-related risks on Harris County
Provided by FEMA

Considering this home?
Our expert will guide your tour, in-person or virtual
Need more information?
Text or call (888) 486-2818
Financials
Estimated monthly payment
Similar homes nearby
Recently added communities in this area
Nearby communities in Hockley
New homes in nearby cities
More New Homes in Hockley, TX
Highland Homes Realty, MLS 25336072
Copyright © 2025, Houston Realtors Information Service, Inc. The information provided is exclusively for consumers’ personal, non-commercial use, and may not be used for any purpose other than to identify prospective properties consumers may be interested in purchasing. Information is deemed reliable but not guaranteed. All information provided should be independently verified.
Read moreLast checked Dec 6, 2:50 pm
- Home
- New homes
- Texas
- Greater Houston Area
- Harris County
- Hockley
- Jubilee: 40ft. lots
- 26302 Euphoria Wy, Hockley, TX 77447





























