








Book your tour. Save an average of $18,473. We'll handle the rest.
We collect exclusive builder offers, book your tours, and support you from start to housewarming.
- Confirmed tours
- Get matched & compare top deals
- Expert help, no pressure
- No added fees
Estimated value based on Jome data, T&C apply












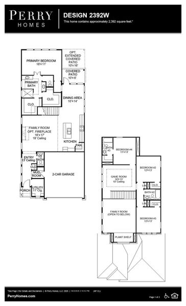
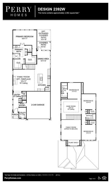
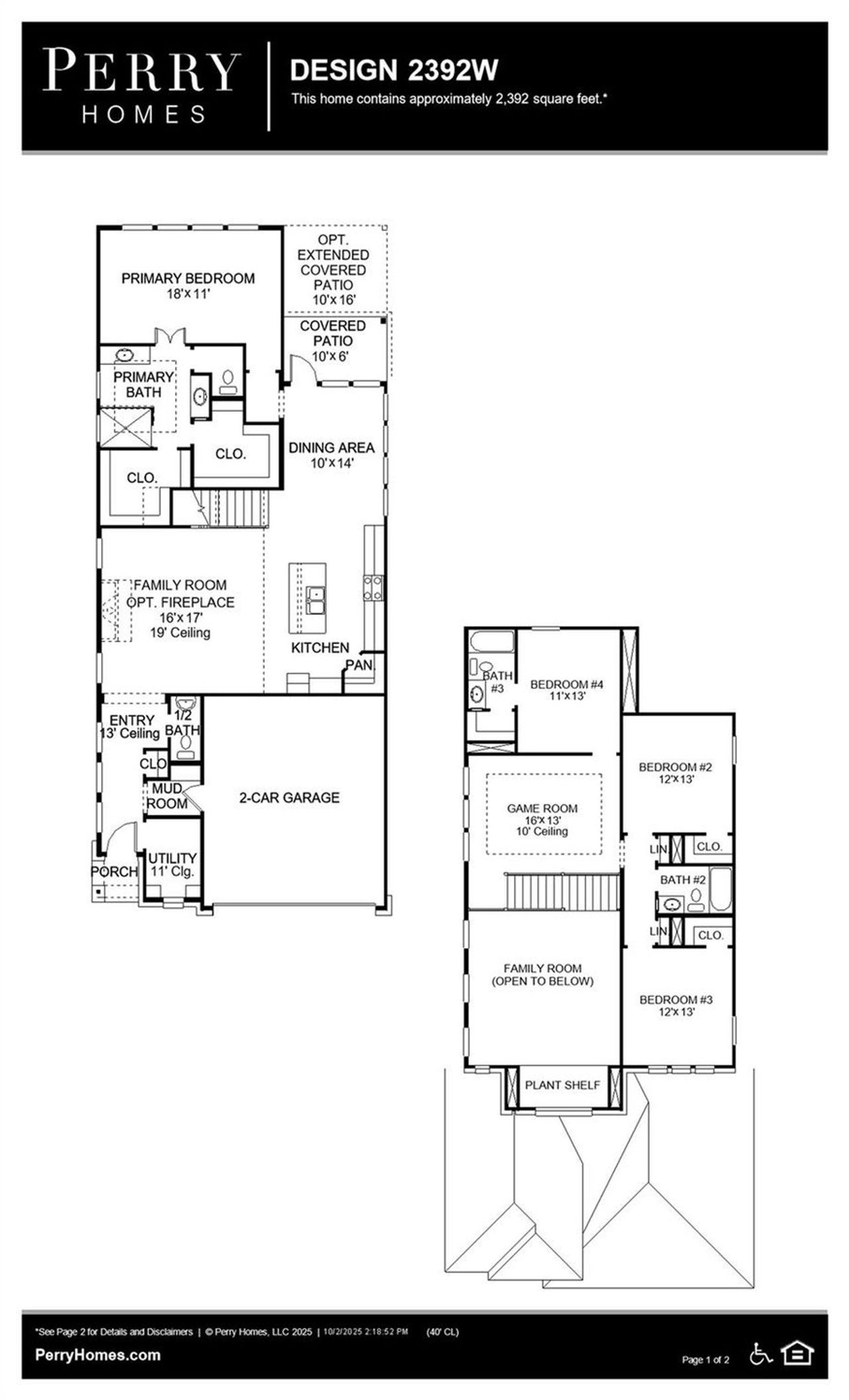
- 4 bd
- 3.5 ba
- 2,392 sqft
5047 Cedar Sage Dr, Rosenberg, TX 77471
Why tour with Jome?
- No pressure toursTour at your own pace with no sales pressure
- Expert guidanceGet insights from our home buying experts
- Exclusive accessSee homes and deals not available elsewhere
Jome is featured in
- Single-Family
- $156.73/sqft
- $1,200/annual HOA
- Northwest facing
Home description
Step through the front entrance and you'll find a spacious entryway adorned with three large windows allowing natural light to illuminate the space. Located right off the front entrance is the utility room. As you proceed into the family room, you'll be captivated by the 19-ft ceilings. The corner kitchen features an island with built-in seating, 5-burner gas cooktop and a walk-in pantry. The adjacent dining area is bathed in natural light from the corner wall of windows. Enter the private primary suite, where a wall of windows welcomes you filling the room with natural light. French doors lead you to the primary bath, which offers dual vanities, a spacious glass-enclosed shower, and two oversized walk-in closets. On the second floor, you'll discover an open game room. The secondary bedrooms feature walk-in closets, separate linen closets, and share a full bathroom. Outside is an extended covered backyard patio. Completing the floor plan is a mud room located just off the 2-car garage.
Perry Homes Realty, LLC, MLS 10254542
May also be listed on the Perry Homes website
Information last verified by Jome: Today at 2:30 AM (April 1, 2026)
Book your tour. Save an average of $18,473. We'll handle the rest.
We collect exclusive builder offers, book your tours, and support you from start to housewarming.
- Confirmed tours
- Get matched & compare top deals
- Expert help, no pressure
- No added fees
Estimated value based on Jome data, T&C apply
Home details
- Property status:
- Pending/Under contract
- Collection:
- Brookewater 40'
- Lot size (acres):
- 0.12
- Size:
- 2,392 sqft
- Stories:
- 2
- Beds:
- 4
- Baths:
- 3
- Half baths:
- 1
- Garage spaces:
- 2
- Facing direction:
- Northwest
Construction details
- Builder Name:
- Perry Homes
- Completion Date:
- April, 2026
- Year Built:
- 2025
- Roof:
- Composition Roofing
Home features & finishes
- Construction Materials:
- StuccoBrick
- Cooling:
- Ceiling Fan(s)
- Flooring:
- Carpet FlooringTile Flooring
- Foundation Details:
- Slab
- Garage/Parking:
- GarageAttached Garage
- Home amenities:
- ENERGY STAR CertifiedGreen Construction
- Interior Features:
- Ceiling-HighWired For SecurityWalk-In ClosetFoyerPantry
- Kitchen:
- DishwasherMicrowave OvenOvenDisposalGas CooktopKitchen IslandGas OvenKitchen Range
- Laundry facilities:
- DryerUtility/Laundry Room
- Lighting:
- Lighting
- Property amenities:
- BackyardPatioPorch
- Rooms:
- KitchenGame RoomOffice/StudyMudroomDining RoomFamily RoomPrimary Bedroom Downstairs

Get a consultation with our New Homes Expert
- See how your home builds wealth
- Plan your home-buying roadmap
- Discover hidden gems
Utility information
- Heating:
- Gas Heating
- Utilities:
- HVAC

Community details
Brookewater at Brookewater
by Perry Homes, Rosenberg, TX
- 8 homes
- 14 plans
- 1,500 - 2,585 sqft
View Brookewater details
More homes in Brookewater
- Home at address 5026 Bowen Prairie Dr, Rosenberg, TX 77471

2392W
Brookewater 40'
$410,900
- 4 bd
- 3.5 ba
- 2,392 sqft
5026 Bowen Prairie Dr, Rosenberg, TX 77471
- Home at address 311 Eileen Dr, Rosenberg, TX 77471

2444W
Brookewater 40'
$425,900
- 4 bd
- 3 ba
- 2,444 sqft
311 Eileen Dr, Rosenberg, TX 77471
- Home at address 303 Eileen Dr, Rosenberg, TX 77471

1736W
Brookewater 40'
$439,900
- 4 bd
- 3 ba
- 1,736 sqft
303 Eileen Dr, Rosenberg, TX 77471
Floor plans in Brookewater
About the builder - Perry Homes

- 390communities on Jome
- 1,536homes on Jome
Neighborhood
Home address
Schools in Lamar Consolidated Independent School District
GreatSchools’ Summary Rating calculation is based on 4 of the school’s themed ratings, including test scores, student/academic progress, college readiness, and equity. This information should only be used as a reference. Jome is not affiliated with GreatSchools and does not endorse or guarantee this information. Please reach out to schools directly to verify all information and enrollment eligibility. Data provided by GreatSchools.org © 2025
Places of interest
Getting around
Air quality

Considering this home?
Our expert will guide your tour, in-person or virtual
Need more information?
Text or call (888) 545-5198
Financials
Estimated monthly payment
Let us help you find your dream home
How many bedrooms are you looking for?
Similar homes nearby
Recently added communities in this area
Nearby communities in Rosenberg
New homes in nearby cities
More New Homes in Rosenberg, TX
Perry Homes Realty, LLC, MLS 10254542
Copyright © 2025, Houston Realtors Information Service, Inc. The information provided is exclusively for consumers’ personal, non-commercial use, and may not be used for any purpose other than to identify prospective properties consumers may be interested in purchasing. Information is deemed reliable but not guaranteed. All information provided should be independently verified.
Read moreLast checked Apr 1, 8:50 am
- Jome
- New homes search
- Texas
- Greater Houston Area
- Fort Bend County
- Rosenberg
- Brookewater
- Brookewater 40'
- 5047 Cedar Sage Dr, Rosenberg, TX 77471




























