














Book your tour. Save an average of $18,473. We'll handle the rest.
- Confirmed tours
- Get matched & compare top deals
- Expert help, no pressure
- No added fees
Estimated value based on Jome data, T&C apply





Why tour with Jome?
- No pressure toursTour at your own pace with no sales pressure
- Expert guidanceGet insights from our home buying experts
- Exclusive accessSee homes and deals not available elsewhere
Jome is featured in
- Townhouse
- Quick move-in
- $384.25/sqft
- 36 days on Jome
Home description
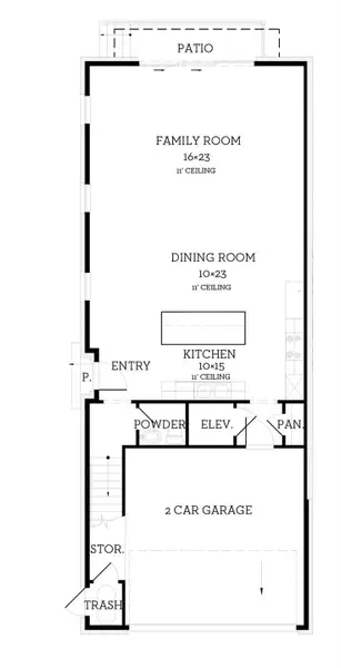
New construction by Lovett Homes in Raintree Place, a fabulous GUARD GATED LOCK & Leave LIFESTYLE community in the River Oaks area. 1 of only 2 new homes available. 1st floor living with a wonderful open floor plan for entertaining. The 3rd floor bedroom/flex room is 17x19 and opens to a large roof top terrace. Chef's kitchen includes double stacked cabinetry with soft close doors/drawers and a 48" range with 6 burners, griddle, & double ovens. The luxurious primary suite has 2 separate closets, marble flooring & counter tops in the bathroom with a free standing tub. Wood flooring throughout, INSTALLED ELEVATOR, and a small fenced backyard for your furry friend. Don't miss it!
Intown Homes, MLS 45667347
May also be listed on the Lovett Homes website
Information last verified by Jome: Today at 2:32 AM (December 7, 2025)
Home highlights
Urban greenway in Houston with trails, public art, and skyline views along the revitalized bayou corridor.
Book your tour. Save an average of $18,473. We'll handle the rest.
We collect exclusive builder offers, book your tours, and support you from start to housewarming.
- Confirmed tours
- Get matched & compare top deals
- Expert help, no pressure
- No added fees
Estimated value based on Jome data, T&C apply
Home details
- Property status:
- Move-in ready
- Neighborhood:
- Afton Oaks - River Oaks Area
- Size:
- 3,188 sqft
- Stories:
- 3+
- Beds:
- 3
- Baths:
- 3
- Half baths:
- 1
Construction details
- Builder Name:
- Lovett Homes
- Year Built:
- 2025
- Roof:
- Composition Roofing
Home features & finishes
- Appliances:
- Sprinkler System
- Construction Materials:
- Brick
- Cooling:
- Ceiling Fan(s)
- Flooring:
- Wood FlooringMarble FlooringTile Flooring
- Foundation Details:
- Slab
- Garage/Parking:
- Door OpenerGarageAttached Garage
- Home amenities:
- Green Construction
- Interior Features:
- Crown Molding
- Kitchen:
- DishwasherMicrowave OvenOvenDisposalGas CooktopGas OvenKitchen RangeDouble Oven
- Laundry facilities:
- Dryer
- Lighting:
- Lighting
- Property amenities:
- BalconyDeckBackyardElevatorElectric FireplacePatioFireplace
Utility information
- Heating:
- Electric Heating, Zoned Heating
- Utilities:
- HVAC

Community details
Raintree
by Lovett Homes, Houston, TX
- 1 home
- 3,188 - 3,188 sqft
View Raintree details
About the builder - Lovett Homes
Neighborhood
Home address
Schools in Houston Independent School District
GreatSchools’ Summary Rating calculation is based on 4 of the school’s themed ratings, including test scores, student/academic progress, college readiness, and equity. This information should only be used as a reference. Jome is not affiliated with GreatSchools and does not endorse or guarantee this information. Please reach out to schools directly to verify all information and enrollment eligibility. Data provided by GreatSchools.org © 2025
Places of interest
Getting around
5 nearby routes: 5 bus, 0 rail, 0 otherAir quality
Natural hazards risk
Climate hazards can impact homes and communities, with risks varying by location. These scores reflect the potential impact of natural disasters and climate-related risks on Harris County
Provided by FEMA

Considering this home?
Our expert will guide your tour, in-person or virtual
Need more information?
Text or call (888) 486-2818
Financials
Estimated monthly payment
Similar homes nearby
Recently added communities in this area
Nearby communities in Houston
New homes in nearby cities
More New Homes in Houston, TX
Intown Homes, MLS 45667347
Copyright © 2025, Houston Realtors Information Service, Inc. The information provided is exclusively for consumers’ personal, non-commercial use, and may not be used for any purpose other than to identify prospective properties consumers may be interested in purchasing. Information is deemed reliable but not guaranteed. All information provided should be independently verified.
Read moreLast checked Dec 7, 2:50 pm
- Home
- New homes
- Texas
- Greater Houston Area
- Harris County
- Houston
- Raintree
- 10 S Briar Hollow Ln, Unit 46, Houston, TX 77027





















