














Book your tour. Save an average of $18,473. We'll handle the rest.
- Confirmed tours
- Get matched & compare top deals
- Expert help, no pressure
- No added fees
Estimated value based on Jome data, T&C apply





















Why tour with Jome?
- No pressure toursTour at your own pace with no sales pressure
- Expert guidanceGet insights from our home buying experts
- Exclusive accessSee homes and deals not available elsewhere
Jome is featured in
- Single-Family
- Under construction
- $278.43/sqft
- No HOA fee
Home description
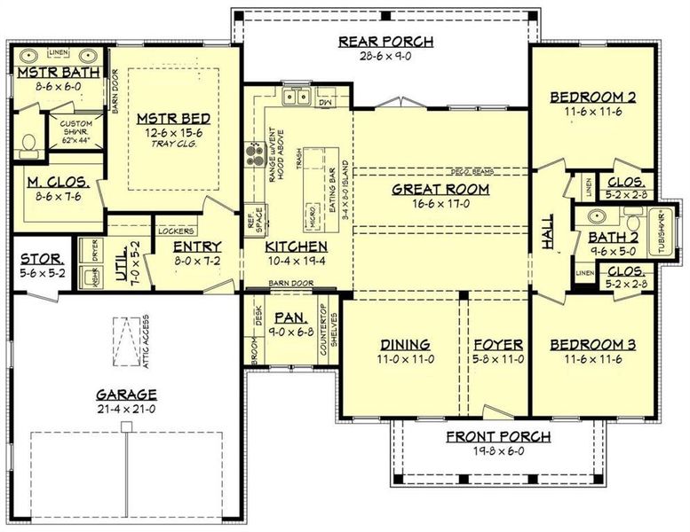
Introducing the proposed Tucker plan features 3 bed 2 full baths with an oversized attached garage. As you enter the open concept home you have a generous living area that leads to the dining & kitchen. Luxury vinyl plank floors in the common areas with carpet in the bedrooms & accent tile in baths & laundry makes easy maintenance with water resistant. The Kitchen has abundant storage, granite or quartz countertops, an eat-at-island with custom painted cabinetry, stain grade available for upgrade. The oversized pantry is one you will fall in love with! Choose to have a barn door that leads to the ensuite with an oversized walk-in shower, dual sinks, & a spacious walk-in closet that conveniently connects to the laundry room. Take advantage of NO PAYMENTS while you build with Zeal Home Builders! This Canyon plan lacks no features a custom home deserves including split bedrooms, large porches, custom cabinetry & closets, Delta faucets, concrete drive, decorative mirrors, wall mounted TV outlets & hardline ethernet ports, SPRAY FOAM insulated walls & more. Builder spared no expense on your 2-car garage fully finished with can lighting & smart MyQ side mount garage motor & auto-lock for extra safety. Enjoy your nights & weekends on your expansive back patio with room to lounge & entertain. This property is the best of both worlds – country feel & minutes to town. Bring your chickens, farm animals, & metal shops encouraged! Experience the freedom to transform this house into your dream home. With a wide range of options at your disposal, you can tailor it to suit your unique needs. Home was 3-phase inspected & a comes with 1-2-10 3rd Party. Txt keyword ZHB45 to 88000 for customization details. Directions & lot map at www.zhb.homes Photos & floor plan are of past home & subject to change.
Zeal, REALTORS, MLS 21082454
May also be listed on the Zeal Home Builders website
Information last verified by Jome: Yesterday at 1:22 AM (December 6, 2025)
Home highlights
Book your tour. Save an average of $18,473. We'll handle the rest.
We collect exclusive builder offers, book your tours, and support you from start to housewarming.
- Confirmed tours
- Get matched & compare top deals
- Expert help, no pressure
- No added fees
Estimated value based on Jome data, T&C apply
Home details
- Property status:
- Under construction
- Lot size (acres):
- 2.00
- Size:
- 1,706 sqft
- Stories:
- 1
- Beds:
- 3
- Baths:
- 2
- Half baths:
- 1
- Garage spaces:
- 2
Construction details
- Builder Name:
- Zeal Home Builders
- Year Built:
- 2026
- Roof:
- Composition Roofing
Home features & finishes
- Construction Materials:
- RockStone
- Cooling:
- Ceiling Fan(s)Central Air
- Flooring:
- Ceramic FlooringVinyl FlooringCarpet FlooringTile Flooring
- Foundation Details:
- Slab
- Garage/Parking:
- GarageSide Entry Garage/ParkingAttached Garage
- Home amenities:
- Green Construction
- Interior Features:
- Ceiling-VaultedWalk-In ClosetPantry
- Kitchen:
- DishwasherMicrowave OvenDisposalGranite countertopKitchen IslandKitchen Range
- Laundry facilities:
- DryerWasherStackable Washer/DryerUtility/Laundry Room
- Lighting:
- LightingDecorative/Designer Lighting
- Property amenities:
- BackyardPatioPorch
- Rooms:
- Primary Bedroom On MainKitchenOpen Concept FloorplanPrimary Bedroom Downstairs
Utility information
- Heating:
- Electric Heating, Central Heating
- Utilities:
- Aerobic Septic System

Community details
Parallel Pastures
by Zeal Home Builders, Poolville, TX
- 5 homes
- 53 plans
- 1,288 - 3,877 sqft
View Parallel Pastures details
More homes in Parallel Pastures
Floor plans in Parallel Pastures
About the builder - Zeal Home Builders
Neighborhood
Home address
Schools in Poolville Independent School District
- Grades PK-12Privateweatherford christian school14.9 mi2300 ranger hwyna
GreatSchools’ Summary Rating calculation is based on 4 of the school’s themed ratings, including test scores, student/academic progress, college readiness, and equity. This information should only be used as a reference. Jome is not affiliated with GreatSchools and does not endorse or guarantee this information. Please reach out to schools directly to verify all information and enrollment eligibility. Data provided by GreatSchools.org © 2025
Places of interest
Getting around
Air quality
Natural hazards risk
Climate hazards can impact homes and communities, with risks varying by location. These scores reflect the potential impact of natural disasters and climate-related risks on Parker County
Provided by FEMA

Considering this home?
Our expert will guide your tour, in-person or virtual
Need more information?
Text or call (888) 486-2818
Financials
Estimated monthly payment
Similar homes nearby
Recently added communities in this area
Nearby communities in Poolville
New homes in nearby cities
More New Homes in Poolville, TX
Zeal, REALTORS, MLS 21082454
IDX information is provided exclusively for personal, non-commercial use, and may not be used for any purpose other than to identify prospective properties consumers may be interested in purchasing. You may not reproduce or redistribute this data, it is for viewing purposes only. This data is deemed reliable, but is not guaranteed accurate by the MLS or NTREIS.
Read moreLast checked Dec 6, 10:00 pm































