














Book your tour. Save an average of $18,473. We'll handle the rest.
We collect exclusive builder offers, book your tours, and support you from start to housewarming.
- Confirmed tours
- Get matched & compare top deals
- Expert help, no pressure
- No added fees
Estimated value based on Jome data, T&C apply
























- 4 bd
- 3.5 ba
- 3,499 sqft
764 Texas Thistle Rd, Waxahachie, TX 75165
Why tour with Jome?
- No pressure toursTour at your own pace with no sales pressure
- Expert guidanceGet insights from our home buying experts
- Exclusive accessSee homes and deals not available elsewhere
Jome is featured in
- Single-Family
- Quick move-in
- $176.95/sqft
- $1,300/annual HOA
Home description
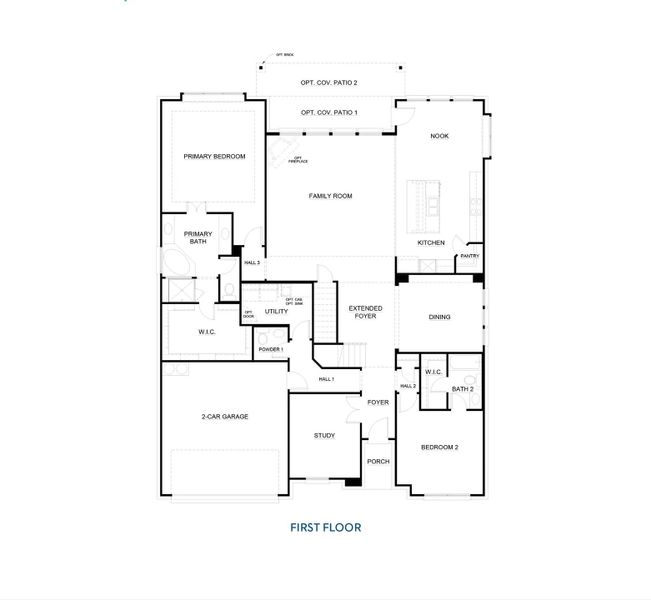
MLS# 21108480 - Built by Risewell Homes - Ready Now! ~ This spacious two-story home in Waxahachie, Texas features a thoughtfully designed layout with four bedrooms, three full baths, two powder baths, a game room, a private study, and a two-car garage, making it ideal for comfortable family living and entertaining. The main level offers an open family room that flows seamlessly into the kitchen and breakfast nook, creating a bright central gathering space. A formal dining area and extended foyer enhance the home’s welcoming feel, while a private study near the front provides a quiet home office. The owner’s suite is conveniently located on the first floor and includes a spacious walk-in closet and a well-appointed bath with dual vanities, a soaking tub, and a separate shower, along with an additional bedroom and a full bath. A powder bath on the main level adds convenience for guests. Upstairs, a large game room serves as a versatile second living area and is accompanied by two additional bedrooms, a full bath, and an additional powder bath, offering smart separation and flexibility for family or guests.
HomesUSA.com, MLS 21108480
May also be listed on the Risewell Homes website
Information last verified by Jome: Today at 1:47 AM (March 3, 2026)
Home highlights
Downtown Dallas interactive arts plaza with food halls, live events and pedestrian vibrancy.
Book your tour. Save an average of $18,473. We'll handle the rest.
We collect exclusive builder offers, book your tours, and support you from start to housewarming.
- Confirmed tours
- Get matched & compare top deals
- Expert help, no pressure
- No added fees
Estimated value based on Jome data, T&C apply
Home details
- Property status:
- Move-in ready
- Lot size (acres):
- 0.25
- Size:
- 3,499 sqft
- Stories:
- 2
- Beds:
- 4
- Baths:
- 3
- Half baths:
- 2
- Garage spaces:
- 2
- Fence:
- Wood Fence, Metal Fence
Construction details
- Builder Name:
- Risewell Homes
- Completion Date:
- November, 2025
- Year Built:
- 2025
- Roof:
- Composition Roofing
Home features & finishes
- Appliances:
- Exhaust Fan VentedSprinkler System
- Construction Materials:
- CementBrickRockStone
- Cooling:
- Central Air
- Flooring:
- Ceramic FlooringWood FlooringCarpet FlooringTile Flooring
- Foundation Details:
- Slab
- Garage/Parking:
- Door OpenerGarageFront Entry Garage/ParkingAttached Garage
- Home amenities:
- Green Construction
- Interior Features:
- Walk-In ClosetFoyerPantryDouble Vanity
- Kitchen:
- DishwasherMicrowave OvenDisposalGranite countertopKitchen Island
- Laundry facilities:
- DryerWasherStackable Washer/DryerUtility/Laundry Room
- Lighting:
- LightingDecorative/Designer Lighting
- Property amenities:
- BackyardLandscapingPatioYardPorch
- Rooms:
- KitchenNookPowder RoomGame RoomOffice/StudyDining RoomFamily RoomOpen Concept FloorplanPrimary Bedroom Downstairs
- Security system:
- Security SystemSmoke DetectorCarbon Monoxide Detector

Get a consultation with our New Homes Expert
- See how your home builds wealth
- Plan your home-buying roadmap
- Discover hidden gems
Utility information
- Heating:
- Electric Heating, Heat Pump, Zoned Heating, Central Heating
- Utilities:
- HVAC, City Water System, High Speed Internet Access, Cable TV

Community details
Myrtle Creek at Myrtle Creek
by Risewell Homes, Waxahachie, TX
- 5 homes
- 6 plans
- 2,256 - 3,499 sqft
View Myrtle Creek details
Community amenities
- Playground
- Community Pool
- Park Nearby
- Sidewalks Available
- Greenbelt View
- Walking, Jogging, Hike Or Bike Trails
More homes in Myrtle Creek
- Home at address 257 Pine Leaf Trl, Waxahachie, TX 75165

Concept 2267
$464,999
- 4 bd
- 2 ba
- 2,256 sqft
257 Pine Leaf Trl, Waxahachie, TX 75165
- Home at address 224 Pine Leaf Trl, Waxahachie, TX 75165

Concept 2370
$474,999
- 4 bd
- 2 ba
- 2,361 sqft
224 Pine Leaf Trl, Waxahachie, TX 75165
- Home at address 220 Pine Leaf Trl, Waxahachie, TX 75165

Concept 2464
$495,954
- 4 bd
- 3 ba
- 2,465 sqft
220 Pine Leaf Trl, Waxahachie, TX 75165
- Home at address 233 Pine Leaf Trl, Waxahachie, TX 75165

Concept 2622
$552,698
- 4 bd
- 2.5 ba
- 2,611 sqft
233 Pine Leaf Trl, Waxahachie, TX 75165
Floor plans in Myrtle Creek
About the builder - Risewell Homes
Neighborhood
Home address
- City:
- Waxahachie
- County:
- Ellis
- Zip Code:
- 75165
Schools in Waxahachie Independent School District
- Grades M-MPublicray elementary1.3 mi411 n gibson stna
- Grades 08-10Publicellis co jjaep2.0 mi2272 fm 878na
- Grades PK-PKPublicturner prekindergarten academy2.4 mi614 n getzendaner stna
GreatSchools’ Summary Rating calculation is based on 4 of the school’s themed ratings, including test scores, student/academic progress, college readiness, and equity. This information should only be used as a reference. Jome is not affiliated with GreatSchools and does not endorse or guarantee this information. Please reach out to schools directly to verify all information and enrollment eligibility. Data provided by GreatSchools.org © 2025
Places of interest
Getting around
Air quality

Considering this home?
Our expert will guide your tour, in-person or virtual
Need more information?
Text or call (888) 488-9243
Financials
Estimated monthly payment
Let us help you find your dream home
How many bedrooms are you looking for?
Similar homes nearby
Recently added communities in this area
Nearby communities in Waxahachie
New homes in nearby cities
More New Homes in Waxahachie, TX
HomesUSA.com, MLS 21108480
IDX information is provided exclusively for personal, non-commercial use, and may not be used for any purpose other than to identify prospective properties consumers may be interested in purchasing. You may not reproduce or redistribute this data, it is for viewing purposes only. This data is deemed reliable, but is not guaranteed accurate by the MLS or NTREIS.
Read moreLast checked Mar 3, 4:00 am
- Jome
- New homes search
- Texas
- Dallas-Fort Worth Area
- Ellis County
- Waxahachie
- Myrtle Creek
- 764 Texas Thistle Rd, Waxahachie, TX 75165































