














Book your tour. Save an average of $18,473. We'll handle the rest.
We collect exclusive builder offers, book your tours, and support you from start to housewarming.
- Confirmed tours
- Get matched & compare top deals
- Expert help, no pressure
- No added fees
Estimated value based on Jome data, T&C apply

























- 3 bd
- 2 ba
- 2,148 sqft
502 Cane Crossing Lake Dr, Sealy, TX 77474
Why tour with Jome?
- No pressure toursTour at your own pace with no sales pressure
- Expert guidanceGet insights from our home buying experts
- Exclusive accessSee homes and deals not available elsewhere
Jome is featured in
- Single-Family
- $194.95/sqft
- $400/annual HOA
- Northwest facing
Home description
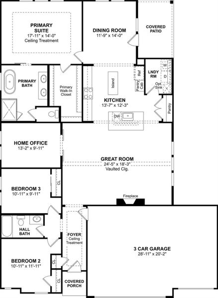
Explore new homes for sale in Sealy, Texas, at Cane Crossing Estates, featuring Looks, a unique collection of curated interiors, on homesites up to one acre. Discover this one-story Juniper III home in our Farmhouse Look, featuring 3 bedrooms, 2 baths, and a 3-car garage. A convenient home office with barn doors offers a private workspace. The stunning island kitchen boasts light-stain cabinets and Calacatta Abezzo quartz countertops. The lavish great room makes a statement with vaulted ceilings, stained beams, and a cozy fireplace. The tranquil primary suite, complete with a decorative ceiling treatment, leads to a spa-like bath featuring a freestanding tub and dual sinks. A covered patio is perfect for outdoor enjoyment. Located near I-10 and TX 36, with downtown Sealy just 4 miles away, residents enjoy easy access to amenities and Sealy ISD schools. The community features a playground, open green spaces, and a tranquil pond. Offered by: K. Hovnanian of Houston II, L.L.C.
K. Hovnanian Homes, MLS 16130937
May also be listed on the K. Hovnanian® Homes website
Information last verified by Jome: Yesterday at 2:31 AM (March 3, 2026)
Book your tour. Save an average of $18,473. We'll handle the rest.
We collect exclusive builder offers, book your tours, and support you from start to housewarming.
- Confirmed tours
- Get matched & compare top deals
- Expert help, no pressure
- No added fees
Estimated value based on Jome data, T&C apply
Home details
- Property status:
- Pending/Under contract
- Lot size (acres):
- 0.43
- Size:
- 2,148 sqft
- Stories:
- 1
- Beds:
- 3
- Baths:
- 2
- Garage spaces:
- 3
- Fence:
- No Fence
- Facing direction:
- Northwest
Construction details
- Builder Name:
- K. Hovnanian® Homes
- Completion Date:
- November, 2025
- Year Built:
- 2025
- Roof:
- Composition Roofing
Home features & finishes
- Construction Materials:
- BrickStone
- Cooling:
- Ceiling Fan(s)
- Flooring:
- Tile Flooring
- Foundation Details:
- Slab
- Garage/Parking:
- GarageAttached Garage
- Home amenities:
- Green Construction
- Interior Features:
- Ceiling-HighWired For SecurityWalk-In ClosetFoyerPantry
- Kitchen:
- DishwasherMicrowave OvenOvenDisposalGas CooktopKitchen IslandGas OvenKitchen RangeDouble Oven
- Laundry facilities:
- DryerWasherUtility/Laundry Room
- Property amenities:
- Gas Log FireplaceBackyardPatioFireplacePorch
- Rooms:
- Primary Bedroom On MainKitchenOffice/StudyDining RoomFamily RoomPrimary Bedroom Downstairs

Get a consultation with our New Homes Expert
- See how your home builds wealth
- Plan your home-buying roadmap
- Discover hidden gems
Utility information
- Heating:
- Water Heater, Gas Heating
- Utilities:
- HVAC

Community details
Cane Crossing Estates
by K. Hovnanian® Homes, Sealy, TX
- 10 homes
- 10 plans
- 2,005 - 3,444 sqft
View Cane Crossing Estates details
More homes in Cane Crossing Estates
- Home at address 304 Boulden Ct, Sealy, TX 77474

Juniper III
$399,999
- 3 bd
- 2 ba
- 2,172 sqft
304 Boulden Ct, Sealy, TX 77474
- Home at address 223 Dunovant Dr, Sealy, TX 77474

Tacoma II
$425,000
- 3 bd
- 2.5 ba
- 2,291 sqft
223 Dunovant Dr, Sealy, TX 77474
- Home at address 500 Cane Crossing Lake Dr, Sealy, TX 77474

Tacoma II
$425,000
- 3 bd
- 2.5 ba
- 2,291 sqft
500 Cane Crossing Lake Dr, Sealy, TX 77474
- Home at address 213 Dunovant Dr, Sealy, TX 77474

Juniper III
$436,379
- 3 bd
- 2 ba
- 2,148 sqft
213 Dunovant Dr, Sealy, TX 77474
- Home at address 221 Dunovant Dr, Sealy, TX 77474

Juniper III
$439,377
- 3 bd
- 2 ba
- 2,172 sqft
221 Dunovant Dr, Sealy, TX 77474
- Home at address 219 Dunovant Dr, Sealy, TX 77474

Tacoma II
$439,990
- 3 bd
- 2.5 ba
- 2,263 sqft
219 Dunovant Dr, Sealy, TX 77474
Floor plans in Cane Crossing Estates
About the builder - K. Hovnanian® Homes
Neighborhood
Home address
Schools in Sealy Independent School District
- Grades PK-05Privatesimonton christian academy13.9 mi9703 fm 1489na
GreatSchools’ Summary Rating calculation is based on 4 of the school’s themed ratings, including test scores, student/academic progress, college readiness, and equity. This information should only be used as a reference. Jome is not affiliated with GreatSchools and does not endorse or guarantee this information. Please reach out to schools directly to verify all information and enrollment eligibility. Data provided by GreatSchools.org © 2025
Places of interest
Getting around

Considering this home?
Our expert will guide your tour, in-person or virtual
Need more information?
Text or call (888) 488-9243
Financials
Estimated monthly payment
Let us help you find your dream home
How many bedrooms are you looking for?
Similar homes nearby
Recently added communities in this area
Nearby communities in Sealy
New homes in nearby cities
More New Homes in Sealy, TX
K. Hovnanian Homes, MLS 16130937
Copyright © 2025, Houston Realtors Information Service, Inc. The information provided is exclusively for consumers’ personal, non-commercial use, and may not be used for any purpose other than to identify prospective properties consumers may be interested in purchasing. Information is deemed reliable but not guaranteed. All information provided should be independently verified.
Read moreLast checked Mar 3, 8:50 pm
- Jome
- New homes search
- Texas
- Austin County
- Sealy
- Cane Crossing Estates
- 502 Cane Crossing Lake Dr, Sealy, TX 77474


































