













Book your tour. Save an average of $18,473. We'll handle the rest.
- Confirmed tours
- Get matched & compare top deals
- Expert help, no pressure
- No added fees
Estimated value based on Jome data, T&C apply
Why tour with Jome?
- No pressure toursTour at your own pace with no sales pressure
- Expert guidanceGet insights from our home buying experts
- Exclusive accessSee homes and deals not available elsewhere
Jome is featured in
- Single-Family
- $174.34/sqft
- $696/annual HOA
- Southeast facing
Home description
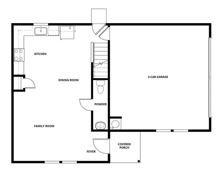
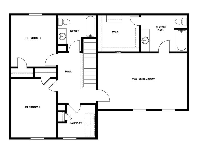
The Vaughan floor plan has three generously sized bedrooms and two-and-a-half bathrooms filled with designer upgrades at no extra cost, including stainless steel Whirlpool® appliances, granite countertops, smart home technology and so much more. The Vaughan offers a thoughtfully designed layout that’s perfect for making lifelong memories with friends and family. With its warm, open layout, the Vaughan is the ideal setting for everyday moments and special occasions. Whether it’s cozy movie nights or lively game nights, the spacious family room provides plenty of room to relax and connect. The chef-ready kitchen flows seamlessly into the adjoining dining room, creating an inviting space to share meals, stories, and laughter.
LGI Homes, MLS 6843481
May also be listed on the LGI Homes website
Information last verified by Jome: Yesterday at 7:03 AM (December 21, 2025)
Home highlights
Book your tour. Save an average of $18,473. We'll handle the rest.
We collect exclusive builder offers, book your tours, and support you from start to housewarming.
- Confirmed tours
- Get matched & compare top deals
- Expert help, no pressure
- No added fees
Estimated value based on Jome data, T&C apply
Home details
- Property status:
- Pending/Under contract
- Lot size (acres):
- 0.09
- Size:
- 1,508 sqft
- Stories:
- 2
- Beds:
- 3
- Baths:
- 2
- Half baths:
- 1
- Garage spaces:
- 2
- Fence:
- Wood Fence, Privacy Fence
- Facing direction:
- Southeast
Construction details
- Builder Name:
- LGI Homes
- Year Built:
- 2025
- Roof:
- Shingle Roofing, Fiberglass Roofing
Home features & finishes
- Cooling:
- Ceiling Fan(s)Central Air
- Flooring:
- Vinyl FlooringCarpet Flooring
- Foundation Details:
- Slab
- Garage/Parking:
- Door OpenerGarage
- Home amenities:
- Green Construction
- Interior Features:
- Walk-In ClosetPantryBlinds
- Kitchen:
- Range-Free StandingDishwasherMicrowave OvenRefrigeratorStainless Steel AppliancesGranite countertop
- Laundry facilities:
- DryerWasher
- Lighting:
- Lighting
- Property amenities:
- BackyardYardPorch
- Rooms:
- Open Concept Floorplan
- Security system:
- Smoke DetectorCarbon Monoxide Detector
Utility information
- Heating:
- Electric Heating, Thermostat, Water Heater, Central Heating
- Utilities:
- Electricity Available, HVAC, Cable Available, Sewer Available, Water Available

Community details
Canyon Ranch
by LGI Homes, Jarrell, TX
- 10 homes
- 1,186 - 2,242 sqft
View Canyon Ranch details
Community amenities
- Cluster Mailbox
- Sidewalks Available
More homes in Canyon Ranch
About the builder - LGI Homes
Neighborhood
Home address
- City:
- Jarrell
- County:
- Williamson
- Zip Code:
- 76537
Schools in Jarrell Independent School District
- Grades PK-05Publicdouble creek elementary0.6 mi855 cr 307na
- Grades M-MPublicnew middle #22.5 mi2401 e fm 487na
GreatSchools’ Summary Rating calculation is based on 4 of the school’s themed ratings, including test scores, student/academic progress, college readiness, and equity. This information should only be used as a reference. Jome is not affiliated with GreatSchools and does not endorse or guarantee this information. Please reach out to schools directly to verify all information and enrollment eligibility. Data provided by GreatSchools.org © 2025
Places of interest
Getting around
Air quality
Natural hazards risk
Climate hazards can impact homes and communities, with risks varying by location. These scores reflect the potential impact of natural disasters and climate-related risks on Williamson County
Provided by FEMA

Considering this home?
Our expert will guide your tour, in-person or virtual
Need more information?
Text or call (888) 486-2818
Financials
Estimated monthly payment
Similar homes nearby
Recently added communities in this area
Nearby communities in Jarrell
New homes in nearby cities
More New Homes in Jarrell, TX
LGI Homes, MLS 6843481
Based on information from the Austin Board of REALTORS® (alternatively, from ACTRIS) for the period through 08/13/2024. Neither the Board nor ACTRIS guarantees or is in any way responsible for its accuracy. All data is provided “AS IS” and with all faults. Data maintained by the Board or ACTRIS may not reflect all real estate activity in the market. Information being provided is for consumers’ personal, non-commercial use and may not be used for any purpose other than to identify prospective properties consumers may be interested in purchasing. The Digital Millennium Copyright Act of 1998, 17 U.S.C. § 512 (the “DMCA”) provides recourse for copyright owners who believe that material appearing on the Internet infringes their rights under U.S. copyright law. If you believe in good faith that any content or material made available in connection with our website or services infringes your copyright, you (or your agent) may send us a notice requesting that the content or material be removed, or access to it blocked. Notices must be sent in writing by email to DMCAnotice@MLSGrid.com. The DMCA requires that your notice of alleged copyright infringement include the following information: (1) description of the copyrighted work that is the subject of claimed infringement; (2) description of the alleged infringing content and information sufficient to permit us to locate the content; (3) contact information for you, including your address, telephone number and email address; (4) a statement by you that you have a good faith belief that the content in the manner complained of is not authorized by the copyright owner, or its agent, or by the operation of any law; (5) a statement by you, signed under penalty of perjury, that the information in the notification is accurate and that you have the authority to enforce the copyrights that are claimed to be infringed; and (6) a physical or electronic signature of the copyright owner or a person authorized to act on the copyright owner’s behalf. Failure to include all of the above information may result in the delay of the processing of your complaint.
Read moreLast checked Dec 22, 12:40 am
- Jome
- New homes search
- Texas
- Greater Austin Area
- Williamson County
- Jarrell
- Canyon Ranch
- 212 Carmel Canyon Trl, Jarrell, TX 76537






























